|
|
Koto-ku, Tokyo
東京都江東区
|
|
Toei Shinjuku Line "Higashi-Ojima" walk 3 minutes
都営新宿線「東大島」歩3分
|
|
Pet breeding Allowed Southwest Corner Room Two-sided balcony 4LDK
ペット飼育可 南西角部屋 2面バルコニー 4LDK
|
Features pickup 特徴ピックアップ | | Immediate Available / Super close / Interior renovation / Corner dwelling unit / Yang per good / Flat to the station / Japanese-style room / 2 or more sides balcony / South balcony / Pets Negotiable / Flat terrain 即入居可 /スーパーが近い /内装リフォーム /角住戸 /陽当り良好 /駅まで平坦 /和室 /2面以上バルコニー /南面バルコニー /ペット相談 /平坦地 |
Property name 物件名 | | Itopia Higashi-Ojima Mansion イトーピア東大島マンション |
Price 価格 | | 32,800,000 yen 3280万円 |
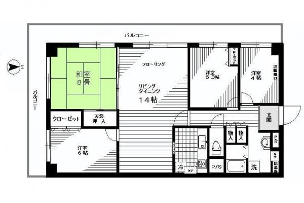
Floor plan 間取り | | 4LDK 4LDK |
Units sold 販売戸数 | | 1 units 1戸 |
Total units 総戸数 | | 454 units 454戸 |
Occupied area 専有面積 | | 93.44 sq m (center line of wall) 93.44m2(壁芯) |
Other area その他面積 | | Balcony area: 25.56 sq m バルコニー面積:25.56m2 |
Whereabouts floor / structures and stories 所在階/構造・階建 | | 1st floor / SRC14 story 1階/SRC14階建 |
Completion date 完成時期(築年月) | | September 1981 1981年9月 |
Address 住所 | | Koto-ku, Tokyo Oshima 8 東京都江東区大島8 |
Traffic 交通 | | Toei Shinjuku Line "Higashi-Ojima" walk 3 minutes 都営新宿線「東大島」歩3分
|
Related links 関連リンク | | [Related Sites of this company] 【この会社の関連サイト】 |
Person in charge 担当者より | | Person in charge of real-estate and building FP Hexi Keiji Age: 30 Daigyokai experience: I will do my best to enjoy the looking Listing to a 12-year customer. 担当者宅建FP河西 慶治年齢:30代業界経験:12年お客様に物件探しを楽しんでいただけるように頑張ります。 |
Contact お問い合せ先 | | TEL: 0800-603-0565 [Toll free] mobile phone ・ Also available from PHS Caller ID is not notified Please contact the "saw SUUMO (Sumo)" If it does not lead, If the real estate company TEL:0800-603-0565【通話料無料】携帯電話・PHSからもご利用いただけます 発信者番号は通知されません 「SUUMO(スーモ)を見た」と問い合わせください つながらない方、不動産会社の方は
|
Administrative expense 管理費 | | 16,700 yen / Month (consignment (commuting)) 1万6700円/月(委託(通勤)) |
Repair reserve 修繕積立金 | | 12,820 yen / Month 1万2820円/月 |
Time residents 入居時期 | | Immediate available 即入居可 |
Whereabouts floor 所在階 | | 1st floor 1階 |
Direction 向き | | Southwest 南西 |
Renovation リフォーム | | 2013 February interior renovation completed (kitchen ・ toilet ・ wall ・ floor ・ all rooms) 2013年2月内装リフォーム済(キッチン・トイレ・壁・床・全室) |
Overview and notices その他概要・特記事項 | | Contact: Hexi Keiji 担当者:河西 慶治 |
Structure-storey 構造・階建て | | SRC14 story SRC14階建 |
Site of the right form 敷地の権利形態 | | Ownership 所有権 |
Use district 用途地域 | | Semi-industrial 準工業 |
Parking lot 駐車場 | | Sky Mu 空無 |
Company profile 会社概要 | | <Mediation> Minister of Land, Infrastructure and Transport (3) No. 006,185 (one company) National Housing Industry Association (Corporation) metropolitan area real estate Fair Trade Council member Asahi housing (stock) Ueno shop Yubinbango110-0005, Taito-ku, Tokyo Ueno 2-13-10 Asahi Seimei Building 6th floor <仲介>国土交通大臣(3)第006185号(一社)全国住宅産業協会会員 (公社)首都圏不動産公正取引協議会加盟朝日住宅(株)上野店〒110-0005 東京都台東区上野2-13-10 朝日生命ビル6階 |