|
|
Koto-ku, Tokyo
東京都江東区
|
|
Toei Shinjuku Line "Higashi-Ojima" walk 10 minutes
都営新宿線「東大島」歩10分
|
|
If Interikkusu of property, Please leave our Interikkusu home sales! ◆ Toei Shinjuku Line "Higashi-Ojima" Station 6-minute walk! ◆ November 1990 Built!
インテリックスの物件なら、弊社インテリックス住宅販売にお任せ下さい!◆都営新宿線「東大島」駅徒歩6分!◆平成2年11月築!
|
|
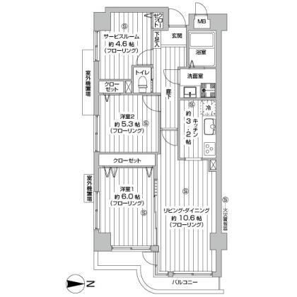
・ 3 is a floor corner room! ・ Renovation and construction: Interikkusu space design our HP → http / / www.intellex.jp / bukken-detail / F0696 / we, Interikkusu Group, To the axis of the condominium and Renovation, From renovation Property, Purchase of condominium + until the proposal of renovation, Please let me explain a new way of condominium! If it is a thing of the condominium and Renovation, Please feel free to contact us.
・3階部分の角部屋です!・リノベーション施工:インテリックス空間設計弊社HP→http://www.intellex.jp/bukken-detail/F0696/私達、インテリックスグループは、中古マンションとリノベーションを軸に、リノベーション物件から、中古マンションの購入+リノベーションの提案まで、中古マンションの新しい在り方をご説明させて頂きます! 中古マンションとリノベーションの事なら、お気軽にお問い合わせください。
|
Features pickup 特徴ピックアップ | | Fit renovation / Immediate Available / 2 along the line more accessible / System kitchen / Bathroom Dryer / Corner dwelling unit / All room storage / Washbasin with shower / Security enhancement / Bicycle-parking space / High speed Internet correspondence / Warm water washing toilet seat / BS ・ CS ・ CATV / Bike shelter 適合リノベーション /即入居可 /2沿線以上利用可 /システムキッチン /浴室乾燥機 /角住戸 /全居室収納 /シャワー付洗面台 /セキュリティ充実 /駐輪場 /高速ネット対応 /温水洗浄便座 /BS・CS・CATV /バイク置場 |
Property name 物件名 | | Maison d'Higashi-Ojima メゾンドール東大島 |
Price 価格 | | 27,800,000 yen 2780万円 |
Floor plan 間取り | | 2LDK 2LDK |
Units sold 販売戸数 | | 1 units 1戸 |
Total units 総戸数 | | 24 units 24戸 |
Occupied area 専有面積 | | 67.66 sq m (center line of wall) 67.66m2(壁芯) |
Other area その他面積 | | Balcony area: 6.33 sq m バルコニー面積:6.33m2 |
Whereabouts floor / structures and stories 所在階/構造・階建 | | 3rd floor / RC5 floors 1 underground story 3階/RC5階地下1階建 |
Completion date 完成時期(築年月) | | 11 May 1990 1990年11月 |
Address 住所 | | Koto-ku, Tokyo Oshima 7 東京都江東区大島7 |
Traffic 交通 | | Toei Shinjuku Line "Higashi-Ojima" walk 10 minutes Toei Shinjuku Line "Oshima" walk 13 minutes Kameidosen Tobu "Kameidosuijin" walk 21 minutes 都営新宿線「東大島」歩10分 都営新宿線「大島」歩13分 東武亀戸線「亀戸水神」歩21分
|
Related links 関連リンク | | [Related Sites of this company] 【この会社の関連サイト】 |
Person in charge 担当者より | | Person in charge of real-estate and building Enomoto Ryota Age: 30 Daigyokai experience: not only to introduce the six years just listing, "How risk that few if" "If Re How, Whether we are living the ideal ", etc., We need to realize the full renovation of knowledge, We offer. 担当者宅建榎本 亮太年齢:30代業界経験:6年ただ物件を紹介するだけではなく、「どのようにすればリスクが少ないのか」「どうれば、理想の暮らしができるのか」など、リノベーションの知識を最大限活用して、ご提案させて頂きます。 |
Contact お問い合せ先 | | TEL: 0800-603-1782 [Toll free] mobile phone ・ Also available from PHS Caller ID is not notified Please contact the "saw SUUMO (Sumo)" If it does not lead, If the real estate company TEL:0800-603-1782【通話料無料】携帯電話・PHSからもご利用いただけます 発信者番号は通知されません 「SUUMO(スーモ)を見た」と問い合わせください つながらない方、不動産会社の方は
|
Administrative expense 管理費 | | 17,040 yen / Month (consignment (cyclic)) 1万7040円/月(委託(巡回)) |
Repair reserve 修繕積立金 | | 15,320 yen / Month 1万5320円/月 |
Expenses 諸費用 | | Internet Initial Cost: TBD, Flat fee: unspecified amount, CATV initial Cost: TBD, Flat fee: unspecified amount インターネット初期費用:金額未定、定額料金:金額未定、CATV初期費用:金額未定、定額料金:金額未定 |
Time residents 入居時期 | | Immediate available 即入居可 |
Whereabouts floor 所在階 | | 3rd floor 3階 |
Direction 向き | | East 東 |
Renovation リフォーム | | 2013 November interior renovation completed (kitchen ・ bathroom ・ toilet ・ wall ・ floor) 2013年11月内装リフォーム済(キッチン・浴室・トイレ・壁・床) |
Overview and notices その他概要・特記事項 | | Contact: Enomoto Ryota 担当者:榎本 亮太 |
Structure-storey 構造・階建て | | RC5 floors 1 underground story RC5階地下1階建 |
Site of the right form 敷地の権利形態 | | Ownership 所有権 |
Use district 用途地域 | | Semi-industrial 準工業 |
Parking lot 駐車場 | | Site (20,000 yen / Month) 敷地内(2万円/月) |
Company profile 会社概要 | | <Mediation> Minister of Land, Infrastructure and Transport (3) No. 006493 (Corporation) All Japan Real Estate Association (Corporation) metropolitan area real estate Fair Trade Council member (Ltd.) Interikkusu home sales 150-0002 Shibuya, Shibuya-ku, Tokyo 2-12-19 Token International building 11 floors <仲介>国土交通大臣(3)第006493号(公社)全日本不動産協会会員 (公社)首都圏不動産公正取引協議会加盟(株)インテリックス住宅販売〒150-0002 東京都渋谷区渋谷2-12-19 東建インターナショナルビル11階 |
Construction 施工 | | Kubota House Co., Ltd. クボタハウス(株) |