|
|
Koto-ku, Tokyo
東京都江東区
|
|
Tokyo Metro Tozai Line "Toyocho" walk 6 minutes
東京メトロ東西線「東陽町」歩6分
|
|
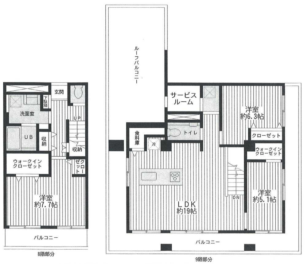
Apartment on the top floor maisonette
最上階メゾネットタイプのマンション
|
|
■ East-west south Three direction room ■ top floor ・ Sunshine good ■ L-shaped balcony ■ Roof balcony (29.19 sq m)
■東西南 三方角部屋 ■最上階・日照良好■L型バルコニー■ルーフバルコニー付(29.19m2)
|
Features pickup 特徴ピックアップ | | 2 along the line more accessible / LDK18 tatami mats or more / It is close to the city / Interior renovation / Facing south / System kitchen / Corner dwelling unit / Yang per good / Flat to the station / top floor ・ No upper floor / Washbasin with shower / 3 face lighting / 2 or more sides balcony / South balcony / Otobasu / Warm water washing toilet seat / TV monitor interphone / Ventilation good / All living room flooring / Walk-in closet / Storeroom / roof balcony 2沿線以上利用可 /LDK18畳以上 /市街地が近い /内装リフォーム /南向き /システムキッチン /角住戸 /陽当り良好 /駅まで平坦 /最上階・上階なし /シャワー付洗面台 /3面採光 /2面以上バルコニー /南面バルコニー /オートバス /温水洗浄便座 /TVモニタ付インターホン /通風良好 /全居室フローリング /ウォークインクロゼット /納戸 /ルーフバルコニー |
Event information イベント情報 | | Open Room (please make a reservation beforehand) schedule / During the public time / 11:00 ~ 17:00 オープンルーム(事前に必ず予約してください)日程/公開中時間/11:00 ~ 17:00 |
Property name 物件名 | | Toyocho Green Heights 東陽町グリーンハイツ |
Price 価格 | | 36,900,000 yen 3690万円 |
Floor plan 間取り | | 3LDK + S (storeroom) 3LDK+S(納戸) |
Units sold 販売戸数 | | 1 units 1戸 |
Occupied area 専有面積 | | 99.86 sq m (30.20 tsubo) (center line of wall) 99.86m2(30.20坪)(壁芯) |
Other area その他面積 | | Balcony area: 29.19 sq m , Roof balcony: 29.19 sq m (use fee Mu) バルコニー面積:29.19m2、ルーフバルコニー:29.19m2(使用料無) |
Whereabouts floor / structures and stories 所在階/構造・階建 | | 8th floor / SRC9 story 8階/SRC9階建 |
Completion date 完成時期(築年月) | | September 1979 1979年9月 |
Address 住所 | | Koto-ku, Tokyo Minamisuna 2 東京都江東区南砂2 |
Traffic 交通 | | Tokyo Metro Tozai Line "Toyocho" walk 6 minutes Tokyo Metro Tozai Line "Minamisunamachi" walk 8 minutes 東京メトロ東西線「東陽町」歩6分 東京メトロ東西線「南砂町」歩8分
|
Contact お問い合せ先 | | TEL: 0800-602-6842 [Toll free] mobile phone ・ Also available from PHS Caller ID is not notified Please contact the "saw SUUMO (Sumo)" If it does not lead, If the real estate company TEL:0800-602-6842【通話料無料】携帯電話・PHSからもご利用いただけます 発信者番号は通知されません 「SUUMO(スーモ)を見た」と問い合わせください つながらない方、不動産会社の方は
|
Administrative expense 管理費 | | 22,193 yen / Month (consignment (commuting)) 2万2193円/月(委託(通勤)) |
Repair reserve 修繕積立金 | | 8877 yen / Month 8877円/月 |
Time residents 入居時期 | | Consultation 相談 |
Whereabouts floor 所在階 | | 8th floor 8階 |
Direction 向き | | South 南 |
Renovation リフォーム | | 2013 November interior renovation completed (kitchen ・ bathroom ・ toilet ・ wall ・ floor ・ all rooms) 2013年11月内装リフォーム済(キッチン・浴室・トイレ・壁・床・全室) |
Structure-storey 構造・階建て | | SRC9 story SRC9階建 |
Site of the right form 敷地の権利形態 | | Ownership 所有権 |
Use district 用途地域 | | Semi-industrial 準工業 |
Parking lot 駐車場 | | Nothing 無 |
Company profile 会社概要 | | <Mediation> Minister of Land, Infrastructure and Transport (2) No. 007687 (Ltd.) Owariya Ario Kitasuna shop Yubinbango136-0073 Koto-ku, Tokyo Kitasuna 2-17-1 Ario Kitasuna third floor <仲介>国土交通大臣(2)第007687号(株)尾張屋アリオ北砂店〒136-0073 東京都江東区北砂2-17-1 アリオ北砂3階 |
Construction 施工 | | Higashitetsu (Ltd.) 東鉄(株) |