1979August
24,900,000 yen, 3DK, 55 sq m
Used Apartments » Kanto » Tokyo » Koto
 
| | Koto-ku, Tokyo 東京都江東区 |
| JR Keiyo Line "tide" walk 15 minutes JR京葉線「潮見」歩15分 |
| Black-headed gull ・ A 13-minute walk from Yurakucho horse Station! Peace of mind for the new earthquake resistance standards fit Mansion! Yang per good on the south-facing, All rooms lighting ・ It is with furniture. ゆりかもめ・有楽町線木馬駅から徒歩13分!新耐震基準適合マンションのため安心!南向きで陽当り良好、全室照明・家具付です。 |
Features pickup 特徴ピックアップ | | 2 along the line more accessible / Super close / Facing south / System kitchen / Bathroom Dryer / Elevator 2沿線以上利用可 /スーパーが近い /南向き /システムキッチン /浴室乾燥機 /エレベーター | Property name 物件名 | | Kiba Heights 木場ハイツ | Price 価格 | | 24,900,000 yen 2490万円 | Floor plan 間取り | | 3DK 3DK | Units sold 販売戸数 | | 1 units 1戸 | Total units 総戸数 | | 206 units 206戸 | Occupied area 専有面積 | | 55 sq m (center line of wall) 55m2(壁芯) | Other area その他面積 | | Balcony area: 6.23 sq m バルコニー面積:6.23m2 | Whereabouts floor / structures and stories 所在階/構造・階建 | | Second floor / SRC structure 11 stories 2階/SRC造11階建 | Completion date 完成時期(築年月) | | August 1979 1979年8月 | Address 住所 | | Koto-ku, Tokyo Edagawa 2 東京都江東区枝川2 | Traffic 交通 | | JR Keiyo Line "tide" walk 15 minutes Tokyo Metro Tozai Line "Kiba" walk 20 minutes JR京葉線「潮見」歩15分 東京メトロ東西線「木場」歩20分
| Contact お問い合せ先 | | TEL: 0800-603-0742 [Toll free] mobile phone ・ Also available from PHS Caller ID is not notified Please contact the "saw SUUMO (Sumo)" If it does not lead, If the real estate company TEL:0800-603-0742【通話料無料】携帯電話・PHSからもご利用いただけます 発信者番号は通知されません 「SUUMO(スーモ)を見た」と問い合わせください つながらない方、不動産会社の方は
| Administrative expense 管理費 | | 7310 yen / Month (consignment (resident)) 7310円/月(委託(常駐)) | Repair reserve 修繕積立金 | | 6130 yen / Month 6130円/月 | Time residents 入居時期 | | Consultation 相談 | Whereabouts floor 所在階 | | Second floor 2階 | Direction 向き | | South 南 | Structure-storey 構造・階建て | | SRC structure 11 stories SRC造11階建 | Site of the right form 敷地の権利形態 | | Ownership 所有権 | Company profile 会社概要 | | <Seller> Minister of Land, Infrastructure and Transport (8) No. Royal housing Sales Co., Ltd. Kachidoki View Tower store Yubinbango104-0054 Chuo-ku, Tokyo Kachidoki 1-8-1 Kachidoki View Tower No. B101 No. 003229 <売主>国土交通大臣(8)第003229号ロイヤルハウジング販売(株)勝どきビュータワー店〒104-0054 東京都中央区勝どき1-8-1 勝どきビュータワーB101号 |
Local appearance photo現地外観写真  New quake-resistance standards fit Mansion
新耐震基準適合マンション
 Other
その他
 Other
その他
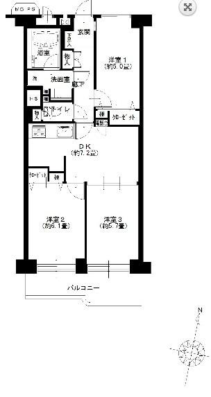
Floor plan間取り図  3DK, Price 24,900,000 yen, Footprint 55 sq m , Balcony area 6.23 sq m south-facing, Good per sun
3DK、価格2490万円、専有面積55m2、バルコニー面積6.23m2 南向き、陽当たり良好
Livingリビング  You could live with pets (Terms have)
ペットと一緒に暮らせます(規約有)
Bathroom浴室  With reheating function with bath & bathroom dryer
追い炊き機能付きバス&浴室乾燥機付き
Kitchenキッチン  System kitchen
システムキッチン
Non-living roomリビング以外の居室  Western-style three room equipped
洋室三部屋完備
 Other
その他
 Non-living room
リビング以外の居室
 Other
その他
 Other
その他
 Other
その他
Location
|