Used Apartments » Kanto » Tokyo » Minato-ku
 
| | Minato-ku, Tokyo 東京都港区 |
| Toei Asakusa Line "Takanawadai" walk 2 minutes 都営浅草線「高輪台」歩2分 |
| ◆ After-sales service guaranteed new interior renovation properties ◆ ◆ 9 Route 3 Station available of good accessible location ◆ ◆ 4 direction angle room ・ auto lock ・ Tiled ◆ ◆アフターサービス保証付き新規内装リノベーション物件◆◆9路線3駅利用可能の好アクセスな立地◆◆4方向角部屋・オートロック・タイル貼り◆ |
| Corresponding to the flat-35S, Immediate Available, 2 along the line more accessible, System kitchen, Bathroom Dryer, Corner dwelling unit, All room storage, LDK15 tatami mats or more, Washbasin with shower, 2 or more sides balcony, Flooring Chokawa, High speed Internet correspondence, Warm water washing toilet seat, Renovation, All living room flooring, Dish washing dryer, Walk-in closet フラット35Sに対応、即入居可、2沿線以上利用可、システムキッチン、浴室乾燥機、角住戸、全居室収納、LDK15畳以上、シャワー付洗面台、2面以上バルコニー、フローリング張替、高速ネット対応、温水洗浄便座、リノベーション、全居室フローリング、食器洗乾燥機、ウォークインクロゼット |
Features pickup 特徴ピックアップ | | Corresponding to the flat-35S / Immediate Available / 2 along the line more accessible / Interior renovation / System kitchen / Bathroom Dryer / Corner dwelling unit / All room storage / LDK15 tatami mats or more / Washbasin with shower / 2 or more sides balcony / Flooring Chokawa / High speed Internet correspondence / Warm water washing toilet seat / Renovation / All living room flooring / Dish washing dryer / Walk-in closet フラット35Sに対応 /即入居可 /2沿線以上利用可 /内装リフォーム /システムキッチン /浴室乾燥機 /角住戸 /全居室収納 /LDK15畳以上 /シャワー付洗面台 /2面以上バルコニー /フローリング張替 /高速ネット対応 /温水洗浄便座 /リノベーション /全居室フローリング /食器洗乾燥機 /ウォークインクロゼット | Property name 物件名 | | Tours Takanawa トゥール高輪 | Price 価格 | | 58,800,000 yen 5880万円 | Floor plan 間取り | | 2LDK 2LDK | Units sold 販売戸数 | | 1 units 1戸 | Occupied area 専有面積 | | 73.12 sq m (center line of wall) 73.12m2(壁芯) | Other area その他面積 | | Balcony area: 9.41 sq m バルコニー面積:9.41m2 | Whereabouts floor / structures and stories 所在階/構造・階建 | | 4th floor / SRC10 story 4階/SRC10階建 | Completion date 完成時期(築年月) | | February 1995 1995年2月 | Address 住所 | | Takanawa, Minato-ku, Tokyo 3 東京都港区高輪3 | Traffic 交通 | | Toei Asakusa Line "Takanawadai" walk 2 minutes Tokyo Metro Nanboku Line "Shiroganedai" walk 11 minutes JR Yamanote Line "Shinagawa" walk 13 minutes 都営浅草線「高輪台」歩2分 東京メトロ南北線「白金台」歩11分 JR山手線「品川」歩13分
| Related links 関連リンク | | [Related Sites of this company] 【この会社の関連サイト】 | Person in charge 担当者より | | Person in charge of real-estate and building Komori Masami Age: 40 Daigyokai experience: the place itch of 20 years our customers we try the suggestions of reach. Since Looking pains you live, Look for fun! 担当者宅建古森 正己年齢:40代業界経験:20年お客様の痒いところに手の届くご提案を心掛けております。せっかくのお住まい探しですから、楽しく探しましょう! | Contact お問い合せ先 | | TEL: 0800-603-4547 [Toll free] mobile phone ・ Also available from PHS Caller ID is not notified Please contact the "saw SUUMO (Sumo)" If it does not lead, If the real estate company TEL:0800-603-4547【通話料無料】携帯電話・PHSからもご利用いただけます 発信者番号は通知されません 「SUUMO(スーモ)を見た」と問い合わせください つながらない方、不動産会社の方は
| Administrative expense 管理費 | | 23,850 yen / Month (consignment (cyclic)) 2万3850円/月(委託(巡回)) | Repair reserve 修繕積立金 | | 10,920 yen / Month 1万920円/月 | Time residents 入居時期 | | Immediate available 即入居可 | Whereabouts floor 所在階 | | 4th floor 4階 | Direction 向き | | West 西 | Renovation リフォーム | | February 2014 interior renovation will be completed (kitchen ・ bathroom ・ toilet ・ wall ・ floor ・ all rooms ・ Entrance ・ ceiling) 2014年2月内装リフォーム完了予定(キッチン・浴室・トイレ・壁・床・全室・玄関・天井) | Overview and notices その他概要・特記事項 | | Contact: Komori Masami 担当者:古森 正己 | Structure-storey 構造・階建て | | SRC10 story SRC10階建 | Site of the right form 敷地の権利形態 | | Ownership 所有権 | Parking lot 駐車場 | | Nothing 無 | Company profile 会社概要 | | <Mediation> Minister of Land, Infrastructure and Transport (1) No. 008392 Century 21 Taise housing Co., Ltd. Shibuya 150-0002 Shibuya, Shibuya-ku, Tokyo 1-24-6 matrix ・ Tsubiru second floor <仲介>国土交通大臣(1)第008392号センチュリー21タイセーハウジング(株)渋谷店〒150-0002 東京都渋谷区渋谷1-24-6 マトリクス・ツービル2階 |
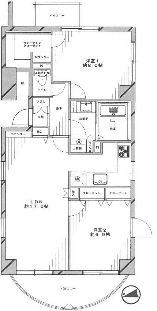
Floor plan間取り図  2LDK, Price 58,800,000 yen, Occupied area 73.12 sq m , Balcony area 9.41 sq m
2LDK、価格5880万円、専有面積73.12m2、バルコニー面積9.41m2
Local appearance photo現地外観写真  Local (12 May 2012) shooting
現地(2012年12月)撮影
Entranceエントランス  Common areas
共用部
Local appearance photo現地外観写真  Local (12 May 2012) shooting
現地(2012年12月)撮影
Otherその他  Frontal road
前面道路
Local appearance photo現地外観写真  Local (12 May 2012) shooting
現地(2012年12月)撮影
Otherその他  10m to Yokoo internal medicine clinic
横尾内科医院まで10m
Local appearance photo現地外観写真  Local (12 May 2012) shooting
現地(2012年12月)撮影
Otherその他  15m to the bus stop
バス停まで15m
 Toei Asakusa Line 220m to "Takanawadai" station (3 minutes)
都営浅草線「高輪台」駅まで220m(3分)
Location
|