|
|
Nerima-ku, Tokyo
東京都練馬区
|
|
Seibu Shinjuku Line "Kami Shakujii" walk 13 minutes
西武新宿線「上石神井」歩13分
|
|
"Renovation completed ・ Pet Friendly Property " 3 direction room, Dihedral Terrace, Free parking, Underfloor Storage, trunk room, Floor heating
「リフォーム済・ペット可物件」 3方角部屋、2面テラス、無料駐車場、床下収納、トランクルーム、床暖房
|
|
In close proximity to the Shakujii Park, This property was spacious more than the area occupied 79 square meters. Gated parking is royalty-free. 3 Because the direction of the room, The room is very bright. Shakujii until elementary school walk 5 minutes, Shakujii to South Junior High School walk 19 minutes, Shakujii to south kindergarten walk 11 minutes, Shakujii Park to walk 9 minutes, 1 minute walk to the Super Tops, Walking to the drugstore one main hall 3 minutes, You can preview at any time in the "vacancy. Night of guidance ・ Pick-up service in the even implementation. Please feel free to contact us. "
石神井公園に近接した、専有面積79平米以上の広々とした物件です。ゲート付駐車場は使用料無料。3方角部屋なので、室内がとっても明るいです。石神井小学校まで歩5分、石神井南中学校まで歩19分、石神井南幼稚園まで歩11分、石神井公園まで歩9分、スーパートップスまで歩1分、ドラッグストア一本堂まで歩3分、「空室でいつでも内覧可能です。夜間のご案内・送迎サービスも実施中。お気軽にお問い合わせ下さい。」
|
Features pickup 特徴ピックアップ | | Super close / Interior renovation / System kitchen / Corner dwelling unit / LDK15 tatami mats or more / Washbasin with shower / Bicycle-parking space / Elevator / High speed Internet correspondence / Underfloor Storage / TV monitor interphone / All living room flooring / Pets Negotiable / BS ・ CS ・ CATV / terrace スーパーが近い /内装リフォーム /システムキッチン /角住戸 /LDK15畳以上 /シャワー付洗面台 /駐輪場 /エレベーター /高速ネット対応 /床下収納 /TVモニタ付インターホン /全居室フローリング /ペット相談 /BS・CS・CATV /テラス |
Event information イベント情報 | | Please book beforehand 事前に必ずご予約願います |
Property name 物件名 | | Canyon Garden Kami Shakujii キャニオンガーデン上石神井 |
Price 価格 | | 41,800,000 yen 4180万円 |
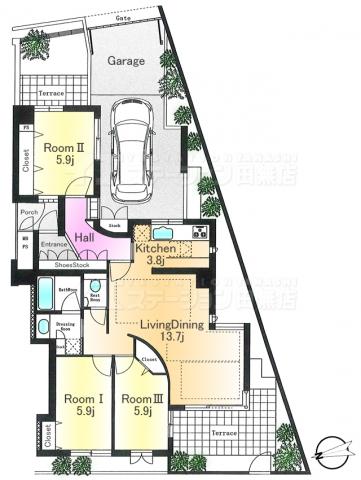
Floor plan 間取り | | 3LDK 3LDK |
Units sold 販売戸数 | | 1 units 1戸 |
Occupied area 専有面積 | | 79.2 sq m (23.95 tsubo) (center line of wall) 79.2m2(23.95坪)(壁芯) |
Other area その他面積 | | Private garden: 34.6 sq m (use fee 1100 yen / Month) 専用庭:34.6m2(使用料1100円/月) |
Whereabouts floor / structures and stories 所在階/構造・階建 | | 1st floor / SRC7 story 1階/SRC7階建 |
Completion date 完成時期(築年月) | | May 2001 2001年5月 |
Address 住所 | | Nerima-ku, Tokyo Kami Shakujii 3-5-13 東京都練馬区上石神井3-5-13 |
Traffic 交通 | | Seibu Shinjuku Line "Kami Shakujii" walk 13 minutes Seibu Shinjuku Line "Kamiigusa" walk 12 minutes 西武新宿線「上石神井」歩13分 西武新宿線「上井草」歩12分
|
Person in charge 担当者より | | Person in charge of real-estate and building Jun Momiyama Age: it is based in their 40s own purchase experience, You want to know your, I will do my best so that meet accurately to anxiety and any questions. Please feel free to contact us. 080-5432-5619 担当者宅建籾山 淳年齢:40代自身の購入経験も踏まえ、お客様の知りたいこと、不安やご不明点に的確に応えられるよう頑張ります。お気軽にお問い合わせください。080-5432-5619 |
Contact お問い合せ先 | | TEL: 0800-603-1283 [Toll free] mobile phone ・ Also available from PHS Caller ID is not notified Please contact the "saw SUUMO (Sumo)" If it does not lead, If the real estate company TEL:0800-603-1283【通話料無料】携帯電話・PHSからもご利用いただけます 発信者番号は通知されません 「SUUMO(スーモ)を見た」と問い合わせください つながらない方、不動産会社の方は
|
Administrative expense 管理費 | | 27,900 yen / Month (consignment (cyclic)) 2万7900円/月(委託(巡回)) |
Repair reserve 修繕積立金 | | 8370 yen / Month 8370円/月 |
Time residents 入居時期 | | Immediate available 即入居可 |
Whereabouts floor 所在階 | | 1st floor 1階 |
Direction 向き | | East 東 |
Renovation リフォーム | | April 2013 interior renovation completed (toilet ・ wall ・ floor ・ cleaning) 2013年4月内装リフォーム済(トイレ・壁・床・クリーニング) |
Overview and notices その他概要・特記事項 | | Contact: Atsushi Momiyama 担当者:籾山 淳 |
Structure-storey 構造・階建て | | SRC7 story SRC7階建 |
Site of the right form 敷地の権利形態 | | Ownership 所有権 |
Parking lot 駐車場 | | On-site (fee Mu) 敷地内(料金無) |
Company profile 会社概要 | | <Mediation> Governor of Tokyo (8) No. 044879 (Corporation) Tokyo Metropolitan Government Building Lots and Buildings Transaction Business Association (Corporation) metropolitan area real estate Fair Trade Council member Ye station Tanashi Store Co., Ltd. Create Seibu Yubinbango188-0004 Tokyo Nishitokyo Nishihara 1-1-2 <仲介>東京都知事(8)第044879号(公社)東京都宅地建物取引業協会会員 (公社)首都圏不動産公正取引協議会加盟イエステーション田無店(株)クリエイト西武〒188-0004 東京都西東京市西原町1-1-2 |