|
|
Nerima-ku, Tokyo
東京都練馬区
|
|
Seibu Ikebukuro Line "Nakamurabashi" walk 6 minutes
西武池袋線「中村橋」歩6分
|
|
■ Built shallow ・ Appearance of the interior renovation property! ■ Because of the top floor 3 direction room, Per yang ・ Good view! ■ Pets welcome breeding! ■ Outer wall tiling! ■ Auto-lock of peace of mind! ■ Immediately to Nakamurabashi!
■築浅・内装リノベーション物件の登場!■最上階3方角部屋の為、陽当たり・眺望良好!■ペット飼育可能!■外壁タイル張り!■安心のオートロック!■中村橋駅まですぐ!
|
|
☆ What% interest rate of the mortgage .. ☆ The total included expenses How much .. ☆ Since this property how much you can discount .. I think the worry it is a lot, but I will answer all, Please do not hesitate to contact us. In the case of o our alliance mortgage available, The entire period up to minus 1.7 percent preferential treatment. To o apply, conditions ・ There is a review. o weekdays ・ Saturday and Sunday ・ We will guide regardless of holiday. We can come to pick you up at o car.
☆住宅ローンの金利は何%.. ☆諸費用込みの総額はいくら.. ☆この物件はどれだけ値引きできるか.. 心配事が沢山あると思いますが全てお答え致しますので、 お気軽にお問い合わせくださいませ。 o弊社の提携住宅ローン利用の場合、全期間最大マイナス1.7パーセント優遇。 o適用には、条件・審査がございます。o平日・土日・祝日問わずご案内致します。 oお車でお迎えに伺います。
|
Features pickup 特徴ピックアップ | | Immediate Available / 2 along the line more accessible / Super close / It is close to the city / Facing south / System kitchen / Bathroom Dryer / Corner dwelling unit / Yang per good / Share facility enhancement / All room storage / Flat to the station / A quiet residential area / Around traffic fewer / Japanese-style room / 24 hours garbage disposal Allowed / Washbasin with shower / Security enhancement / Plane parking / Bathroom 1 tsubo or more / 2 or more sides balcony / South balcony / Flooring Chokawa / Bicycle-parking space / Elevator / Otobasu / High speed Internet correspondence / Warm water washing toilet seat / TV monitor interphone / Renovation / High-function toilet / Urban neighborhood / Mu front building / Ventilation good / Good view / Walk-in closet / Maintained sidewalk / Flat terrain / Bike shelter 即入居可 /2沿線以上利用可 /スーパーが近い /市街地が近い /南向き /システムキッチン /浴室乾燥機 /角住戸 /陽当り良好 /共有施設充実 /全居室収納 /駅まで平坦 /閑静な住宅地 /周辺交通量少なめ /和室 /24時間ゴミ出し可 /シャワー付洗面台 /セキュリティ充実 /平面駐車場 /浴室1坪以上 /2面以上バルコニー /南面バルコニー /フローリング張替 /駐輪場 /エレベーター /オートバス /高速ネット対応 /温水洗浄便座 /TVモニタ付インターホン /リノベーション /高機能トイレ /都市近郊 /前面棟無 /通風良好 /眺望良好 /ウォークインクロゼット /整備された歩道 /平坦地 /バイク置場 |
Property name 物件名 | | Park Heim Nakamurabashi パークハイム中村橋 |
Price 価格 | | 38,800,000 yen 3880万円 |
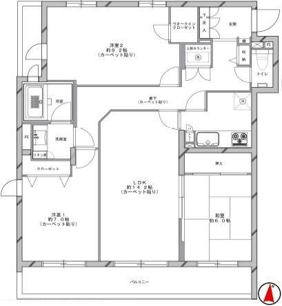
Floor plan 間取り | | 3LDK 3LDK |
Units sold 販売戸数 | | 1 units 1戸 |
Total units 総戸数 | | 14 units 14戸 |
Occupied area 専有面積 | | 87.99 sq m (center line of wall) 87.99m2(壁芯) |
Other area その他面積 | | Balcony area: 9.3 sq m バルコニー面積:9.3m2 |
Whereabouts floor / structures and stories 所在階/構造・階建 | | 4th floor / RC4 floors 1 underground story 4階/RC4階地下1階建 |
Completion date 完成時期(築年月) | | September 1992 1992年9月 |
Address 住所 | | Nerima-ku, Tokyo Nakamura 3 東京都練馬区中村3 |
Traffic 交通 | | Seibu Ikebukuro Line "Nakamurabashi" walk 6 minutes Seibu Shinjuku Line "Saginomiya" walk 15 minutes Seibu Ikebukuro Line "Fujimidai" walk 10 minutes 西武池袋線「中村橋」歩6分 西武新宿線「鷺ノ宮」歩15分 西武池袋線「富士見台」歩10分
|
Person in charge 担当者より | | Rep Ikeya Takeshi Age: 20 Daigyokai Experience: I am allowed to introduce the prime properties tailored to each person four years Customers. Such as market and living environment of the 23 wards of Tokyo, Please feel free to contact us. 担当者池谷 剛士年齢:20代業界経験:4年お客様一人一人に合わせた優良物件をご紹介させて頂いております。東京都23区の相場や住環境など、お気軽にお問合せ下さい。 |
Contact お問い合せ先 | | TEL: 0800-603-7130 [Toll free] mobile phone ・ Also available from PHS Caller ID is not notified Please contact the "saw SUUMO (Sumo)" If it does not lead, If the real estate company TEL:0800-603-7130【通話料無料】携帯電話・PHSからもご利用いただけます 発信者番号は通知されません 「SUUMO(スーモ)を見た」と問い合わせください つながらない方、不動産会社の方は
|
Administrative expense 管理費 | | 39,400 yen / Month (consignment (cyclic)) 3万9400円/月(委託(巡回)) |
Repair reserve 修繕積立金 | | 14,120 yen / Month 1万4120円/月 |
Time residents 入居時期 | | Immediate available 即入居可 |
Whereabouts floor 所在階 | | 4th floor 4階 |
Direction 向き | | South 南 |
Renovation リフォーム | | October 2013 interior renovation completed (kitchen ・ bathroom ・ toilet ・ wall ・ floor ・ all rooms) 2013年10月内装リフォーム済(キッチン・浴室・トイレ・壁・床・全室) |
Overview and notices その他概要・特記事項 | | Contact: Ikeya Takeshi 担当者:池谷 剛士 |
Structure-storey 構造・階建て | | RC4 floors 1 underground story RC4階地下1階建 |
Site of the right form 敷地の権利形態 | | Ownership 所有権 |
Use district 用途地域 | | City planning area outside 都市計画区域外 |
Parking lot 駐車場 | | Sale parking (optional purchase) (administrative expenses Mu, Repair reserve Mu, Mu repair Provident Fund) 分譲駐車場(任意購入)(管理費無、修繕積立金無、修繕積立基金無) |
Company profile 会社概要 | | <Mediation> Minister of Land, Infrastructure and Transport (2) No. 007684 + HOUSE Tokyo Office (Ltd.) propoxycarbonyl life Yubinbango104-0028, Chuo-ku, Tokyo Yaesu 2-5-12 Prairie Yaesu Building 5th floor <仲介>国土交通大臣(2)第007684号+HOUSE東京Office(株)プロポライフ〒104-0028 東京都中央区八重洲2-5-12 プレリー八重洲ビル5階 |