Investing in Japanese real estate
Menu
Projects
Hokkaido
Tohoku
Koshinetsu
Kanto
Tokai
Kansai
Chugoku
Shikoku
Kyushu
Rentals
New Apartments
Used Apartments
New Homes
Used Homes
Land / Building
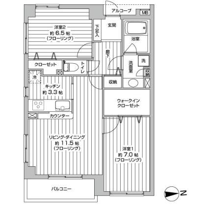
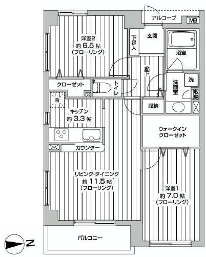
Nerima-ku, Tokyo Toyotamaminami 2
2002
November
6-story
Used Apartments
»
Kanto
»
Tokyo
»
Nerima
Property in recruitment in the same area
同じエリアで募集中の物件
Newly built condominium
新築マンション
Property list of recruitment in Yuniburu Toyotamaminami
ユニーブル豊玉南の募集中の物件一覧
Address
住所
Nerima-ku, Tokyo Toyotamaminami 2
東京都練馬区豊玉南2
Nearest station
最寄駅
Seibu Shinjuku Line "Numabukuro" walk 21 minutes
西武新宿線「沼袋」歩21分
Type
種別
Mansion
マンション
Built years
築年月
November 2002
2002年11月
Construction
構造
RC
RC
Site area
敷地面積
-
‐
Story
階建
6-story
6階建
Construction area
建築面積
-
‐
Total units
総戸数
28 units
28戸
Parking lot
駐車場
Yes
有
Vendor information
売主情報
-
‐
Construction company
施工会社
-
‐
There are 12 Photos
12枚写真があります
T
ohoku
Aomori
Akita
Iwate
Yamagata
Miyagi
Fukushima
K
oshinetsu
Ishikawa
Niigata
Toyama
Nagano
Fukui
Yamanashi
K
anto
Gumma
Tochigi
Saitama
Ibaraki
Tokyo
Chiba
Kanagawa
T
okai
Gifu
Aichi
Shizuoka
Mie
K
ansai
Kyoto
Hyogo
Shiga
Osaka
Nara
Wakayama
C
hugoku
Shimane
Tottori
Yamaguchi
Hiroshima
Okayama
S
hikoku
Kagawa
Ehime
Tokushima
Kochi
K
yushu
Saga
Fukuoka
Nagasaki
Oita
Kumamoto
Miyazaki
Okinawa
Kagoshima
H
okkaido
Hokkaido
This site is in test mode now. All the information is not relevant.
Copyright © 2026 «Real Estate Japan»