2014March
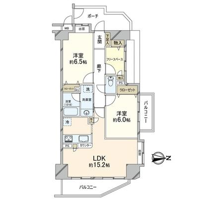
34,300,000 yen, 2LDK + S (storeroom), 67.75 sq m
Used Apartments » Kanto » Tokyo » Nerima
 
| | Nerima-ku, Tokyo 東京都練馬区 |
| Toei Oedo Line "Toshimaen" walk 1 minute 都営大江戸線「豊島園」歩1分 |
Property name 物件名 | | Grand City Toshimaen グランシティ豊島園 | Price 価格 | | 34,300,000 yen 3430万円 | Floor plan 間取り | | 2LDK + S (storeroom) 2LDK+S(納戸) | Units sold 販売戸数 | | 1 units 1戸 | Total units 総戸数 | | 40 units 40戸 | Occupied area 専有面積 | | 67.75 sq m (center line of wall) 67.75m2(壁芯) | Other area その他面積 | | Balcony area: 9.25 sq m バルコニー面積:9.25m2 | Whereabouts floor / structures and stories 所在階/構造・階建 | | 13th floor / SRC14 story 13階/SRC14階建 | Completion date 完成時期(築年月) | | July 1998 1998年7月 | Address 住所 | | Nerima-ku, Tokyo Nerima 4 東京都練馬区練馬4 | Traffic 交通 | | Toei Oedo Line "Toshimaen" walk 1 minute Seibu Toshima Line "Toshimaen" walk 2 minutes 都営大江戸線「豊島園」歩1分 西武豊島線「豊島園」歩2分
| Person in charge 担当者より | | Rep Takahiro Ito 担当者伊藤隆裕 | Contact お問い合せ先 | | Mitsui Rehouse Nerima shop Mitsui Fudosan Realty (Ltd.) TEL: 0120-774131 [Toll free] Please contact the "saw SUUMO (Sumo)" 三井のリハウス練馬店三井不動産リアルティ(株)TEL:0120-774131【通話料無料】「SUUMO(スーモ)を見た」と問い合わせください | Administrative expense 管理費 | | 11,140 yen / Month (consignment (commuting)) 1万1140円/月(委託(通勤)) | Repair reserve 修繕積立金 | | 9480 yen / Month 9480円/月 | Time residents 入居時期 | | March 2014 schedule 2014年3月予定 | Whereabouts floor 所在階 | | 13th floor 13階 | Direction 向き | | East 東 | Overview and notices その他概要・特記事項 | | Contact: Takahiro Ito 担当者:伊藤隆裕 | Structure-storey 構造・階建て | | SRC14 story SRC14階建 | Site of the right form 敷地の権利形態 | | Ownership 所有権 | Use district 用途地域 | | Commerce 商業 | Parking lot 駐車場 | | Sky Mu 空無 | Company profile 会社概要 | | <Mediation> Minister of Land, Infrastructure and Transport (13) No. 000777 (one company) Property distribution management Association (Corporation) metropolitan area real estate Fair Trade Council member Mitsui Rehouse Nerima shop Mitsui Fudosan Realty Co. Yubinbango176-0001 Nerima-ku, Tokyo Nerima 1-4-1 unity forum II7 floor <仲介>国土交通大臣(13)第000777号(一社)不動産流通経営協会会員 (公社)首都圏不動産公正取引協議会加盟三井のリハウス練馬店三井不動産リアルティ(株)〒176-0001 東京都練馬区練馬1-4-1 ユニティフォーラムII7階 |
 Local appearance photo
現地外観写真
 Floor plan
間取り図
Location
|