1994May
23,900,000 yen, 3DK, 54.38 sq m
Used Apartments » Kanto » Tokyo » Nerima
 
| | Nerima-ku, Tokyo 東京都練馬区 |
| Tokyo Metro Yurakucho Line "subway Akatsuka" walk 23 minutes 東京メトロ有楽町線「地下鉄赤塚」歩23分 |
Features pickup 特徴ピックアップ | | Immediate Available / 2 along the line more accessible / System kitchen / Yang per good / Japanese-style room / Washbasin with shower / Elevator / TV monitor interphone / Southwestward 即入居可 /2沿線以上利用可 /システムキッチン /陽当り良好 /和室 /シャワー付洗面台 /エレベーター /TVモニタ付インターホン /南西向き | Property name 物件名 | | Lions Garden Narimasu ライオンズガーデン成増 | Price 価格 | | 23,900,000 yen 2390万円 | Floor plan 間取り | | 3DK 3DK | Units sold 販売戸数 | | 1 units 1戸 | Total units 総戸数 | | 77 units 77戸 | Occupied area 専有面積 | | 54.38 sq m (center line of wall) 54.38m2(壁芯) | Other area その他面積 | | Balcony area: 3.96 sq m バルコニー面積:3.96m2 | Whereabouts floor / structures and stories 所在階/構造・階建 | | 3rd floor / RC4 story 3階/RC4階建 | Completion date 完成時期(築年月) | | May 1994 1994年5月 | Address 住所 | | Nerima-ku, Tokyo Asahimachi 3 東京都練馬区旭町3 | Traffic 交通 | | Tokyo Metro Yurakucho Line "subway Akatsuka" walk 23 minutes Tokyo Metro Yurakucho Line "subway Narimasu" walk 6 minutes Tobu Tojo Line "Narimasu" walk 8 minutes 東京メトロ有楽町線「地下鉄赤塚」歩23分 東京メトロ有楽町線「地下鉄成増」歩6分 東武東上線「成増」歩8分
| Related links 関連リンク | | [Related Sites of this company] 【この会社の関連サイト】 | Person in charge 担当者より | | [Regarding this property.] [Good day in the southwest-facing] [Yurakucho ・ Fukutoshin Available] [New renovated] 【この物件について】【南西向きで日当たり良好】【有楽町・副都心線利用可】【新規リフォーム済み】 | Contact お問い合せ先 | | TEL: 0800-602-6285 [Toll free] mobile phone ・ Also available from PHS Caller ID is not notified Please contact the "saw SUUMO (Sumo)" If it does not lead, If the real estate company TEL:0800-602-6285【通話料無料】携帯電話・PHSからもご利用いただけます 発信者番号は通知されません 「SUUMO(スーモ)を見た」と問い合わせください つながらない方、不動産会社の方は
| Administrative expense 管理費 | | 10,400 yen / Month (consignment (cyclic)) 1万400円/月(委託(巡回)) | Repair reserve 修繕積立金 | | 11,700 yen / Month 1万1700円/月 | Expenses 諸費用 | | Rent: 5060 yen / Month 地代:5060円/月 | Time residents 入居時期 | | Immediate available 即入居可 | Whereabouts floor 所在階 | | 3rd floor 3階 | Direction 向き | | Southwest 南西 | Structure-storey 構造・階建て | | RC4 story RC4階建 | Site of the right form 敷地の権利形態 | | Leasehold (Old), Leasehold period remains 42 years and 7 months 賃借権(旧)、借地期間残存42年7ヶ月 | Parking lot 駐車場 | | Site (19,000 yen ~ 23,000 yen / Month) 敷地内(1万9000円 ~ 2万3000円/月) | Company profile 会社概要 | | <Mediation> Saitama Governor (1) Article 022 250 issue (stock) residence of laboratory Yubinbango353-0004 Saitama Prefecture Shiki Honcho 5-21-13 second floor <仲介>埼玉県知事(1)第022250号(株)住まいの研究室〒353-0004 埼玉県志木市本町5-21-13 2階 |
Local appearance photo現地外観写真  local
現地
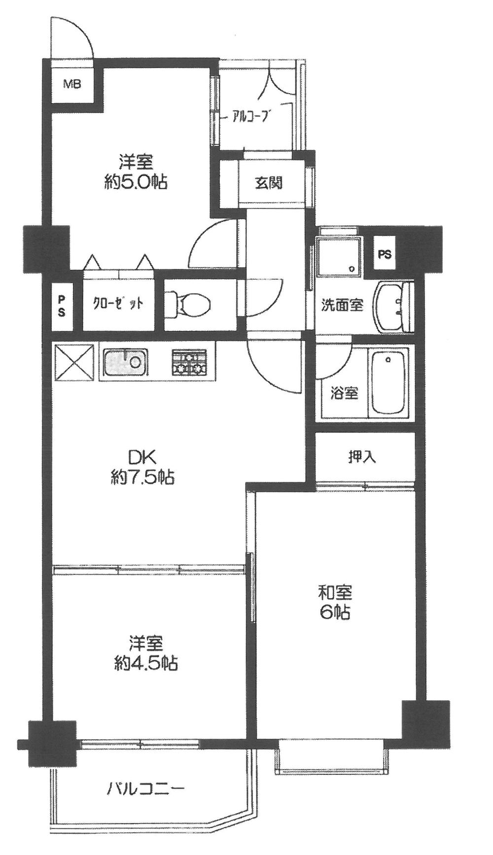
Floor plan間取り図  3DK, Price 23,900,000 yen, Occupied area 54.38 sq m , Balcony area 3.96 sq m
3DK、価格2390万円、専有面積54.38m2、バルコニー面積3.96m2
 Other
その他
Location
|