Used Apartments » Kanto » Tokyo » Ota City
 
| | Ota-ku, Tokyo 東京都大田区 |
| Toei Asakusa Line "Magome" walk 10 minutes 都営浅草線「馬込」歩10分 |
| 2 along the line more accessible, Super close, System kitchen, Bathroom Dryer, All room storage, A quiet residential area, LDK15 tatami mats or moreese-style room, Elevator, Otobasu, Warm water washing toilet seat, TV monitor Tsukei 2沿線以上利用可、スーパーが近い、システムキッチン、浴室乾燥機、全居室収納、閑静な住宅地、LDK15畳以上、和室、エレベーター、オートバス、温水洗浄便座、TVモニタ付イ |
| ■ This room with a private garden (deck) on the first floor. It also is very used to clean the room. Come See the actual room ■ 2 along the line more accessible, Super close, System kitchen, Bathroom Dryer, All room storage, A quiet residential area, LDK15 tatami mats or moreese-style room, Elevator, Otobasu, Warm water washing toilet seat, TV monitor interphone, Southwestward, BS ・ CS ・ CATV, Located on a hill, Delivery Box, Private garden ■1階で専用庭(デッキ)の付いたお部屋です。室内も非常にキレイにご使用されております。是非実際のお部屋をご覧下さい■2沿線以上利用可、スーパーが近い、システムキッチン、浴室乾燥機、全居室収納、閑静な住宅地、LDK15畳以上、和室、エレベーター、オートバス、温水洗浄便座、TVモニタ付インターホン、南西向き、BS・CS・CATV、高台に立地、宅配ボックス、専用庭 |
Features pickup 特徴ピックアップ | | 2 along the line more accessible / Super close / System kitchen / Bathroom Dryer / Yang per good / All room storage / A quiet residential area / LDK15 tatami mats or more / Japanese-style room / Elevator / Otobasu / Warm water washing toilet seat / TV monitor interphone / Southwestward / BS ・ CS ・ CATV / Located on a hill / Delivery Box / Private garden 2沿線以上利用可 /スーパーが近い /システムキッチン /浴室乾燥機 /陽当り良好 /全居室収納 /閑静な住宅地 /LDK15畳以上 /和室 /エレベーター /オートバス /温水洗浄便座 /TVモニタ付インターホン /南西向き /BS・CS・CATV /高台に立地 /宅配ボックス /専用庭 | Property name 物件名 | | Kamiikedai duplex II 上池台デュープレックスII | Price 価格 | | 39,700,000 yen 3970万円 | Floor plan 間取り | | 3LDK 3LDK | Units sold 販売戸数 | | 1 units 1戸 | Total units 総戸数 | | 23 units 23戸 | Occupied area 専有面積 | | 74.3 sq m (center line of wall) 74.3m2(壁芯) | Other area その他面積 | | Private garden: 14.13 sq m (use fee 600 yen / Month) 専用庭:14.13m2(使用料600円/月) | Whereabouts floor / structures and stories 所在階/構造・階建 | | 1st floor / RC5 floors 1 underground story 1階/RC5階地下1階建 | Completion date 完成時期(築年月) | | February 1998 1998年2月 | Address 住所 | | Ota-ku, Tokyo Kamiikedai 5 東京都大田区上池台5 | Traffic 交通 | | Toei Asakusa Line "Magome" walk 10 minutes Tokyu Ikegami Line "Nagahara" walk 14 minutes 都営浅草線「馬込」歩10分 東急池上線「長原」歩14分
| Person in charge 担当者より | | [Regarding this property.] 3LDK private garden. The room is also YoshiSo. 【この物件について】専用庭付きの3LDK。室内も美装です。 | Contact お問い合せ先 | | (Ltd.) Noji Total Housing TEL: 03-5794-5910 Please contact as "saw SUUMO (Sumo)" (株)野地トータルハウジングTEL:03-5794-5910「SUUMO(スーモ)を見た」と問い合わせください | Administrative expense 管理費 | | 13,600 yen / Month (consignment (commuting)) 1万3600円/月(委託(通勤)) | Repair reserve 修繕積立金 | | 14,120 yen / Month 1万4120円/月 | Time residents 入居時期 | | Consultation 相談 | Whereabouts floor 所在階 | | 1st floor 1階 | Direction 向き | | Southwest 南西 | Structure-storey 構造・階建て | | RC5 floors 1 underground story RC5階地下1階建 | Site of the right form 敷地の権利形態 | | Ownership 所有権 | Use district 用途地域 | | Two mid-high 2種中高 | Company profile 会社概要 | | <Mediation> Minister of Land, Infrastructure and Transport (2) No. 007043 (Corporation) Tokyo Metropolitan Government Building Lots and Buildings Transaction Business Association (Corporation) metropolitan area real estate Fair Trade Council member (Ltd.) Noji total housing Yubinbango153-0052 Meguro-ku, Tokyo Yutenji 2-14-17 <仲介>国土交通大臣(2)第007043号(公社)東京都宅地建物取引業協会会員 (公社)首都圏不動産公正取引協議会加盟(株)野地トータルハウジング〒153-0052 東京都目黒区祐天寺2-14-17 | Construction 施工 | | Matsui Construction Co., Ltd. (stock) 松井建設(株) |
Local appearance photo現地外観写真  Local (June 2012) shooting
現地(2012年6月)撮影
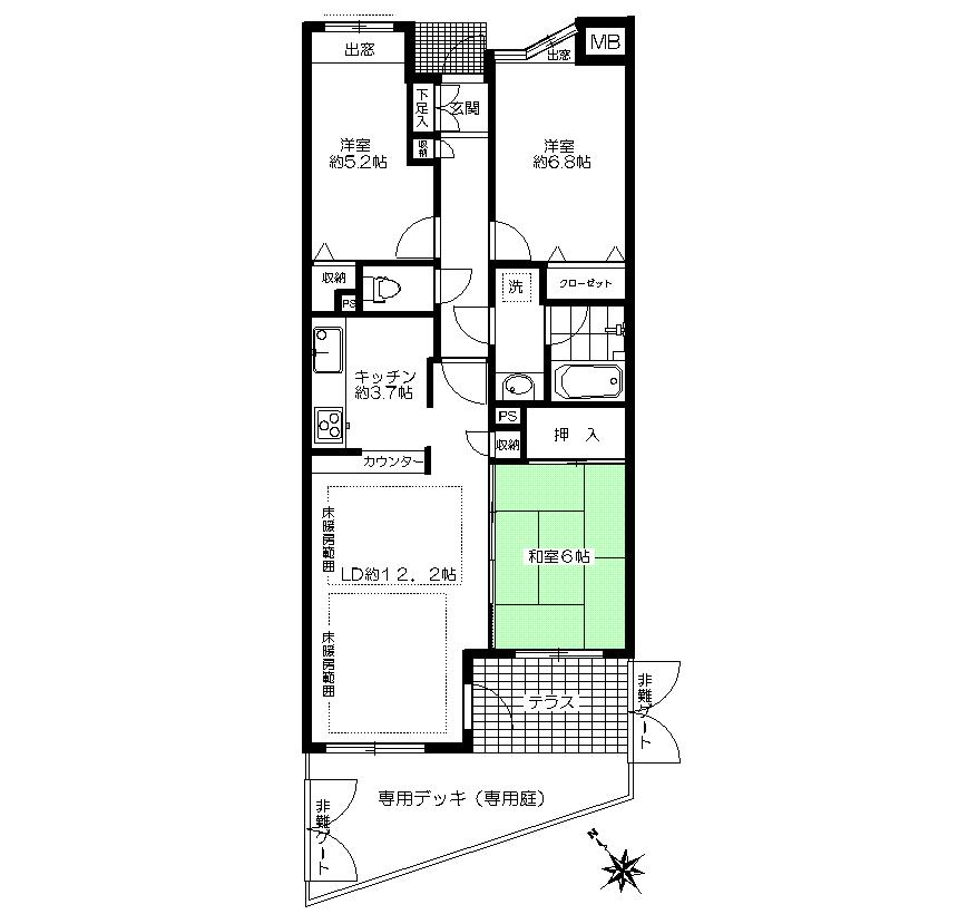
Floor plan間取り図  3LDK, Price 39,700,000 yen, Footprint 74.3 sq m
3LDK、価格3970万円、専有面積74.3m2
Otherその他  Care is also easier because the ground is concrete. Private deck part ・ 14.13 sq m
地面がコンクリートなのでお手入れも楽です。 専用デッキ部分・14.13m2
View photos from the dwelling unit住戸からの眺望写真  Sunshine is good because there is a little distance to the entire surface of the adjacent land building. View from the site (June 2012) shooting
全面隣地建物まで少し距離がありますので日照良好です。 現地からの眺望(2012年6月)撮影
Otherその他  Jose you a lot laundry. Private deck part ・ 14.13 sq m
洗濯物もたくさん干せます。 専用デッキ部分・14.13m2
Location
|