|
|
Ota-ku, Tokyo
東京都大田区
|
|
Keikyu main line "Umeyashiki" walk 14 minutes
京急本線「梅屋敷」歩14分
|
|
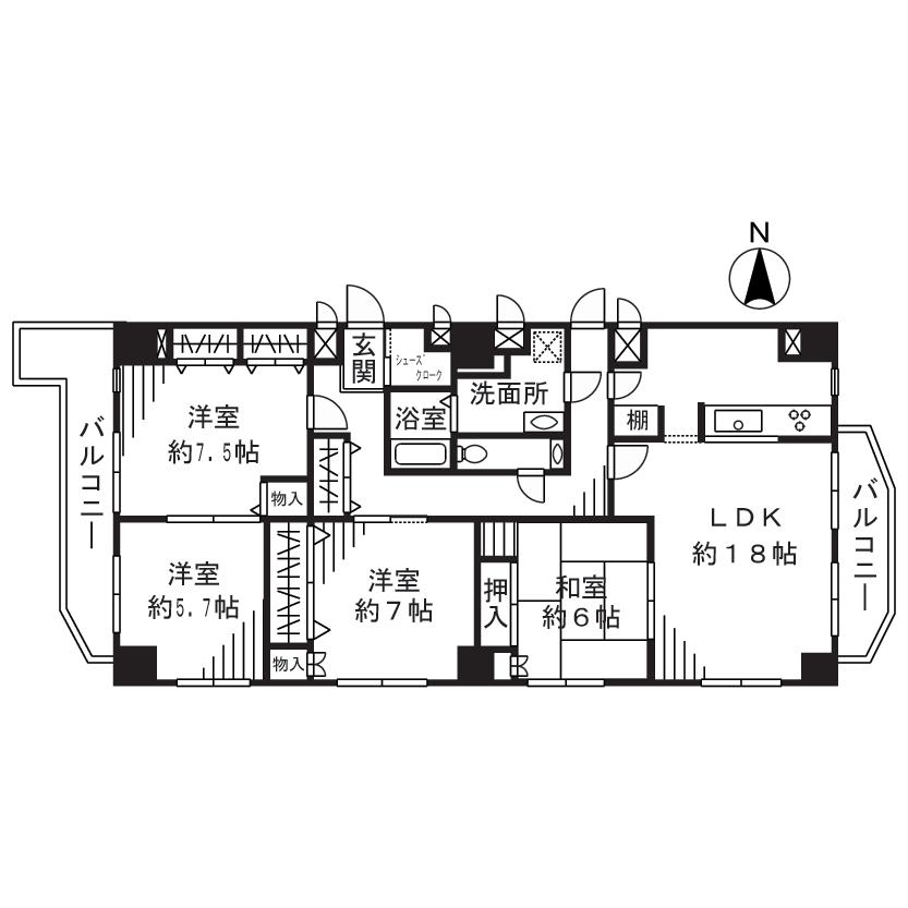
top floor ・ No upper floor, Yang per good, Southeast direction, LDK18 tatami mats or more, Renovation, Corner dwelling unit, Immediate Available, 2 along the line more accessible, Super close, It is close to the city, System kitchen, All room storage
最上階・上階なし、陽当り良好、東南向き、LDK18畳以上、リノベーション、角住戸、即入居可、2沿線以上利用可、スーパーが近い、市街地が近い、システムキッチン、全居室収納
|
|
● the top floor of 116 sq m ・ Day luck of the southeast angle room, Good view! ● east and west of the two-sided balcony, Ventilation good! ● spacious LDK ● 2013 July interior renovation completed in about 18 quires!
●116m2の最上階・東南角部屋のつき日当たり、眺望良好!●東西の二面バルコニー、通風良好!●約18帖の広々としたLDK●平成25年7月室内リフォーム完了!
|
Features pickup 特徴ピックアップ | | Immediate Available / 2 along the line more accessible / LDK18 tatami mats or more / Super close / It is close to the city / System kitchen / Corner dwelling unit / Yang per good / All room storage / Flat to the station / Japanese-style room / top floor ・ No upper floor / High floor / Face-to-face kitchen / 2 or more sides balcony / Southeast direction / Flooring Chokawa / Bicycle-parking space / Elevator / Warm water washing toilet seat / Renovation / Urban neighborhood / Mu front building / All living room flooring / Good view / Flat terrain 即入居可 /2沿線以上利用可 /LDK18畳以上 /スーパーが近い /市街地が近い /システムキッチン /角住戸 /陽当り良好 /全居室収納 /駅まで平坦 /和室 /最上階・上階なし /高層階 /対面式キッチン /2面以上バルコニー /東南向き /フローリング張替 /駐輪場 /エレベーター /温水洗浄便座 /リノベーション /都市近郊 /前面棟無 /全居室フローリング /眺望良好 /平坦地 |
Property name 物件名 | | Amista Kitakojiya アミスタ北糀谷 |
Price 価格 | | 44,500,000 yen 4450万円 |
Floor plan 間取り | | 4LDK 4LDK |
Units sold 販売戸数 | | 1 units 1戸 |
Total units 総戸数 | | 34 units 34戸 |
Occupied area 専有面積 | | 116.45 sq m (35.22 tsubo) (center line of wall) 116.45m2(35.22坪)(壁芯) |
Other area その他面積 | | Balcony area: 14 sq m バルコニー面積:14m2 |
Whereabouts floor / structures and stories 所在階/構造・階建 | | 12th floor / SRC12 floors 1 underground story 12階/SRC12階地下1階建 |
Completion date 完成時期(築年月) | | April 1998 1998年4月 |
Address 住所 | | Ota-ku, Tokyo Kitakojiya 1 東京都大田区北糀谷1 |
Traffic 交通 | | Keikyu main line "Umeyashiki" walk 14 minutes Keikyu Airport Line "torii" walk 14 minutes Keikyu main line "Keikyukamata" walk 17 minutes 京急本線「梅屋敷」歩14分 京急空港線「大鳥居」歩14分 京急本線「京急蒲田」歩17分
|
Related links 関連リンク | | [Related Sites of this company] 【この会社の関連サイト】 |
Person in charge 担当者より | | Person in charge of real-estate and building FP Katsumata Daiki Age: 20 Daigyokai experience: because it is the best of the young in the 3-year center, Cheerfully, It will guide standing in more customers' point of view. Thank you work hard you because so who can together to find the fun you live! 担当者宅建FP勝又 大貴年齢:20代業界経験:3年センターで一番の若手ですので、元気よく、よりお客様の目線に立ってご案内いたします。一緒に楽しいお住まい探しをさせていただけるよう頑張りますのでよろしくお願い致します! |
Contact お問い合せ先 | | TEL: 0800-603-8181 [Toll free] mobile phone ・ Also available from PHS Caller ID is not notified Please contact the "saw SUUMO (Sumo)" If it does not lead, If the real estate company TEL:0800-603-8181【通話料無料】携帯電話・PHSからもご利用いただけます 発信者番号は通知されません 「SUUMO(スーモ)を見た」と問い合わせください つながらない方、不動産会社の方は
|
Administrative expense 管理費 | | 31,340 yen / Month (consignment (commuting)) 3万1340円/月(委託(通勤)) |
Repair reserve 修繕積立金 | | 9700 yen / Month 9700円/月 |
Time residents 入居時期 | | Immediate available 即入居可 |
Whereabouts floor 所在階 | | 12th floor 12階 |
Direction 向き | | Southeast 南東 |
Renovation リフォーム | | July 2013 interior renovation completed (kitchen ・ bathroom ・ toilet ・ wall ・ floor ・ all rooms ・ Closet, etc.) 2013年7月内装リフォーム済(キッチン・浴室・トイレ・壁・床・全室・クローゼット等) |
Overview and notices その他概要・特記事項 | | Contact: Katsumata Daiki 担当者:勝又 大貴 |
Structure-storey 構造・階建て | | SRC12 floors 1 underground story SRC12階地下1階建 |
Site of the right form 敷地の権利形態 | | Ownership 所有権 |
Parking lot 駐車場 | | Nothing 無 |
Company profile 会社概要 | | <Mediation> Minister of Land, Infrastructure and Transport (2) the first 007,535 No. Nice Co., Ltd. Nice residence of Information Center Smile Cafe Kamata Yubinbango144-0051 Ota-ku, Tokyo Nishikamata 7-48-3 Okoshi building first floor <仲介>国土交通大臣(2)第007535号ナイス(株)ナイス住まいの情報館住まいるCafe蒲田〒144-0051 東京都大田区西蒲田7-48-3 大越ビル1階 |
Construction 施工 | | Taisei Co., Ltd. 大成建設(株) |