|
|
Ota-ku, Tokyo
東京都大田区
|
|
Toei Asakusa Line "Nishimagome" walk 4 minutes
都営浅草線「西馬込」歩4分
|
|
■ Popular counter kitchen ■ ■ Management system good ■
■人気のカウンターキッチン■■管理体制良好■
|
|
May 2007 Already skeleton renovation, Solid wood flooring use, Living indirect lighting with, Bathroom Dryer, LDK15 tatami mats or more, Around traffic fewer, Facing the Magome Nishikoen, 24 hours garbage disposal Allowed, Parking available with a flat roof, Face-to-face kitchen, Security enhancement, Southeast direction
2007年5月 スケルトンリフォーム済み、無垢材フローリング使用、リビング間接照明つき、浴室乾燥機、LDK15畳以上、周辺交通量少なめ、馬込西公園に面する、24時間ゴミ出し可、平面屋根付駐車場あり、対面式キッチン、セキュリティ充実、東南向き
|
Features pickup 特徴ピックアップ | | Interior renovation / Bathroom Dryer / LDK15 tatami mats or more / Around traffic fewer / 24 hours garbage disposal Allowed / Face-to-face kitchen / Security enhancement / Plane parking / Southeast direction 内装リフォーム /浴室乾燥機 /LDK15畳以上 /周辺交通量少なめ /24時間ゴミ出し可 /対面式キッチン /セキュリティ充実 /平面駐車場 /東南向き |
Event information イベント情報 | | Local guide Board (Please be sure to ask in advance) schedule / During the public time / 10:00 ~ 21:00 reservation acceptance time 10:00 ~ 21 pm Closed: Please say every Wednesday and the first Tuesday, "a look at the Sumo". When the person in charge absence, We will consider it as you would like to contact the folded. Quickly we will correspond therefore, Please feel free to contact us. 現地案内会(事前に必ずお問い合わせください)日程/公開中時間/10:00 ~ 21:00予約受付時間10時 ~ 21時定休日:毎週水曜日及び第一火曜日『スーモを見て』と伝えてください。担当者不在の際は、折り返しのご連絡とさせていただきます。迅速に対応いたしますので、お気軽にお問合せください。 |
Property name 物件名 | | Royal Palace Magomenishi park ロイヤルパレス馬込西公園 |
Price 価格 | | 32,800,000 yen 3280万円 |
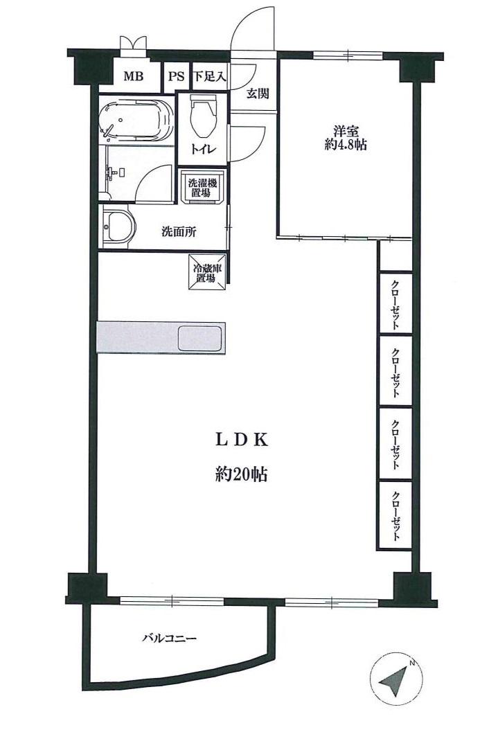
Floor plan 間取り | | 1LDK 1LDK |
Units sold 販売戸数 | | 1 units 1戸 |
Occupied area 専有面積 | | 55.29 sq m 55.29m2 |
Other area その他面積 | | Balcony area: 4.22 sq m バルコニー面積:4.22m2 |
Whereabouts floor / structures and stories 所在階/構造・階建 | | Second floor / SRC3 floors 1 underground story 2階/SRC3階地下1階建 |
Completion date 完成時期(築年月) | | March 1996 1996年3月 |
Address 住所 | | Ota-ku, Tokyo Nishimagome 1 東京都大田区西馬込1 |
Traffic 交通 | | Toei Asakusa Line "Nishimagome" walk 4 minutes 都営浅草線「西馬込」歩4分
|
Related links 関連リンク | | [Related Sites of this company] 【この会社の関連サイト】 |
Person in charge 担当者より | | Personnel Kido in the Ken Age: 20 Daigyokai experience: we are committed to find the best abode of the two-year customer. Thank you very much. 担当者木戸内健年齢:20代業界経験:2年お客様のベストな住まい探しに全力で取り組んでいます。どうぞよろしくお願い致します。 |
Contact お問い合せ先 | | TEL: 0800-602-5576 [Toll free] mobile phone ・ Also available from PHS Caller ID is not notified Please contact the "saw SUUMO (Sumo)" If it does not lead, If the real estate company TEL:0800-602-5576【通話料無料】携帯電話・PHSからもご利用いただけます 発信者番号は通知されません 「SUUMO(スーモ)を見た」と問い合わせください つながらない方、不動産会社の方は
|
Administrative expense 管理費 | | 8700 yen / Month (consignment (cyclic)) 8700円/月(委託(巡回)) |
Repair reserve 修繕積立金 | | 11,100 yen / Month 1万1100円/月 |
Time residents 入居時期 | | Consultation 相談 |
Whereabouts floor 所在階 | | Second floor 2階 |
Direction 向き | | Southeast 南東 |
Renovation リフォーム | | May interior renovation completed (Kitchen 2007 ・ bathroom ・ toilet ・ wall ・ floor) 2007年5月内装リフォーム済(キッチン・浴室・トイレ・壁・床) |
Overview and notices その他概要・特記事項 | | Contact: Kido Uchiken 担当者:木戸内健 |
Structure-storey 構造・階建て | | SRC3 floors 1 underground story SRC3階地下1階建 |
Site of the right form 敷地の権利形態 | | Ownership 所有権 |
Use district 用途地域 | | Two dwellings 2種住居 |
Parking lot 駐車場 | | Site (30,000 yen / Month) 敷地内(3万円/月) |
Company profile 会社概要 | | <Mediation> Governor of Tokyo (1) No. 090684 (Corporation) All Japan Real Estate Association (Corporation) metropolitan area real estate Fair Trade Council member Pitattohausu Sakurashinmachi shop (stock) Rays Corporation Yubinbango154-0014 Setagaya-ku, Tokyo Shinmachi 2-25-16 <仲介>東京都知事(1)第090684号(公社)全日本不動産協会会員 (公社)首都圏不動産公正取引協議会加盟ピタットハウス桜新町店(株)レイズコーポレーション〒154-0014 東京都世田谷区新町2-25-16 |
Construction 施工 | | (Ltd.) Yamada construction (株)山田建設 |