Used Apartments » Kanto » Tokyo » Setagaya
 
| | Setagaya-ku, Tokyo 東京都世田谷区 |
| Keio Line "Hachimanyama" walk 16 minutes 京王線「八幡山」歩16分 |
| ◇ 157 units of the big community ◇ ・ Live-management peace of mind ・ Facing west ・ Exposure to the sun, Good view ◇157戸のビッグコミュニティ◇・安心の住込み管理・西向き・陽当り、眺望良好 |
| ◇ March 2013 renovation already ◇ all rooms cross Chokawa, All flooring Chokawa, Entrance human sensor mounting, House cleaning system Kitchen exchange, Installation down Light, Unit bus exchange, Washbasin exchange, Toilet exchange ◇ equipment contents ◇ intercom with monitor, Reheating function with bus, Bathroom Dryer, 24-hour ventilation system with all rooms lighting, surveillance camera, Internet-enabled ◆ Bicycle-parking space ◆ Empty Yes (2013 April) one day free per dwelling unit, Second unit ~ Annual 6000 yen / Table ◆ Pet breeding ◆ Small birds ・ Possible only ornamental fish ◇平成25年3月リノベーション済み◇全室クロス張替、全フローリング張替、玄関人感センサー取付、ハウスクリーニングシステムキッチン交換、ダウンライト設置、ユニットバス交換、洗面台交換、トイレ交換◇設備内容◇モニター付きインターフォン、追焚き機能付きバス、浴室乾燥機、全室照明付き24時間換気システム、防犯カメラ、インターネット対応◆駐輪場◆空有(平成25年4月現在)1住戸につき1台目無料、2台目 ~ 年額6000円/台◆ペット飼育◆小鳥・観賞用魚のみ可能 |
Features pickup 特徴ピックアップ | | Immediate Available / 2 along the line more accessible / System kitchen / Bathroom Dryer / A quiet residential area / Washbasin with shower / Security enhancement / Bicycle-parking space / Elevator / TV monitor interphone / Renovation / All living room flooring / Bike shelter 即入居可 /2沿線以上利用可 /システムキッチン /浴室乾燥機 /閑静な住宅地 /シャワー付洗面台 /セキュリティ充実 /駐輪場 /エレベーター /TVモニタ付インターホン /リノベーション /全居室フローリング /バイク置場 | Property name 物件名 | | Roka park Sky Heights 芦花公園スカイハイツ | Price 価格 | | 29,900,000 yen 2990万円 | Floor plan 間取り | | 3LDK 3LDK | Units sold 販売戸数 | | 1 units 1戸 | Total units 総戸数 | | 157 units 157戸 | Occupied area 専有面積 | | 61.6 sq m (center line of wall) 61.6m2(壁芯) | Other area その他面積 | | Balcony area: 7.6 sq m バルコニー面積:7.6m2 | Whereabouts floor / structures and stories 所在階/構造・階建 | | 5th floor / SRC10 story 5階/SRC10階建 | Completion date 完成時期(築年月) | | March 1978 1978年3月 | Address 住所 | | Setagaya-ku, Tokyo Chitosedai 4 東京都世田谷区千歳台4 | Traffic 交通 | | Keio Line "Hachimanyama" walk 16 minutes Odakyu line "Chitosefunabashi" walk 19 minutes 京王線「八幡山」歩16分 小田急線「千歳船橋」歩19分
| Related links 関連リンク | | [Related Sites of this company] 【この会社の関連サイト】 | Person in charge 担当者より | | [Regarding this property.] Quiet room. Please check all means at the local. 【この物件について】静かなお部屋です。是非現地にてご確認ください。 | Contact お問い合せ先 | | TEL: 0800-603-2687 [Toll free] mobile phone ・ Also available from PHS Caller ID is not notified Please contact the "saw SUUMO (Sumo)" If it does not lead, If the real estate company TEL:0800-603-2687【通話料無料】携帯電話・PHSからもご利用いただけます 発信者番号は通知されません 「SUUMO(スーモ)を見た」と問い合わせください つながらない方、不動産会社の方は
| Administrative expense 管理費 | | 8230 yen / Month (consignment (resident)) 8230円/月(委託(常駐)) | Repair reserve 修繕積立金 | | 17,090 yen / Month 1万7090円/月 | Expenses 諸費用 | | Parking: 18,000 yen / Month, Bicycle parking lot (with the burden cost from the second unit): 6000 yen / Month 駐車場:1万8000円/月、駐輪場(2台目から費用負担あり):6000円/月 | Time residents 入居時期 | | Immediate available 即入居可 | Whereabouts floor 所在階 | | 5th floor 5階 | Direction 向き | | West 西 | Renovation リフォーム | | March 2013 interior renovation completed (kitchen ・ bathroom ・ toilet ・ wall ・ floor ・ all rooms) 2013年3月内装リフォーム済(キッチン・浴室・トイレ・壁・床・全室) | Other limitations その他制限事項 | | ※ If there are other restrictions, please, enter it here ※その他制限事項がある場合はこちらに入力してください | Structure-storey 構造・階建て | | SRC10 story SRC10階建 | Site of the right form 敷地の権利形態 | | Ownership 所有権 | Use district 用途地域 | | Two dwellings 2種住居 | Parking lot 駐車場 | | Sky Mu 空無 | Company profile 会社概要 | | <Mediation> Minister of Land, Infrastructure and Transport (3) No. 005904 (Corporation) Tokyo Metropolitan Government Building Lots and Buildings Transaction Business Association (Corporation) metropolitan area real estate Fair Trade Council member Meiwa Estate Co., Ltd. residential distribution (Ltd.) headquarters sales department Yubinbango150-0045 Shibuya-ku, Tokyo Shinsen-cho, 9-6 <仲介>国土交通大臣(3)第005904号(公社)東京都宅地建物取引業協会会員 (公社)首都圏不動産公正取引協議会加盟明和地所住宅流通(株)本社営業部〒150-0045 東京都渋谷区神泉町9-6 | Construction 施工 | | (Ltd.) Hasegawa builders (株)長谷川工務店 |
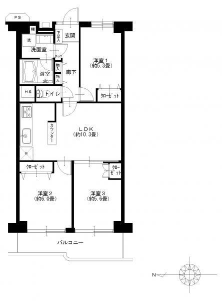
Floor plan間取り図  3LDK, Price 29,900,000 yen, Footprint 61.6 sq m , Balcony area 7.6 sq m
3LDK、価格2990万円、専有面積61.6m2、バルコニー面積7.6m2
 Living
リビング
 Kitchen
キッチン
 3LDK, Price 29,900,000 yen, Footprint 61.6 sq m , Balcony area 7.6 sq m
3LDK、価格2990万円、専有面積61.6m2、バルコニー面積7.6m2
 Bathroom
浴室
 Non-living room
リビング以外の居室
Location
|