Used Apartments » Kanto » Tokyo » Setagaya


Setagaya-ku, Tokyo
Tokyu Den-en-toshi Line "Futakotamagawa" bus 14 minutes Okamoto Sanchome walk 2 minutes
"Fine mansion nestled in the historic mansion area of ​​Okamoto 3-chome" - building modeling utilizing the fully the benefits of the hill - you should feel the transitory seasons
■ Casually building facade that dignity is fragrant ■ Daylighting ・ ventilation ・ Good view ■ Enhancement of security ■ Pet breeding Allowed (bylaws Yes) ■ Lush living environment
Features pickup
LDK18 tatami mats or more / System kitchen / Bathroom Dryer / Share facility enhancement / A quiet residential area / Around traffic fewer / Security enhancement / Wide balcony / Bathroom 1 tsubo or more / Bicycle-parking space / Elevator / Otobasu / Leafy residential area / Ventilation good / All living room flooring / water filter / Storeroom / Pets Negotiable / Located on a hill / Floor heating / Delivery Box / Bike shelter
Property name
☆ Borrowed landscape from the room is a must-see ☆ Urban view Okamoto
Price
69,800,000 yen
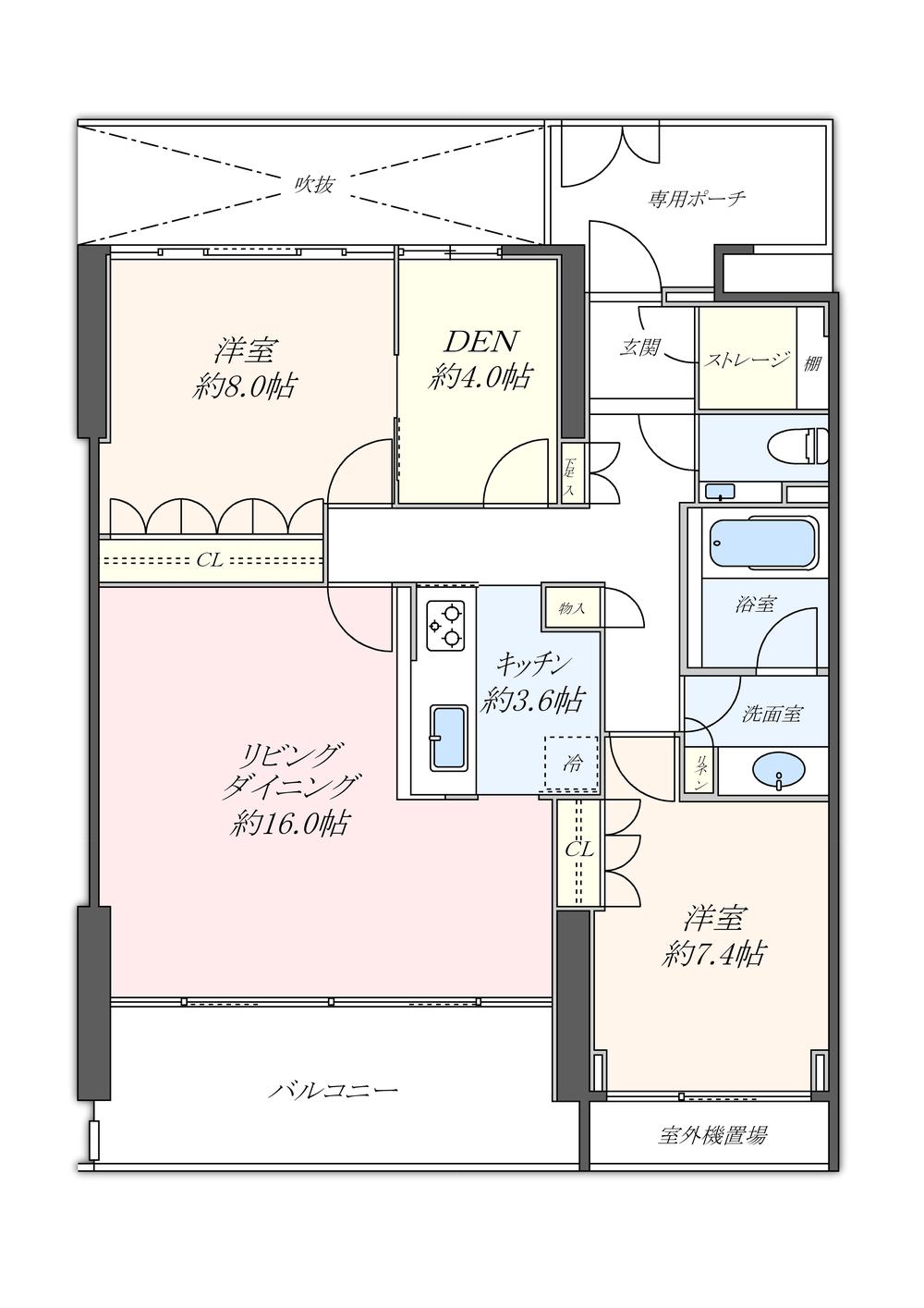
Floor plan
2LDK + S (storeroom)
Units sold
1 units
Total units
23 units
Occupied area
88.41 sq m (26.74 tsubo) (center line of wall)
Other area
Balcony area: 11.05 sq m
Whereabouts floor / structures and stories
Second floor / RC5 story
Completion date
March 2004
Address
Setagaya-ku, Tokyo Okamoto 3
Traffic
Tokyu Den-en-toshi Line "Futakotamagawa" bus 14 minutes Okamoto Sanchome walk 2 minutes
Odakyu line "Seijogakuen before" bus 13 minutes Okamoto Sanchome walk 2 minutes
Person in charge
Person in charge of real-estate and building FP Nagao Gyoyo Age: 20 Daigyokai Experience: 8 years First, Please tell us the background of looking! Property should be there somewhere close to your conditions! Also, You should begin to see also a need of looking for did not appear in person in question! Why do not you start house hunting from talking with us?
Contact
TEL: 0800-603-1955 [Toll free] mobile phone ・ Also available from PHS
Caller ID is not notified
Please contact the "saw SUUMO (Sumo)"
If it does not lead, If the real estate company
Administrative expense
17,200 yen / Month (consignment (commuting))
Repair reserve
5300 yen / Month
Expenses
Union dues: 200 yen / Month
Time residents
Consultation
Whereabouts floor
Second floor
Direction
Southwest
Other limitations
※ If there are other restrictions, please, enter it here
Overview and notices
Contact: Nagao Gyoyo
Structure-storey
RC5 story
Site of the right form
Ownership
Use district
One low-rise
Parking lot
Site (17,000 yen / Month)
Company profile
<Marketing alliance (mediated)> Governor of Tokyo (6) No. 060665 (Corporation) Tokyo Metropolitan Government Building Lots and Buildings Transaction Business Association (Corporation) metropolitan area real estate Fair Trade Council member (Ltd.) Uptown Yubinbango158-0097 Setagaya-ku, Tokyo Yoga 2-34-13
Construction
Kajima Corporation (Corporation)


Local appearance photo

Local appearance photo. Local appearance
Local appearance

Floor plan

Floor plan. 2LDK + S (storeroom), Price 69,800,000 yen, Occupied area 88.41 sq m , Balcony area 11.05 sq m
2LDK + S (storeroom), Price 69,800,000 yen, Occupied area 88.41 sq m , Balcony area 11.05 sq m

Other common areas

Other common areas. Common areas
Common areas

Local appearance photo

Local appearance photo. Local appearance
Local appearance

Living

Living. Sunny living room
Sunny living room

Bathroom

Bathroom. 1620 full Otobasu system adoption of size
1620 full Otobasu system adoption of size

Kitchen
Kitchen

Non-living room

Non-living room. Western style room
Western style room

Entrance

Entrance. Entrance hall with a feeling of luxury
Entrance hall with a feeling of luxury

Toilet

Toilet. Stylish toilet
Stylish toilet

Other common areas

Other common areas. Common areas (entrance)
Common areas (entrance)

Park

park. Until Kinutakoen 740m
Until Kinutakoen 740m

View photos from the dwelling unit

View photos from the dwelling unit. Lush scenery from the balcony
Lush scenery from the balcony

Local appearance photo

Local appearance photo. Local appearance
Local appearance

Other common areas

Other common areas. Common areas
Common areas

Other Environmental Photo

Other Environmental Photo. Okamoto Minka Garden ・ Until Seikadō Bunko Art Museum 530m
Okamoto Minka Garden ・ Until Seikadō Bunko Art Museum 530m

View photos from the dwelling unit

View photos from the dwelling unit. The view from the dwelling unit
The view from the dwelling unit

Local appearance photo

Local appearance photo. Local appearance
Local appearance

Other common areas

Other common areas. Common areas
Common areas

Local appearance photo

Local appearance photo. Local front road
Local front road



Location