1978March
29,900,000 yen, 3LDK, 61.6 sq m
Used Apartments » Kanto » Tokyo » Setagaya
 
| | Setagaya-ku, Tokyo 東京都世田谷区 |
| Keio Line "Hachimanyama" walk 16 minutes 京王線「八幡山」歩16分 |
| Total units 157 units of the big community, Live-management system for peace of mind, Per yang ・ ventilation ・ Good view, I could live with a pet 総戸数157戸のビッグコミュニティ、安心の住み込み管理体制、陽当たり・通風・眺望良好、ペットと一緒に暮らせます |
Features pickup 特徴ピックアップ | | 2 along the line more accessible / System kitchen / Bathroom Dryer / Yang per good / Flat to the station / Washbasin with shower / Plane parking / Bicycle-parking space / Otobasu / High speed Internet correspondence / TV monitor interphone / All living room flooring / Good view / water filter / Bike shelter 2沿線以上利用可 /システムキッチン /浴室乾燥機 /陽当り良好 /駅まで平坦 /シャワー付洗面台 /平面駐車場 /駐輪場 /オートバス /高速ネット対応 /TVモニタ付インターホン /全居室フローリング /眺望良好 /浄水器 /バイク置場 | Property name 物件名 | | Roka park Sky Heights 芦花公園スカイハイツ | Price 価格 | | 29,900,000 yen 2990万円 | Floor plan 間取り | | 3LDK 3LDK | Units sold 販売戸数 | | 1 units 1戸 | Total units 総戸数 | | 157 units 157戸 | Occupied area 専有面積 | | 61.6 sq m (center line of wall) 61.6m2(壁芯) | Whereabouts floor / structures and stories 所在階/構造・階建 | | 4th floor / SRC10 story 4階/SRC10階建 | Completion date 完成時期(築年月) | | March 1978 1978年3月 | Address 住所 | | Setagaya-ku, Tokyo Chitosedai 4-26-2 東京都世田谷区千歳台4-26-2 | Traffic 交通 | | Keio Line "Hachimanyama" walk 16 minutes 京王線「八幡山」歩16分
| Person in charge 担当者より | | Rep Hatano Yohei industry experience: 7 years 担当者波田野 洋平業界経験:7年 | Contact お問い合せ先 | | TEL: 0800-601-5277 [Toll free] mobile phone ・ Also available from PHS Caller ID is not notified Please contact the "saw SUUMO (Sumo)" If it does not lead, If the real estate company TEL:0800-601-5277【通話料無料】携帯電話・PHSからもご利用いただけます 発信者番号は通知されません 「SUUMO(スーモ)を見た」と問い合わせください つながらない方、不動産会社の方は
| Administrative expense 管理費 | | 18,000 yen / Month (consignment (commuting)) 1万8000円/月(委託(通勤)) | Repair reserve 修繕積立金 | | 17,090 yen / Month 1万7090円/月 | Time residents 入居時期 | | Immediate available 即入居可 | Whereabouts floor 所在階 | | 4th floor 4階 | Direction 向き | | West 西 | Overview and notices その他概要・特記事項 | | Contact: Hatano Yohei 担当者:波田野 洋平 | Structure-storey 構造・階建て | | SRC10 story SRC10階建 | Site of the right form 敷地の権利形態 | | Ownership 所有権 | Parking lot 駐車場 | | Sky Mu 空無 | Company profile 会社概要 | | <Seller> Minister of Land, Infrastructure and Transport (2) No. 007356 (Ltd.) Total Estate Tokyo Branch Yubinbango105-0001 Toranomon, Minato-ku, Tokyo 2-3-17 Toranomon 2-chome Tower 8th floor <売主>国土交通大臣(2)第007356号(株)トータルエステート東京支社〒105-0001 東京都港区虎ノ門2-3-17 虎ノ門2丁目タワー8階 | Construction 施工 | | Hasegawa builders 長谷川工務店 |
 Living
リビング
 Local appearance photo
現地外観写真
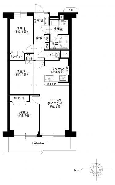
Floor plan間取り図  3LDK, Price 29,900,000 yen, Footprint 61.6 sq m
3LDK、価格2990万円、専有面積61.6m2
 Local appearance photo
現地外観写真
 Living
リビング
 Bathroom
浴室
 Kitchen
キッチン
 Non-living room
リビング以外の居室
 Wash basin, toilet
洗面台・洗面所
 Toilet
トイレ
 Non-living room
リビング以外の居室
Location
|