|
|
Setagaya-ku, Tokyo
東京都世田谷区
|
|
Odakyu line "Kyodo" walk 7 minutes
小田急線「経堂」歩7分
|
|
If Interikkusu of property, Please leave our Interikkusu home sales! ◆ 7-minute walk from "Kyodo Station"! 2 Line 2 stations available! ◆ Hito per west Kitagawa road ・ ventilation ・ Living environment favorable!
インテリックスの物件なら、弊社インテリックス住宅販売にお任せ下さい!◆「経堂駅」より徒歩7分!2路線2駅利用可能!◆西側北川道につき陽当・通風・住環境良好!
|
|
・ Wide span balcony of about 11.7m ・ Pet breeding consultation ・ Renovation and construction: Interikkusu space design our HP → http / / www.intellex.jp / bukken-detail / F0428 / we, Interikkusu Group, To the axis of the condominium and Renovation, From renovation Property, Purchase of condominium + until the proposal of renovation, Please let me explain a new way of condominium! If it is a thing of the condominium and Renovation, Please feel free to contact us.
・約11.7mのワイドスパンバルコニー・ペット飼育相談・リノベーション施工:インテリックス空間設計弊社HP→http://www.intellex.jp/bukken-detail/F0428/私達、インテリックスグループは、中古マンションとリノベーションを軸に、リノベーション物件から、中古マンションの購入+リノベーションの提案まで、中古マンションの新しい在り方をご説明させて頂きます! 中古マンションとリノベーションの事なら、お気軽にお問い合わせください。
|
Features pickup 特徴ピックアップ | | Fit renovation / Immediate Available / 2 along the line more accessible / It is close to Tennis Court / Corner dwelling unit / Pets Negotiable 適合リノベーション /即入居可 /2沿線以上利用可 /テニスコートが近い /角住戸 /ペット相談 |
Property name 物件名 | | Yotsuya eaves fifth Kyodo City Corporation 四谷軒第5経堂シティコーポ |
Price 価格 | | 25,990,000 yen 2599万円 |
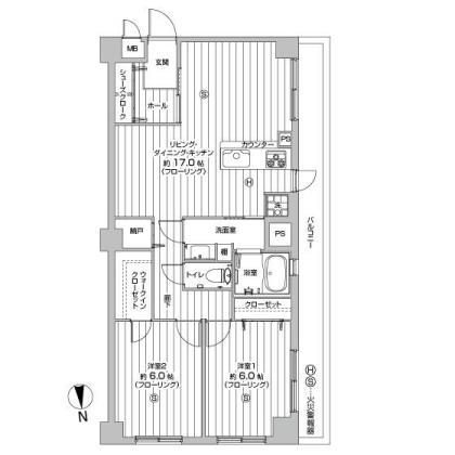
Floor plan 間取り | | 2LDK 2LDK |
Units sold 販売戸数 | | 1 units 1戸 |
Total units 総戸数 | | 65 units 65戸 |
Occupied area 専有面積 | | 66 sq m (center line of wall) 66m2(壁芯) |
Other area その他面積 | | Balcony area: 8.4 sq m バルコニー面積:8.4m2 |
Whereabouts floor / structures and stories 所在階/構造・階建 | | Second floor / RC5 story 2階/RC5階建 |
Completion date 完成時期(築年月) | | September 1974 1974年9月 |
Address 住所 | | Setagaya-ku, Tokyo Akatsutsumi 1 東京都世田谷区赤堤1 |
Traffic 交通 | | Odakyu line "Kyodo" walk 7 minutes Setagaya Line Tokyu "Matsubara" walk 11 minutes 小田急線「経堂」歩7分 東急世田谷線「松原」歩11分
|
Related links 関連リンク | | [Related Sites of this company] 【この会社の関連サイト】 |
Person in charge 担当者より | | Person in charge of real-estate and building Enomoto Ryota Age: 30 Daigyokai experience: not only to introduce the six years just listing, "How risk that few if" "If Re How, Whether we are living the ideal ", etc., We need to realize the full renovation of knowledge, We offer. 担当者宅建榎本 亮太年齢:30代業界経験:6年ただ物件を紹介するだけではなく、「どのようにすればリスクが少ないのか」「どうれば、理想の暮らしができるのか」など、リノベーションの知識を最大限活用して、ご提案させて頂きます。 |
Contact お問い合せ先 | | TEL: 0800-603-1782 [Toll free] mobile phone ・ Also available from PHS Caller ID is not notified Please contact the "saw SUUMO (Sumo)" If it does not lead, If the real estate company TEL:0800-603-1782【通話料無料】携帯電話・PHSからもご利用いただけます 発信者番号は通知されません 「SUUMO(スーモ)を見た」と問い合わせください つながらない方、不動産会社の方は
|
Administrative expense 管理費 | | 13,000 yen / Month (consignment (commuting)) 1万3000円/月(委託(通勤)) |
Repair reserve 修繕積立金 | | 25,320 yen / Month 2万5320円/月 |
Time residents 入居時期 | | Immediate available 即入居可 |
Whereabouts floor 所在階 | | Second floor 2階 |
Direction 向き | | West 西 |
Renovation リフォーム | | July 2013 interior renovation completed (toilet ・ wall ・ floor) 2013年7月内装リフォーム済(トイレ・壁・床) |
Overview and notices その他概要・特記事項 | | Contact: Enomoto Ryota 担当者:榎本 亮太 |
Structure-storey 構造・階建て | | RC5 story RC5階建 |
Site of the right form 敷地の権利形態 | | Ownership 所有権 |
Use district 用途地域 | | One middle and high, Two mid-high 1種中高、2種中高 |
Parking lot 駐車場 | | The exclusive right to use with parking (free) 専用使用権付駐車場(無料) |
Company profile 会社概要 | | <Mediation> Minister of Land, Infrastructure and Transport (3) No. 006493 (Corporation) All Japan Real Estate Association (Corporation) metropolitan area real estate Fair Trade Council member (Ltd.) Interikkusu home sales 150-0002 Shibuya, Shibuya-ku, Tokyo 2-12-19 Token International building 11 floors <仲介>国土交通大臣(3)第006493号(公社)全日本不動産協会会員 (公社)首都圏不動産公正取引協議会加盟(株)インテリックス住宅販売〒150-0002 東京都渋谷区渋谷2-12-19 東建インターナショナルビル11階 |
Construction 施工 | | (Yes) Yotsuya eaves (有)四谷軒 |