2002August
95 million yen, 4LDK, 134.03 sq m
Used Apartments » Kanto » Tokyo » Setagaya
 
| | Setagaya-ku, Tokyo 東京都世田谷区 |
| Denentoshi Tokyu "Futakotamagawa" walk 9 minutes 東急田園都市線「二子玉川」歩9分 |
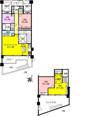
Property name 物件名 | | South Square サウススクエア | Price 価格 | | 95 million yen 9500万円 | Floor plan 間取り | | 4LDK 4LDK | Units sold 販売戸数 | | 1 units 1戸 | Total units 総戸数 | | 166 units 166戸 | Occupied area 専有面積 | | 134.03 sq m (center line of wall) 134.03m2(壁芯) | Other area その他面積 | | Balcony area: 12.43 sq m バルコニー面積:12.43m2 | Whereabouts floor / structures and stories 所在階/構造・階建 | | Second floor / RC6 floors 1 underground story 2階/RC6階地下1階建 | Completion date 完成時期(築年月) | | August 2002 2002年8月 | Address 住所 | | Setagaya-ku, Tokyo Kaminoge 3 東京都世田谷区上野毛3 | Traffic 交通 | | Denentoshi Tokyu "Futakotamagawa" walk 9 minutes Oimachi Line Tokyu "Kaminoge" walk 5 minutes 東急田園都市線「二子玉川」歩9分 東急大井町線「上野毛」歩5分
| Person in charge 担当者より | | The person in charge Ono Yohei 担当者小野 陽平 | Contact お問い合せ先 | | Sumitomo Real Estate Sales Co., Ltd. Meguro business center TEL: 03-3779-6711 Please contact as "saw SUUMO (Sumo)" 住友不動産販売(株)目黒営業センターTEL:03-3779-6711「SUUMO(スーモ)を見た」と問い合わせください | Administrative expense 管理費 | | 28,850 yen / Month (consignment (commuting)) 2万8850円/月(委託(通勤)) | Repair reserve 修繕積立金 | | 17,420 yen / Month 1万7420円/月 | Time residents 入居時期 | | Consultation 相談 | Whereabouts floor 所在階 | | Second floor 2階 | Direction 向き | | Southeast 南東 | Overview and notices その他概要・特記事項 | | Contact: Ono Yohei 担当者:小野 陽平 | Structure-storey 構造・階建て | | RC6 floors 1 underground story RC6階地下1階建 | Site of the right form 敷地の権利形態 | | Ownership 所有権 | Use district 用途地域 | | One dwelling 1種住居 | Parking lot 駐車場 | | Site (3000 yen / Month) 敷地内(3000円/月) | Company profile 会社概要 | | <Mediation> Minister of Land, Infrastructure and Transport (11) No. 002077 (one company) Real Estate Association (Corporation) metropolitan area real estate Fair Trade Council member Sumitomo Real Estate Sales Co., Ltd. Meguro business center Yubinbango141-0021 Shinagawa-ku, Tokyo Kamiosaki 2-24-11 Meguro Nishiguchi Mansion Building No. 2 first floor <仲介>国土交通大臣(11)第002077号(一社)不動産協会会員 (公社)首都圏不動産公正取引協議会加盟住友不動産販売(株)目黒営業センター〒141-0021 東京都品川区上大崎2-24-11 目黒西口マンション2号館1階 |
Local appearance photo現地外観写真  Appearance (1)
外観(1)
 Floor plan
間取り図
Location
|