Used Apartments » Kanto » Tokyo » Setagaya
 
| | Setagaya-ku, Tokyo 東京都世田谷区 |
| Inokashira "Meidaimae" walk 3 minutes 京王井の頭線「明大前」歩3分 |
| In the top floor of the 8-story high-rise apartment, Per yang ・ Ventilation good! Mt. Fuji is from the west window, Views Sky tree from the east window! 8階建高層マンションの最上階で、陽当たり・通風良好! 西側窓からは富士山が、東側窓からはスカイツリーが望めます! |
| ~ Renovation content ~ ◆ Flooring ◆ ceiling ・ Wall Cross ◆ Washroom ・ Toilet CF ◆ System kitchen ◆ unit bus ◆ Bathroom vanity ◆ Bidet ◆ Water heater ◆ Joinery ◆ Footwear purse ◆ Double sash ◆ Cosmo switch ◆ lighting equipment ◆ cleaning other ~ リノベーション内容 ~ ◆フローリング ◆天井・壁クロス ◆洗面所・トイレCF ◆システムキッチン◆ユニットバス ◆洗面化粧台 ◆ウォシュレット ◆給湯器 ◆建具◆下足入れ ◆二重サッシ ◆コスモスイッチ ◆照明器具 ◆クリーニング 他 |
Features pickup 特徴ピックアップ | | 2 along the line more accessible / Super close / It is close to the city / Interior renovation / System kitchen / Yang per good / top floor ・ No upper floor / Flooring Chokawa / Elevator / Warm water washing toilet seat / Urban neighborhood / Ventilation good 2沿線以上利用可 /スーパーが近い /市街地が近い /内装リフォーム /システムキッチン /陽当り良好 /最上階・上階なし /フローリング張替 /エレベーター /温水洗浄便座 /都市近郊 /通風良好 | Property name 物件名 | | Toa Meidaimae Mansion トーア明大前マンション | Price 価格 | | 21,990,000 yen 2199万円 | Floor plan 間取り | | 1LDK 1LDK | Units sold 販売戸数 | | 1 units 1戸 | Total units 総戸数 | | 88 units 88戸 | Occupied area 専有面積 | | 38.43 sq m (11.62 tsubo) (center line of wall) 38.43m2(11.62坪)(壁芯) | Other area その他面積 | | Balcony area: 3.98 sq m バルコニー面積:3.98m2 | Whereabouts floor / structures and stories 所在階/構造・階建 | | 8th floor / SRC8 story 8階/SRC8階建 | Completion date 完成時期(築年月) | | August 1978 1978年8月 | Address 住所 | | Setagaya-ku, Tokyo Matsubara 1 東京都世田谷区松原1 | Traffic 交通 | | Inokashira "Meidaimae" walk 3 minutes Keio Line "Meidaimae" walk 3 minutes 京王井の頭線「明大前」歩3分 京王線「明大前」歩3分
| Person in charge 担当者より | | [Regarding this property.] 8-storey, top floor ・ Day ・ ventilation ・ View is good! Already the new interior renovation! 【この物件について】8階建て、最上階・日当たり・通風・眺望良好です!新規内装リノベーション済! | Contact お問い合せ先 | | TEL: 0800-603-8317 [Toll free] mobile phone ・ Also available from PHS Caller ID is not notified Please contact the "saw SUUMO (Sumo)" If it does not lead, If the real estate company TEL:0800-603-8317【通話料無料】携帯電話・PHSからもご利用いただけます 発信者番号は通知されません 「SUUMO(スーモ)を見た」と問い合わせください つながらない方、不動産会社の方は
| Administrative expense 管理費 | | 7630 yen / Month (consignment (commuting)) 7630円/月(委託(通勤)) | Repair reserve 修繕積立金 | | 10,800 yen / Month 1万800円/月 | Time residents 入居時期 | | Consultation 相談 | Whereabouts floor 所在階 | | 8th floor 8階 | Direction 向き | | West 西 | Renovation リフォーム | | 2013 September interior renovation completed (kitchen ・ bathroom ・ toilet ・ wall ・ floor) 2013年9月内装リフォーム済(キッチン・浴室・トイレ・壁・床) | Structure-storey 構造・階建て | | SRC8 story SRC8階建 | Site of the right form 敷地の権利形態 | | Ownership 所有権 | Use district 用途地域 | | One dwelling 1種住居 | Company profile 会社概要 | | <Mediation> Governor of Tokyo (2) No. 087339 (Corporation) Tokyo Metropolitan Government Building Lots and Buildings Transaction Business Association (Corporation) metropolitan area real estate Fair Trade Council member (Ltd.) KurenaiWataru Yubinbango155-0031 Setagaya-ku, Tokyo Kitazawa 2-4-8 Beniyabiru 2F <仲介>東京都知事(2)第087339号(公社)東京都宅地建物取引業協会会員 (公社)首都圏不動産公正取引協議会加盟(株)紅弥〒155-0031 東京都世田谷区北沢2-4-8 ベニヤビル2F | Construction 施工 | | Tada Corporation (Corporation) 多田建設(株) |
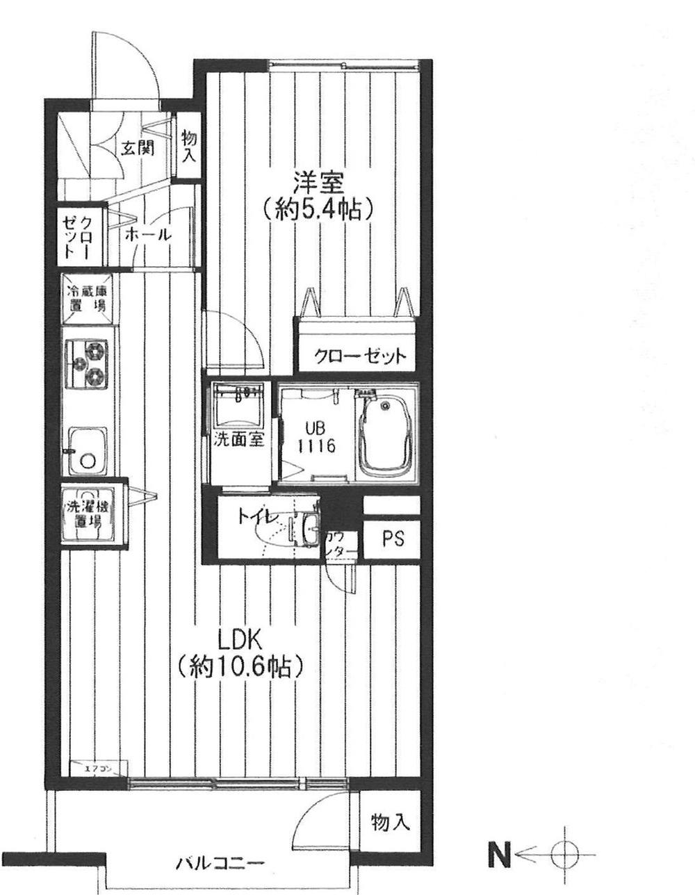
Floor plan間取り図  1LDK, Price 21,990,000 yen, Occupied area 38.43 sq m , Full renovation of the balcony area 3.98 sq m functional 1LDK type ・ Mansion
1LDK、価格2199万円、専有面積38.43m2、バルコニー面積3.98m2 機能的な1LDKタイプのフルリノベーション・マンション
Local appearance photo現地外観写真  8 is a story high-rise apartment on the top floor dwelling unit (October 2013 shooting)
8階建高層マンションの最上階住戸です(2013年10月撮影)
 Meidaimae Station 3-minute walk of the convenient location of the (October 2013 shooting)
明大前駅徒歩3分の至便の立地(2013年10月撮影)
Shopping centreショッピングセンター  Until the Frente Meidaimae 240m Station shopping mall ・ Frente until Meidaimae, 3-minute walk
フレンテ明大前まで240m 駅前ショッピングモール・フレンテ明大前まで、徒歩3分
Drug storeドラッグストア  Drugstore to help 240m living up to medicine Seijo is also available in front of the station
くすりセイジョーまで240m 暮らしに役立つドラッグストアも駅前にあります
Other Environmental Photoその他環境写真  Attractions of 560m cherry tree to the Waterworks Bureau Wada moat water stations ・ Wada moat water station is also within walking distance
水道局和田堀給水所まで560m 桜の名所・和田堀給水所も徒歩圏です
 Also substantial store that targets the 480m student until the Meiji University Izumi campus
明治大学和泉キャンパスまで480m 学生を対象とした商店も充実しています
Location
|