|
|
Setagaya-ku, Tokyo
東京都世田谷区
|
|
Oimachi Line Tokyu "Oyamadai" walk 11 minutes
東急大井町線「尾山台」歩11分
|
|
2 Station Available ・ "Oyamadai" station walk 11 minutes ・ "Roar" a 12-minute walk ・ November 2007 Built ・ Face-to-face kitchen ・ Spacious LDK ・ Maisonette
2駅利用可・「尾山台」駅徒歩11分・「等々力」徒歩12分・平成19年11月築・対面式キッチン・広々LDK・メゾネットタイプ
|
|
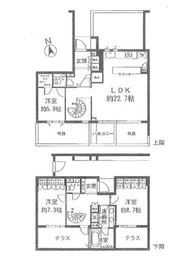
2007 Built in maisonette, It is the introduction of 3LDK rooms. 2 Station available a transportation access good! "Oyamadai" station walk 11 minutes, "Roar" good location of a 12-minute walk. It is very convenient for commuting. In face-to-face kitchen that dialogue also bouncing of the family, About 22 Pledge of LDK is open enough feeling! You can relax leisurely you aligned your family. 24-hour ventilation, Disposer and other equipment also enhance! It is also nice pet possible breeding. Please contact us by all means.
平成19年築のメゾネットタイプ、3LDKのお部屋のご紹介です。2駅利用可能で交通アクセス良好!「尾山台」駅徒歩11分、「等々力」徒歩12分の好立地。通勤通学に大変便利です。家族の対話も弾む対面式キッチンに、約22帖のLDKは開放感たっぷり!ご家族揃ってゆったりとお寛ぎいただけます。24時間換気、ディスポーザー等設備も充実!ペット飼育可能もうれしいですね。ぜひお問い合わせ下さいませ。
|
Property name 物件名 | | The ・ Grants Todoroki 3LDK ザ・グランツ等々力 3LDK |
Price 価格 | | 119 million yen 1億1900万円 |
Floor plan 間取り | | 3LDK 3LDK |
Units sold 販売戸数 | | 1 units 1戸 |
Total units 総戸数 | | 16 houses 16戸 |
Occupied area 専有面積 | | 125.46 sq m (center line of wall) 125.46m2(壁芯) |
Other area その他面積 | | Balcony area: 4.68 sq m バルコニー面積:4.68m2 |
Whereabouts floor / structures and stories 所在階/構造・階建 | | 1st floor / RC3 floors 1 underground story 1階/RC3階地下1階建 |
Completion date 完成時期(築年月) | | November 2007 2007年11月 |
Address 住所 | | Setagaya-ku, Tokyo Todoroki 1 東京都世田谷区等々力1 |
Traffic 交通 | | Oimachi Line Tokyu "Oyamadai" walk 11 minutes Oimachi Line Tokyu "roar" walk 12 minutes 東急大井町線「尾山台」歩11分 東急大井町線「等々力」歩12分
|
Related links 関連リンク | | [Related Sites of this company] 【この会社の関連サイト】 |
Contact お問い合せ先 | | TEL: 0800-805-6236 [Toll free] mobile phone ・ Also available from PHS Caller ID is not notified Please contact the "saw SUUMO (Sumo)" If it does not lead, If the real estate company TEL:0800-805-6236【通話料無料】携帯電話・PHSからもご利用いただけます 発信者番号は通知されません 「SUUMO(スーモ)を見た」と問い合わせください つながらない方、不動産会社の方は
|
Administrative expense 管理費 | | 63,900 yen / Month (consignment (resident)) 6万3900円/月(委託(常駐)) |
Repair reserve 修繕積立金 | | 11,300 yen / Month 1万1300円/月 |
Time residents 入居時期 | | Consultation 相談 |
Whereabouts floor 所在階 | | 1st floor 1階 |
Direction 向き | | Southwest 南西 |
Other limitations その他制限事項 | | terrace / 19.38m2 Pets welcome (management contract limit Yes) テラス/19.38m2 ペット可能(管理規約制限有) |
Structure-storey 構造・階建て | | RC3 floors 1 underground story RC3階地下1階建 |
Site of the right form 敷地の権利形態 | | Ownership 所有権 |
Parking lot 駐車場 | | Site (30,000 yen / Month) 敷地内(3万円/月) |
Company profile 会社概要 | | <Mediation> Minister of Land, Infrastructure and Transport (3) The 006,183 No. housing Information Center Azamino shop Seongnam Construction (Ltd.) Yubinbango225-0005 Kanagawa Prefecture, Aoba-ku, Yokohama City Ekoda 3-6-1 <仲介>国土交通大臣(3)第006183号住宅情報館 あざみ野店城南建設(株)〒225-0005 神奈川県横浜市青葉区荏子田3-6-1 |