Used Apartments » Kanto » Tokyo » Setagaya


Setagaya-ku, Tokyo
Denentoshi Tokyu "Komazawa" walk 15 minutes
Rare spacious top floor angle room with a roof balcony, The rooms are quiet because it does not face the ring 7. Since the two sides balcony, Bright is.
■ The top floor angle room ■ September 2006 Built ■ Concierge Service ■ Pet breeding Allowed ■ Floor heating ■ Double floor, Double ceiling ■ Out frame construction method ■ Very quiet because we are not facing the main street
Features pickup
Construction housing performance with evaluation / Design house performance with evaluation / Vibration Control ・ Seismic isolation ・ Earthquake resistant / 2 along the line more accessible / Super close / System kitchen / Bathroom Dryer / Corner dwelling unit / All room storage / Flat to the station / top floor ・ No upper floor / 24 hours garbage disposal Allowed / Security enhancement / Self-propelled parking / 3 face lighting / Barrier-free / 2 or more sides balcony / Bicycle-parking space / Elevator / High speed Internet correspondence / Warm water washing toilet seat / The window in the bathroom / TV monitor interphone / High-function toilet / Ventilation good / All living room flooring / water filter / Pets Negotiable / BS ・ CS ・ CATV / Maintained sidewalk / roof balcony / Flat terrain / Floor heating / Delivery Box / Bike shelter
Property name
Adenium Gakugeidaigaku
Price
48,800,000 yen
Floor plan
2LDK
Units sold
1 units
Total units
55 units
Occupied area
59.04 sq m (center line of wall)
Other area
Balcony area: 5.79 sq m , Roof balcony: 28.76 sq m (use fee 900 yen / Month)
Whereabouts floor / structures and stories
3rd floor / RC7 floors 1 underground story
Completion date
September 2006
Address
Setagaya-ku, Tokyo Nozawa 3
Traffic
Denentoshi Tokyu "Komazawa" walk 15 minutes
Tokyu Toyoko Line "liberal arts college" walk 15 minutes
Denentoshi Tokyu "Sangenjaya" walk 23 minutes
Person in charge
Person in charge of real-estate and building FP Hidetoshi Imoto Age: sale of 30s real estate ・ Purchase, It is critical events once or twice in your life. I will my best effort so who can say that it was good asked the spirit good faith efforts "Imoto" to set up in your role of everyone who. Please consult anything if it is a thing of real estate.
Contact
TEL: 0800-808-5248 [Toll free] mobile phone ・ Also available from PHS
Caller ID is not notified
Please contact the "saw SUUMO (Sumo)"
If it does not lead, If the real estate company
Administrative expense
10,740 yen / Month (consignment (commuting))
Repair reserve
6490 yen / Month
Time residents
Consultation
Whereabouts floor
3rd floor
Direction
North
Overview and notices
Contact: Hidetoshi Imoto
Structure-storey
RC7 floors 1 underground story
Site of the right form
Ownership
Parking lot
Site (20,000 yen ~ 30,000 yen / Month)
Company profile
<Mediation> Minister of Land, Infrastructure and Transport (1) No. 008321 (Ltd.) Total planning Jiyugaoka Yubinbango152-0035 Meguro-ku, Tokyo Jiyugaoka 1-29-1


Local appearance photo
Local appearance photo

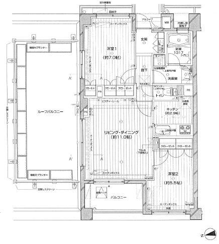
Floor plan

Floor plan. 2LDK, Price 48,800,000 yen, Occupied area 59.04 sq m , Balcony area 5.79 sq m
2LDK, Price 48,800,000 yen, Occupied area 59.04 sq m , Balcony area 5.79 sq m

Other

Other. roof balcony
roof balcony

Local appearance photo
Local appearance photo

Living

Living. Bright living room of the two-sided lighting
Bright living room of the two-sided lighting

Bathroom

Bathroom. Bathroom ventilation dryer, Reheating with semi Otobasu, Yes window
Bathroom ventilation dryer, Reheating with semi Otobasu, Yes window

Kitchen

Kitchen. Easy-to-use independent type of kitchen
Easy-to-use independent type of kitchen

Non-living room

Non-living room. Western-style 7 Pledge
Western-style 7 Pledge

Entrance

Entrance. Entrance of natural stone used
Entrance of natural stone used

Wash basin, toilet

Wash basin, toilet. Dressing room ・ Wash
Dressing room ・ Wash

Toilet
Toilet

Entrance

Entrance. Common areas
Common areas

Lobby

lobby. Common areas
Common areas

Other common areas

Other common areas. Parking entrance
Parking entrance

View photos from the dwelling unit
View photos from the dwelling unit

Wash basin, toilet

Wash basin, toilet. Wash basin
Wash basin

Other common areas

Other common areas. Parking lot
Parking lot

Other common areas. Bike shelter
Bike shelter

Other common areas. Bicycle-parking space
Bicycle-parking space



Location