Used Apartments » Kanto » Tokyo » Setagaya
 
| | Setagaya-ku, Tokyo 東京都世田谷区 |
| Setagaya Line Tokyu "Shoinjinsha before" walk 6 minutes 東急世田谷線「松陰神社前」歩6分 |
| Our company [Seller] 1 building renovation! 76 sq m 4900 million units in the land of the top horses 5 chome Setagaya likeness is fragrant ~ , 50 sq m 3500 million units ~ I finally newly released from next year at January 4, 10 am! 当社【売主】1棟リノベーション!世田谷らしさが薫る上馬5丁目の地に76m24900万円台 ~ 、50m23500万円台 ~ いよいよ来年1月4日午前10時より新発売いたします! |
| ■ Birth 1 building renovation on horse 5 chome Setagaya likeness is fragrant! ■ Walk to Shoinjinsha 9 minutes, Is a shrine that is familiar to local residents for a long time ■ Shopping street that follows from Shoinjinsha is also very convenient city for daily living ■ Entrance has also been a large part refurbishment and also repair exterior wall tile in one building renovation ■ Planting plan surrounding the apartment was also changed planted review from scratch ■世田谷らしさが薫る上馬5丁目に1棟リノベーションが誕生!■松陰神社へ徒歩9分、古くから地元の方々に親しまれている神社です■松陰神社からつづく商店街も毎日の暮らしにとても便利な街です■1棟リノベーションで外壁タイルも補修してエントランスも大部分改修されました■マンションをとりまく植栽プランも一から見直し植えかえました |
Features pickup 特徴ピックアップ | | Construction housing performance with evaluation / Corresponding to the flat-35S / Fit renovation / 2 along the line more accessible / Fiscal year Available / Energy-saving water heaters / Super close / It is close to the city / Interior and exterior renovation / System kitchen / Bathroom Dryer / Yang per good / Flat to the station / A quiet residential area / Around traffic fewer / Mist sauna / Washbasin with shower / Face-to-face kitchen / Plane parking / Exterior renovation / Bicycle-parking space / Elevator / Warm water washing toilet seat / TV monitor interphone / Leafy residential area / Ventilation good / All living room flooring / Pets Negotiable / Floor heating / Delivery Box / Bike shelter 建設住宅性能評価付 /フラット35Sに対応 /適合リノベーション /2沿線以上利用可 /年度内入居可 /省エネ給湯器 /スーパーが近い /市街地が近い /内外装リフォーム /システムキッチン /浴室乾燥機 /陽当り良好 /駅まで平坦 /閑静な住宅地 /周辺交通量少なめ /ミストサウナ /シャワー付洗面台 /対面式キッチン /平面駐車場 /外装リフォーム /駐輪場 /エレベーター /温水洗浄便座 /TVモニタ付インターホン /緑豊かな住宅地 /通風良好 /全居室フローリング /ペット相談 /床暖房 /宅配ボックス /バイク置場 | Event information イベント情報 | | Model Room (Please be sure to ask in advance) schedule / January 11 (Saturday) ・ January 12 (Sunday) time / 10:00 ~ 17:00 モデルルーム(事前に必ずお問い合わせください)日程/1月11日(土曜日)・1月12日(日曜日)時間/10:00 ~ 17:00 | Property name 物件名 | | Grand Bays Setagaya Garden Phase 1 グランドベイス世田谷ガーデン第1期 | Price 価格 | | 35,800,000 yen ~ 59,800,000 yen 3580万円 ~ 5980万円 | Floor plan 間取り | | 2LDK ~ 3LDK 2LDK ~ 3LDK | Units sold 販売戸数 | | 17 units 17戸 | Total units 総戸数 | | 30 units 30戸 | Occupied area 専有面積 | | 50.3 sq m ~ 76.31 sq m (center line of wall) 50.3m2 ~ 76.31m2(壁芯) | Other area その他面積 | | Balcony area: 8.09 sq m ~ 12.24 sq m バルコニー面積:8.09m2 ~ 12.24m2 | Whereabouts floor / structures and stories 所在階/構造・階建 | | RC4 story RC4階建 | Completion date 完成時期(築年月) | | July 1992 1992年7月 | Address 住所 | | Setagaya-ku, Tokyo excellent horse 5 東京都世田谷区上馬5 | Traffic 交通 | | Setagaya Line Tokyu "Shoinjinsha before" walk 6 minutes Denentoshi Tokyu "Komazawa" walk 15 minutes 東急世田谷線「松陰神社前」歩6分 東急田園都市線「駒沢大学」歩15分
| Related links 関連リンク | | [Related Sites of this company] 【この会社の関連サイト】 | Person in charge 担当者より | | Person in charge of real-estate and building Kato Keiko Age: 20 Daigyokai Experience: 6 years home purchase is a big shopping in life. Customers will continue to help as available for purchase in the perfect score of smile! 担当者宅建加藤 恵子年齢:20代業界経験:6年住宅購入は人生において大きなお買物です。お客様が満点の笑顔でご購入いただけるようにお手伝いしていきます! | Contact お問い合せ先 | | TEL: 0800-603-3148 [Toll free] mobile phone ・ Also available from PHS Caller ID is not notified Please contact the "saw SUUMO (Sumo)" If it does not lead, If the real estate company TEL:0800-603-3148【通話料無料】携帯電話・PHSからもご利用いただけます 発信者番号は通知されません 「SUUMO(スーモ)を見た」と問い合わせください つながらない方、不動産会社の方は
| Sale schedule 販売スケジュール | | Model room public than at January 4, 10 am ~ Simultaneous first-come-first-served basis sale 1月4日午前10時よりモデルルーム公開 ~ 同時先着順販売開始 | Most price range 最多価格帯 | | 36 million yen ・ 40 million yen ・ 57 million yen (each 2 units) 3600万円台・4000万円台・5700万円台(各2戸) | Administrative expense 管理費 | | 9300 yen ~ 14100 yen / Month (consignment (cyclic)) 9300円 ~ 14100円 /月(委託(巡回)) | Repair reserve 修繕積立金 | | 7800 yen ~ 11830 yen / Month 7800円 ~ 11830円 /月 | Repair reserve fund 修繕積立基金 | | 277,000 yen ~ 420000 yen 277000円 ~ 420000円 | Expenses 諸費用 | | Other expenses: town council fee: 100 yen / Month その他諸費用:町会費:100円/月 | Time residents 入居時期 | | March 2014 in late schedule 2014年3月下旬予定 | Renovation リフォーム | | February 2014 interior renovation will be completed (kitchen ・ bathroom ・ toilet ・ wall ・ floor ・ all rooms ・ TES system introduction), Large-scale repairs will be completed in January 2014 2014年2月内装リフォーム完了予定(キッチン・浴室・トイレ・壁・床・全室・TESシステム導入)、2014年1月大規模修繕完了予定 | Other limitations その他制限事項 | | Regulations have by the Landscape Act, Quasi-fire zones, Shade limit Yes 景観法による規制有、準防火地域、日影制限有 | Overview and notices その他概要・特記事項 | | Contact: Kato Keiko 担当者:加藤 恵子 | Structure-storey 構造・階建て | | RC4 story RC4階建 | Site area 敷地面積 | | 1571.39 sq m 1571.39m2 | Site of the right form 敷地の権利形態 | | Ownership 所有権 | Use district 用途地域 | | One low-rise 1種低層 | Parking lot 駐車場 | | Two flat. Mechanical six [Fee] Mechanical lower 18000 yen ・ Mechanical upper 21000 yen ・ Flat. 28000 yen 平置2台 機械式6台 【料金】機械式下段18000円・機械式上段21000円・平置28000円 | Company profile 会社概要 | | <Seller> Governor of Tokyo (3) No. 080947 (Corporation) metropolitan area real estate Fair Trade Council member Global Bays (Ltd.) 150-0002 Shibuya, Shibuya-ku, Tokyo 2-15-1 cross Tower 23 floor <売主>東京都知事(3)第080947号(公社)首都圏不動産公正取引協議会会員 グローバルベイス(株)〒150-0002 東京都渋谷区渋谷2-15-1 クロスタワー23階 | Construction 施工 | | CO., LTD Fujikikomuten Tokyo branch 株式会社 藤木工務店 東京支店 |
Livingリビング  Model room A type 76 sq m living (December 2013) Shooting
モデルルームAタイプ 76m2 リビング (2013年12月)撮影
Kitchenキッチン  Model Room A type (December 2013) Shooting
モデルルームAタイプ(2013年12月)撮影
 Model Room A type (December 2013) Shooting
モデルルームAタイプ(2013年12月)撮影
Non-living roomリビング以外の居室  Model room A type Western style room
モデルルームAタイプ 洋室
Bathroom浴室  Model Room A type (December 2013) Shooting
モデルルームAタイプ(2013年12月)撮影
Non-living roomリビング以外の居室  Model Room A type (December 2013) Shooting
モデルルームAタイプ(2013年12月)撮影
 Model room A type Western-style 1
モデルルームAタイプ 洋室1
Other Equipmentその他設備  Misty was plus a mist sauna function in the bathroom heating dryer. Mist sauna is low temperature ・ Relax and you can enjoy without stuffy with high humidity!
浴室暖房乾燥機にミストサウナ機能をプラスしたミスティ。ミストサウナは低温・高湿度で息苦しくなくリラックスして楽しめます!
 Because the gas hot-water compared to the electric warms floor temperature is early, Non-uniformity of temperature is also less, Since the contact surface temperature is not too high, You can get comfortable heating effect.
ガス温水式なので電気式と比べて床温度が早く暖まり、温度のムラも少なく、接触面温度が上がりすぎないので、快適な暖房効果を得られます。
 Care of the easy flat-type range hood, With lighting to illuminate the gas stove
お手入れのしやすい平型レンジフード、ガスコンロを照らす照明付き
 In water purification cartridge built-in, Sink of cleaning can be used as a convenient hand shower
浄水カートリッジ内蔵式で、シンクの掃除が便利なハンドシャワーとして使用できます
 In your care is simple "glass top", It has adopted a gas stove, which was equipped with a "Mizunashi both sides grill" function
お手入れが簡単な「ガラストップ」で、「水無両面焼きグリル」機能を搭載したガスコンロを採用しました
Local appearance photo現地外観写真  Local (November 22, 2013) Shooting It is in large-scale repairs. January will be completed in 2014
現地(2013年11月22日)撮影 大規模修繕中です。2014年1月完成予定
Entrance玄関  Model room A type
モデルルームAタイプ
Wash basin, toilet洗面台・洗面所  Model Room A type (December 2012) Shooting
モデルルームAタイプ(2012年12月)撮影
Receipt収納  Model room A type Western-style closet
モデルルームAタイプ 洋室クローゼット
Other Equipmentその他設備  Drainage possible drainage plug by pressing a button on the top surface bathtub.
浴槽上面のボタンを押すことで排水可能な排水栓。
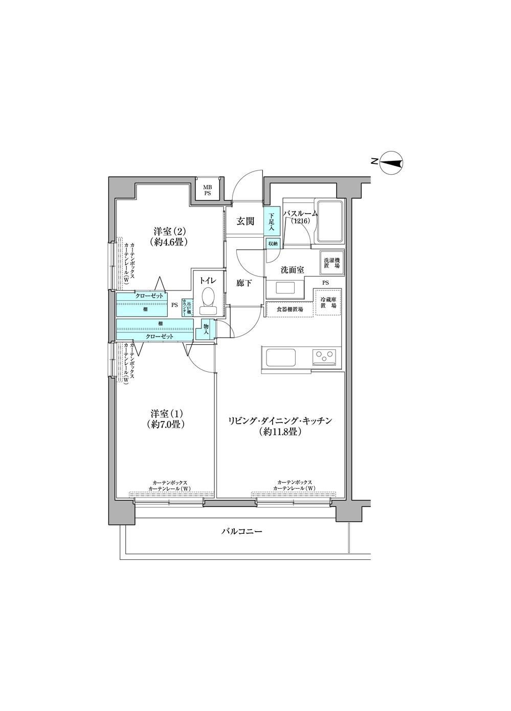
Floor plan間取り図  2LDK, Price 40,500,000 yen, Footprint 50.3 sq m , Balcony area 8.09 sq m
2LDK、価格4050万円、専有面積50.3m2、バルコニー面積8.09m2
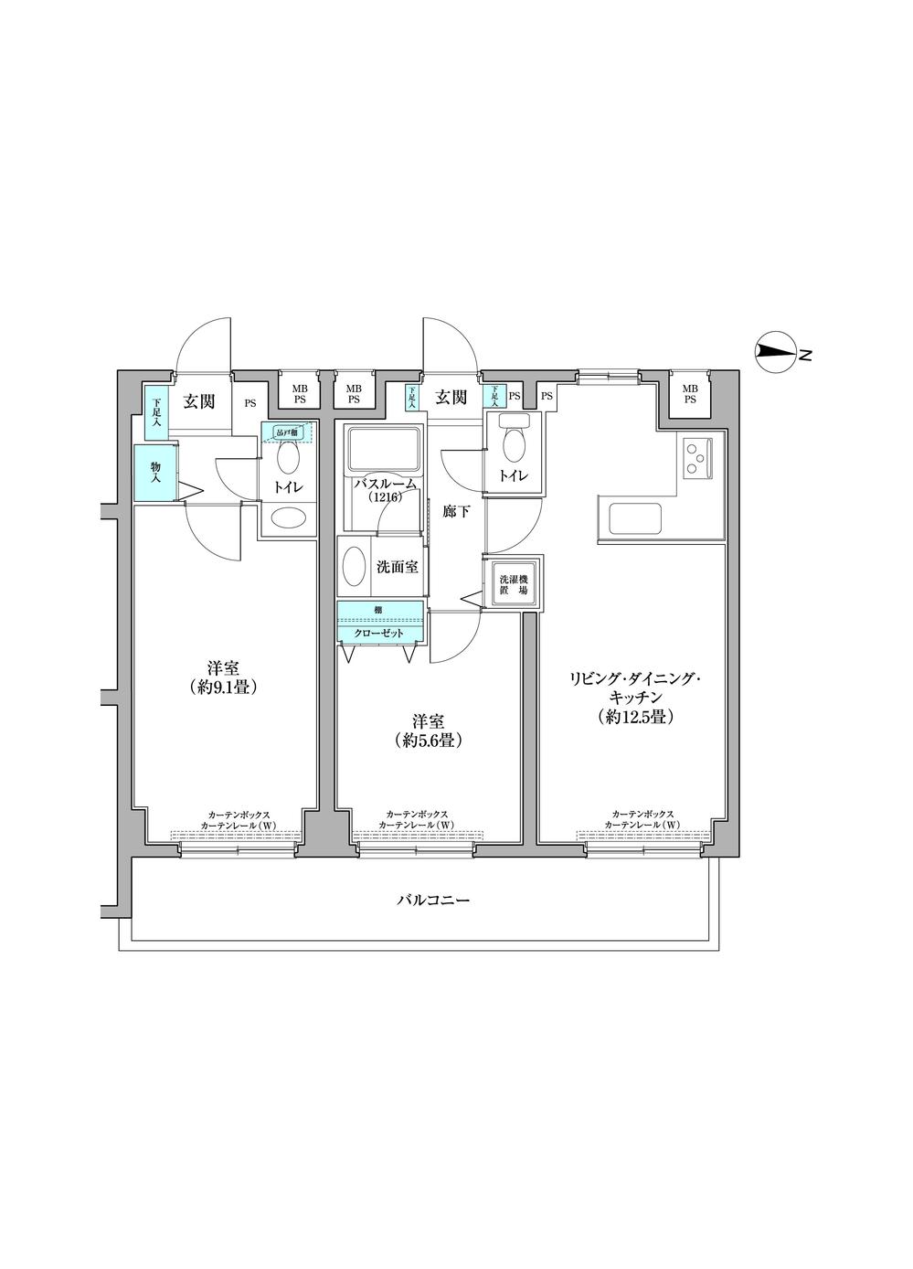
 2LDK, Price 44,800,000 yen, Footprint 63 sq m , Balcony area 12.24 sq m
2LDK、価格4480万円、専有面積63m2、バルコニー面積12.24m2
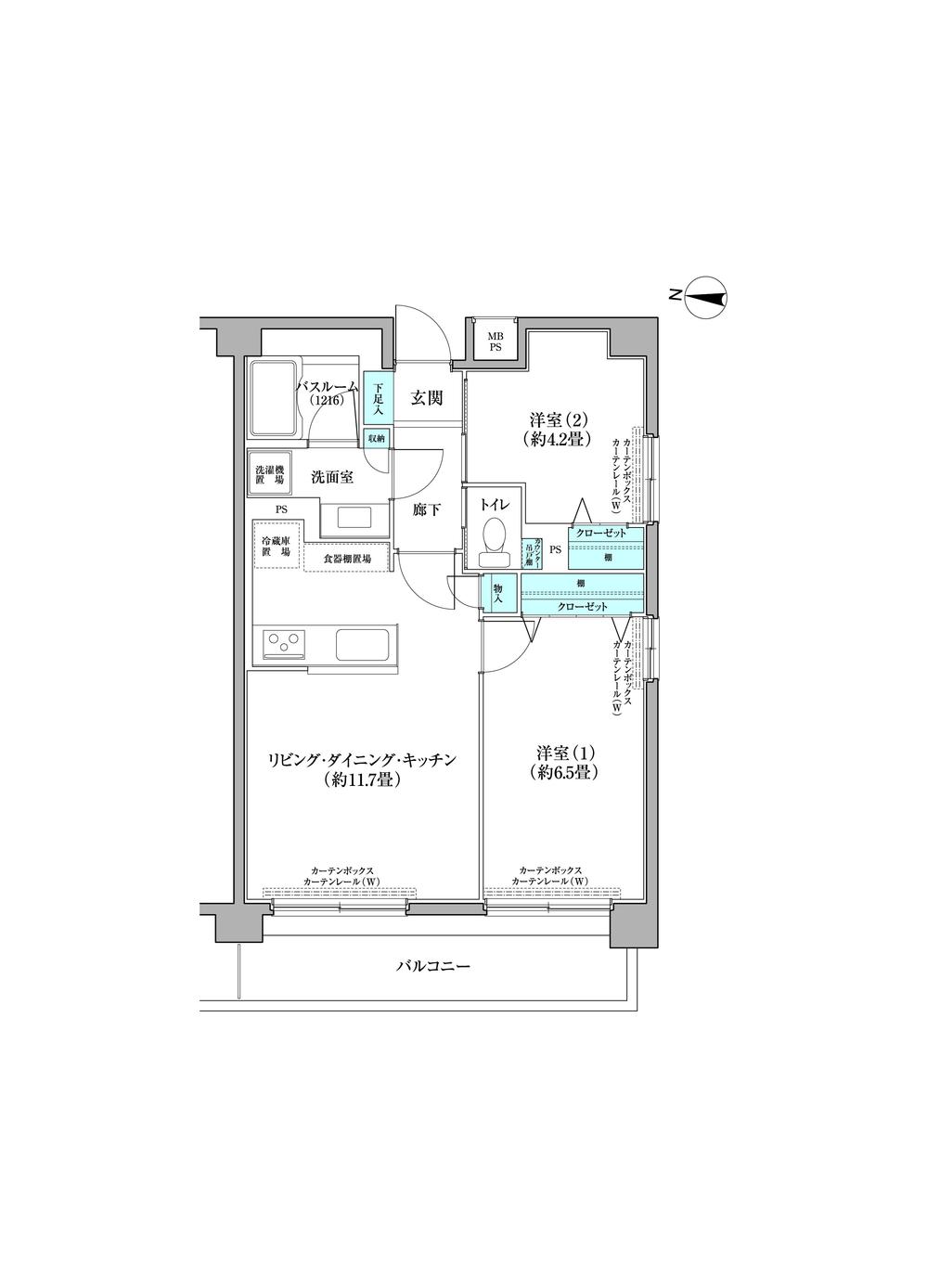
 2LDK, Price 40,800,000 yen, Occupied area 52.43 sq m , Balcony area 8.16 sq m
2LDK、価格4080万円、専有面積52.43m2、バルコニー面積8.16m2
 In water purification cartridge built-in, Sink of cleaning can be used as a convenient hand shower
浄水カートリッジ内蔵式で、シンクの掃除が便利なハンドシャワーとして使用できます
Location
|