|
|
Setagaya-ku, Tokyo
東京都世田谷区
|
|
Oimachi Line Tokyu "Kaminoge" walk 2 minutes
東急大井町線「上野毛」歩2分
|
|
Super close, Interior renovation, System kitchen, Bathroom Dryer, Corner dwelling unit, Yang per good, All room storage, Flat to the station, A quiet residential area, Around traffic fewer, High floor, 24 hours garbage disposal Allowed, east
スーパーが近い、内装リフォーム、システムキッチン、浴室乾燥機、角住戸、陽当り良好、全居室収納、駅まで平坦、閑静な住宅地、周辺交通量少なめ、高層階、24時間ゴミ出し可、東
|
|
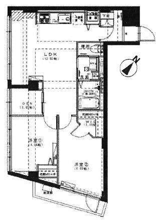
■ Oimachi Line Tokyu "Kaminoge" station a 2-minute walk of the good location ■ 2014 the end of January a new interior renovation scheduled for completion [Furnished] Mansion ■ 5 floor of the sun per for the southeast corner room ・ View ・ Ventilation good ■ DEN with space can also be used as a storeroom and study ■ Office use Negotiable
■東急大井町線「上野毛」駅徒歩2分の好立地■平成26年1月末新規内装リフォーム完成予定【家具付】マンション■5階の南東角部屋のため陽当り・眺望・通風良好■納戸や書斎としても使えるDENスペース付■事務所利用応相談
|
Features pickup 特徴ピックアップ | | Super close / Interior renovation / System kitchen / Bathroom Dryer / Corner dwelling unit / Yang per good / All room storage / Flat to the station / A quiet residential area / Around traffic fewer / High floor / 24 hours garbage disposal Allowed / Southeast direction / Flooring Chokawa / Elevator / Otobasu / Warm water washing toilet seat / TV monitor interphone / Ventilation good / All living room flooring / Walk-in closet / water filter / Maintained sidewalk スーパーが近い /内装リフォーム /システムキッチン /浴室乾燥機 /角住戸 /陽当り良好 /全居室収納 /駅まで平坦 /閑静な住宅地 /周辺交通量少なめ /高層階 /24時間ゴミ出し可 /東南向き /フローリング張替 /エレベーター /オートバス /温水洗浄便座 /TVモニタ付インターホン /通風良好 /全居室フローリング /ウォークインクロゼット /浄水器 /整備された歩道 |
Property name 物件名 | | Kaminoge Mansion 上野毛マンション |
Price 価格 | | 24,900,000 yen 2490万円 |
Floor plan 間取り | | 2LDK 2LDK |
Units sold 販売戸数 | | 1 units 1戸 |
Total units 総戸数 | | 42 units 42戸 |
Occupied area 専有面積 | | 49.99 sq m (15.12 tsubo) (center line of wall) 49.99m2(15.12坪)(壁芯) |
Whereabouts floor / structures and stories 所在階/構造・階建 | | 5th floor / SRC7 story 5階/SRC7階建 |
Completion date 完成時期(築年月) | | April 1964 1964年4月 |
Address 住所 | | Setagaya-ku, Tokyo Kaminoge 1 東京都世田谷区上野毛1 |
Traffic 交通 | | Oimachi Line Tokyu "Kaminoge" walk 2 minutes Oimachi Line Tokyu "roar" walk 14 minutes Denentoshi Tokyu "Futakotamagawa" walk 21 minutes 東急大井町線「上野毛」歩2分 東急大井町線「等々力」歩14分 東急田園都市線「二子玉川」歩21分
|
Related links 関連リンク | | [Related Sites of this company] 【この会社の関連サイト】 |
Person in charge 担当者より | | Person in charge of real-estate and building FP Kato Toshimitsu Age: 40 shop-studded hobbies such as Daiongaku and movies we have our popular and easy to enter. Mortgage consultation, etc., Please feel free to contact us. 担当者宅建FP加藤 利光年齢:40代音楽や映画など趣味を散りばめた店舗は入りやすいとご好評いただいております。住宅ローンのご相談等、お気軽にご相談ください。 |
Contact お問い合せ先 | | TEL: 0800-603-9070 [Toll free] mobile phone ・ Also available from PHS Caller ID is not notified Please contact the "saw SUUMO (Sumo)" If it does not lead, If the real estate company TEL:0800-603-9070【通話料無料】携帯電話・PHSからもご利用いただけます 発信者番号は通知されません 「SUUMO(スーモ)を見た」と問い合わせください つながらない方、不動産会社の方は
|
Administrative expense 管理費 | | 9000 yen / Month (consignment (cyclic)) 9000円/月(委託(巡回)) |
Repair reserve 修繕積立金 | | 11,400 yen / Month 1万1400円/月 |
Expenses 諸費用 | | Solid Metropolitan tax: 43,724 yen / Month 固都税:4万3724円/月 |
Time residents 入居時期 | | Consultation 相談 |
Whereabouts floor 所在階 | | 5th floor 5階 |
Direction 向き | | Southeast 南東 |
Renovation リフォーム | | January 2014 interior renovation will be completed (kitchen ・ bathroom ・ toilet ・ wall ・ floor ・ all rooms) 2014年1月内装リフォーム完了予定(キッチン・浴室・トイレ・壁・床・全室) |
Overview and notices その他概要・特記事項 | | Contact: Kato Toshimitsu 担当者:加藤 利光 |
Structure-storey 構造・階建て | | SRC7 story SRC7階建 |
Site of the right form 敷地の権利形態 | | Ownership 所有権 |
Use district 用途地域 | | Residential, One low-rise 近隣商業、1種低層 |
Company profile 会社概要 | | <Mediation> Governor of Tokyo (1) No. 090622 (Ltd.) denim Yubinbango156-0057 Setagaya-ku, Tokyo Kamikitazawa 3-18-8 <仲介>東京都知事(1)第090622号(株)デニム〒156-0057 東京都世田谷区上北沢3-18-8 |
Construction 施工 | | Oshima Construction Co., Ltd. 大島建設(株) |