|
|
Setagaya-ku, Tokyo
東京都世田谷区
|
|
Oimachi Line Tokyu "Kaminoge" walk 14 minutes
東急大井町線「上野毛」歩14分
|
|
Renovation, Private garden, A quiet residential area, Corner dwelling unit, Floor heating, Pets Negotiable, 2 along the line more accessible, System kitchen, Bathroom Dryer, Southeast direction, Elevator, Ventilation good, All living room flooring
リノベーション、専用庭、閑静な住宅地、角住戸、床暖房、ペット相談、2沿線以上利用可、システムキッチン、浴室乾燥機、東南向き、エレベーター、通風良好、全居室フローリング
|
|
[New interior part renovation Heisei completed January 10, 2014] Zenshitsukabe ・ Sort ceiling cross stuck / Floor flooring overlay (manufactured by Asahi Wood Tech) / System kitchen part exchange (water purifier integrated faucet ・ Glass top stove ・ Range food) / Installation all rooms lighting equipment / Air conditioning 1 groups installation (made by LDK part DAIKIN) / House cleaning <equipment ・ Specifications> Otobasu with Tsui焚 function to TES type hot water floor heating bathroom in the living room dining ・ Kitchen with a bathroom ventilation dryer ・ bathroom ・ Toilet in the 24-hour low air flow ventilation system vanity (with storage with a large three-sided mirror) toilet (deodorizing ・ Washing ・ Heated toilet seat)
【新規内装一部リフォーム 平成26年1月10日完了】全室壁・天井クロス貼替え/床フローリング上張り(朝日ウッドテック製)/システムキッチン一部交換(浄水器一体型水栓・ガラストップコンロ・レンジフード)/全室照明器具設置/エアコン1基設置(LDK部分 DAIKIN製)/ハウスクリーニング<設備・仕様>リビングダイニングにTES式温水床暖房浴室に追焚機能付オートバス・浴室換気乾燥機付キッチン・浴室・トイレに24時間低風量換気システム洗面化粧台(収納付大型三面鏡付)トイレ(脱臭・洗浄・温水便座)
|
Features pickup 特徴ピックアップ | | 2 along the line more accessible / System kitchen / Bathroom Dryer / Corner dwelling unit / A quiet residential area / Southeast direction / Elevator / Renovation / Ventilation good / All living room flooring / water filter / Pets Negotiable / Floor heating / Private garden 2沿線以上利用可 /システムキッチン /浴室乾燥機 /角住戸 /閑静な住宅地 /東南向き /エレベーター /リノベーション /通風良好 /全居室フローリング /浄水器 /ペット相談 /床暖房 /専用庭 |
Event information イベント情報 | | Local guide Board (Please be sure to ask in advance) schedule / Every Saturday, Sunday and public holidays time / 10:00 ~ 18:30 [Appointment sneak preview] Please contact staff in advance when the preview because it does not have to wait to local. 現地案内会(事前に必ずお問い合わせください)日程/毎週土日祝時間/10:00 ~ 18:30【予約制内覧会】現地にスタッフは待機しておりませんので内覧の際は事前にお問い合わせください。 |
Property name 物件名 | | Jay Park Rivage Futakotamagawa ジェイパークリバージュ二子玉川 |
Price 価格 | | 44,800,000 yen 4480万円 |
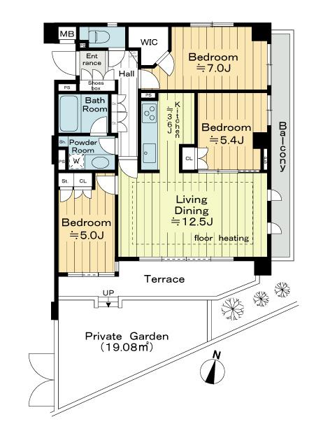
Floor plan 間取り | | 3LDK 3LDK |
Units sold 販売戸数 | | 1 units 1戸 |
Total units 総戸数 | | 44 units 44戸 |
Occupied area 専有面積 | | 73.97 sq m (22.37 tsubo) (center line of wall) 73.97m2(22.37坪)(壁芯) |
Other area その他面積 | | Balcony area: 7.78 sq m , Private garden: 19.08 sq m (use fee 200 yen / Month), Terrace: 9.08 sq m (use fee Mu) バルコニー面積:7.78m2、専用庭:19.08m2(使用料200円/月)、テラス:9.08m2(使用料無) |
Whereabouts floor / structures and stories 所在階/構造・階建 | | 1st floor / RC5 floors 1 underground story 1階/RC5階地下1階建 |
Completion date 完成時期(築年月) | | January 2005 2005年1月 |
Address 住所 | | Setagaya-ku, Tokyo Noge 2-28-11 東京都世田谷区野毛2-28-11 |
Traffic 交通 | | Oimachi Line Tokyu "Kaminoge" walk 14 minutes Oimachi Line Tokyu "roar" walk 15 minutes Denentoshi Tokyu "Futakotamagawa" walk 19 minutes 東急大井町線「上野毛」歩14分 東急大井町線「等々力」歩15分 東急田園都市線「二子玉川」歩19分
|
Related links 関連リンク | | [Related Sites of this company] 【この会社の関連サイト】 |
Person in charge 担当者より | | Person in charge of real-estate and building Someya Kazuyuki Age: 30 Daigyokai Experience: 16 years high school baseball players also now just a dad, I will try my best! [House] Narimasu [Qualification] TakuKen, Property and casualty insurance recruiting people [How to spend the holiday] Baseball idiot [Birthplace] Tokai Urayasu high school baseball 担当者宅建染谷 和幸年齢:30代業界経験:16年高校球児も今やただのお父さん、頑張るぞ!【住まい】成増【資格】宅建、損害保険募集人【休日のすごし方】野球バカ【出身地】東海大浦安高校野球部 |
Contact お問い合せ先 | | TEL: 0120-984841 [Toll free] Please contact the "saw SUUMO (Sumo)" TEL:0120-984841【通話料無料】「SUUMO(スーモ)を見た」と問い合わせください |
Administrative expense 管理費 | | 12,800 yen / Month (consignment (commuting)) 1万2800円/月(委託(通勤)) |
Repair reserve 修繕積立金 | | 6290 yen / Month 6290円/月 |
Time residents 入居時期 | | Consultation 相談 |
Whereabouts floor 所在階 | | 1st floor 1階 |
Direction 向き | | Southeast 南東 |
Renovation リフォーム | | January 2014 interior renovation will be completed (kitchen ・ bathroom ・ toilet ・ wall ・ floor) 2014年1月内装リフォーム完了予定(キッチン・浴室・トイレ・壁・床) |
Overview and notices その他概要・特記事項 | | Contact: Someya Kazuyuki 担当者:染谷 和幸 |
Structure-storey 構造・階建て | | RC5 floors 1 underground story RC5階地下1階建 |
Site of the right form 敷地の権利形態 | | Ownership 所有権 |
Use district 用途地域 | | One middle and high 1種中高 |
Company profile 会社概要 | | <Seller> Minister of Land, Infrastructure and Transport (6) No. 004139 (Ltd.) Daikyo Riarudo Shibuya business Section 2 / Telephone reception → Headquarters: Tokyo 150-0002 Shibuya, Shibuya-ku, Tokyo 2-17-5 Shionogi Shibuya building <売主>国土交通大臣(6)第004139号(株)大京リアルド渋谷店営業二課/電話受付→本社:東京〒150-0002 東京都渋谷区渋谷2-17-5 シオノギ渋谷ビル |
Construction 施工 | | Ltd. Jinshan builders (株)金山工務店 |