|
|
Shinagawa-ku, Tokyo
東京都品川区
|
|
JR Yokosuka Line "Nishi Oi" walk 10 minutes
JR横須賀線「西大井」歩10分
|
|
■ 2009 Already the room renovation ■ Storage is abundant property ■ Pet is possible breeding ■ JR ・ 3 Station Available Toei Asakusa Line ■ The room is very clean your
■平成21年 室内リフォーム済み ■収納豊富な物件です ■ペットの飼育可能です ■JR・都営浅草線の3駅利用可 ■室内は非常に綺麗にお使いです
|
|
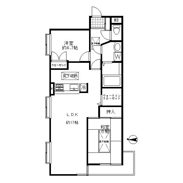
Corner dwelling unit, 2 along the line more accessible, Walk-in closet, Pets Negotiable, LDK15 tatami mats or more, Face-to-face kitchen, System kitchen, All room storageese-style room, Bicycle-parking space, Underfloor Storage, TV monitor interphone, Southwestward, BS ・ CS ・ CATV, Bike shelter
角住戸、2沿線以上利用可、ウォークインクロゼット、ペット相談、LDK15畳以上、対面式キッチン、システムキッチン、全居室収納、和室、駐輪場、床下収納、TVモニタ付インターホン、南西向き、BS・CS・CATV、バイク置場
|
Features pickup 特徴ピックアップ | | 2 along the line more accessible / System kitchen / Corner dwelling unit / All room storage / LDK15 tatami mats or more / Japanese-style room / Face-to-face kitchen / Bicycle-parking space / Underfloor Storage / TV monitor interphone / Southwestward / Walk-in closet / Pets Negotiable / BS ・ CS ・ CATV / Bike shelter 2沿線以上利用可 /システムキッチン /角住戸 /全居室収納 /LDK15畳以上 /和室 /対面式キッチン /駐輪場 /床下収納 /TVモニタ付インターホン /南西向き /ウォークインクロゼット /ペット相談 /BS・CS・CATV /バイク置場 |
Property name 物件名 | | Grand Eagle Nishi Oi グランイーグル西大井 |
Price 価格 | | 32,800,000 yen 3280万円 |
Floor plan 間取り | | 2LDK + S (storeroom) 2LDK+S(納戸) |
Units sold 販売戸数 | | 1 units 1戸 |
Total units 総戸数 | | 19 units 19戸 |
Occupied area 専有面積 | | 62.06 sq m 62.06m2 |
Other area その他面積 | | Balcony area: 5.64 sq m バルコニー面積:5.64m2 |
Whereabouts floor / structures and stories 所在階/構造・階建 | | 1st floor / RC4 story 1階/RC4階建 |
Completion date 完成時期(築年月) | | March 1995 1995年3月 |
Address 住所 | | Shinagawa-ku, Tokyo Nishi Oi 4 東京都品川区西大井4 |
Traffic 交通 | | JR Yokosuka Line "Nishi Oi" walk 10 minutes Toei Asakusa Line "Magome" walk 8 minutes JR Keihin Tohoku Line "Omori" walk 14 minutes JR横須賀線「西大井」歩10分都営浅草線「馬込」歩8分 JR京浜東北線「大森」歩14分
|
Person in charge 担当者より | | Person in charge of Yoshida 担当者吉田 |
Contact お問い合せ先 | | Azusa real estate (Ltd.) TEL: 0800-600-5434 [Toll free] mobile phone ・ Also available from PHS Caller ID is not notified Please contact the "saw SUUMO (Sumo)" If it does not lead, If the real estate company 梓不動産(株)TEL:0800-600-5434【通話料無料】携帯電話・PHSからもご利用いただけます 発信者番号は通知されません 「SUUMO(スーモ)を見た」と問い合わせください つながらない方、不動産会社の方は
|
Administrative expense 管理費 | | 15,470 yen / Month (consignment (cyclic)) 1万5470円/月(委託(巡回)) |
Repair reserve 修繕積立金 | | 12,910 yen / Month 1万2910円/月 |
Time residents 入居時期 | | Consultation 相談 |
Whereabouts floor 所在階 | | 1st floor 1階 |
Direction 向き | | Southwest 南西 |
Renovation リフォーム | | March 2010 interior renovation completed (kitchen ・ bathroom ・ toilet ・ wall ・ floor ・ all rooms), May 2012 large-scale repairs completed 2010年3月内装リフォーム済(キッチン・浴室・トイレ・壁・床・全室)、2012年5月大規模修繕済 |
Overview and notices その他概要・特記事項 | | Contact: Yoshida 担当者:吉田 |
Structure-storey 構造・階建て | | RC4 story RC4階建 |
Site of the right form 敷地の権利形態 | | Ownership 所有権 |
Company profile 会社概要 | | <Mediation> Governor of Tokyo (10) No. 031359 (Corporation) Tokyo Metropolitan Government Building Lots and Buildings Transaction Business Association (Corporation) metropolitan area real estate Fair Trade Council member Azusa Real Estate Co., Ltd. Yubinbango146-0093 Ota-ku, Tokyo Yaguchi 1-20-8 <仲介>東京都知事(10)第031359号(公社)東京都宅地建物取引業協会会員 (公社)首都圏不動産公正取引協議会加盟梓不動産(株)〒146-0093 東京都大田区矢口1-20-8 |
Construction 施工 | | Mutual Construction Co., Ltd. 相互建設(株) |