Used Apartments » Kanto » Tokyo » Shinagawa
 
| | Shinagawa-ku, Tokyo 東京都品川区 |
| JR Yamanote Line "Gotanda" walk 3 minutes JR山手線「五反田」歩3分 |
| Fit renovation, 2 along the line more accessible, System kitchen, Bathroom Dryer, Yang per good, Elevator, Warm water washing toilet seat, TV monitor interphone, All living room flooring, Delivery Box 適合リノベーション、2沿線以上利用可、システムキッチン、浴室乾燥機、陽当り良好、エレベーター、温水洗浄便座、TVモニタ付インターホン、全居室フローリング、宅配ボックス |
| ◆ JR Yamanote Line "Gotanda Station" a 3-minute walk! ! Station near, Meguro River near good location! ! ◆ Heisei water supply in 23 years ・ Hot water supply pipe (header piping), Renovation to the point where you do not look like six-sided insulation! ◆ December 2010 Large-scale repair work completed! ◆ Management Company: Tokyu Community Corp., Management good our HP → http / / www.intellex.jp / bukken-detail / t2747 / In We at Interikkusu group, Including the proposal for a new renovation, Please let me explain a new way of condominium! Please feel free to contact us. ◆JR山手線「五反田駅」徒歩3分!!駅近、目黒川近くの好立地!!◆平成23年に給水・給湯配管(ヘッダー配管)、六面断熱など見えないところまでリノベーション!◆平成22年12月 大規模修繕工事完了!◆管理会社:東急コミュニティー、管理良好弊社HP→http://www.intellex.jp/bukken-detail/t2747/私どもインテリックスグループでは、新たなリノベーションの提案をはじめ、中古マンションの新しい在り方をご説明させて頂きます!お気軽にお問い合わせください。 |
Features pickup 特徴ピックアップ | | Fit renovation / 2 along the line more accessible / System kitchen / Bathroom Dryer / Yang per good / Elevator / Warm water washing toilet seat / TV monitor interphone / All living room flooring / water filter / Delivery Box 適合リノベーション /2沿線以上利用可 /システムキッチン /浴室乾燥機 /陽当り良好 /エレベーター /温水洗浄便座 /TVモニタ付インターホン /全居室フローリング /浄水器 /宅配ボックス | Property name 物件名 | | Hairaku Gotanda ハイラーク五反田 | Price 価格 | | 26,800,000 yen 2680万円 | Floor plan 間取り | | 2LDK 2LDK | Units sold 販売戸数 | | 1 units 1戸 | Total units 総戸数 | | 66 units 66戸 | Occupied area 専有面積 | | 45 sq m (center line of wall) 45m2(壁芯) | Other area その他面積 | | Balcony area: 6.58 sq m バルコニー面積:6.58m2 | Whereabouts floor / structures and stories 所在階/構造・階建 | | 9 floor / SRC10 story 9階/SRC10階建 | Completion date 完成時期(築年月) | | November 1977 1977年11月 | Address 住所 | | Shinagawa-ku, Tokyo Nishigotanda 1 東京都品川区西五反田1 | Traffic 交通 | | JR Yamanote Line "Gotanda" walk 3 minutes Tokyu Ikegami Line "Osaki Hirokoji" walk 6 minutes JR Yamanote Line "Osaki" walk 13 minutes JR山手線「五反田」歩3分 東急池上線「大崎広小路」歩6分 JR山手線「大崎」歩13分
| Related links 関連リンク | | [Related Sites of this company] 【この会社の関連サイト】 | Person in charge 担当者より | | Person in charge of real-estate and building Enomoto Ryota Age: 30 Daigyokai experience: not only to introduce the six years just listing, "How risk that few if" "If Re How, Whether we are living the ideal ", etc., We need to realize the full renovation of knowledge, We offer. 担当者宅建榎本 亮太年齢:30代業界経験:6年ただ物件を紹介するだけではなく、「どのようにすればリスクが少ないのか」「どうれば、理想の暮らしができるのか」など、リノベーションの知識を最大限活用して、ご提案させて頂きます。 | Contact お問い合せ先 | | TEL: 0800-603-1782 [Toll free] mobile phone ・ Also available from PHS Caller ID is not notified Please contact the "saw SUUMO (Sumo)" If it does not lead, If the real estate company TEL:0800-603-1782【通話料無料】携帯電話・PHSからもご利用いただけます 発信者番号は通知されません 「SUUMO(スーモ)を見た」と問い合わせください つながらない方、不動産会社の方は
| Administrative expense 管理費 | | 15,200 yen / Month (consignment (commuting)) 1万5200円/月(委託(通勤)) | Repair reserve 修繕積立金 | | 8510 yen / Month 8510円/月 | Expenses 諸費用 | | Internet Initial Cost: TBD, Flat fee: unspecified amount インターネット初期費用:金額未定、定額料金:金額未定 | Time residents 入居時期 | | Consultation 相談 | Whereabouts floor 所在階 | | 9 floor 9階 | Direction 向き | | East 東 | Renovation リフォーム | | February 2011 interior renovation completed (kitchen ・ bathroom ・ toilet ・ wall ・ floor ・ all rooms), December 2010 large-scale repairs completed 2011年2月内装リフォーム済(キッチン・浴室・トイレ・壁・床・全室)、2010年12月大規模修繕済 | Overview and notices その他概要・特記事項 | | Contact: Enomoto Ryota 担当者:榎本 亮太 | Structure-storey 構造・階建て | | SRC10 story SRC10階建 | Site of the right form 敷地の権利形態 | | Ownership 所有権 | Use district 用途地域 | | Commerce 商業 | Parking lot 駐車場 | | Nothing 無 | Company profile 会社概要 | | <Mediation> Minister of Land, Infrastructure and Transport (3) No. 006493 (Corporation) All Japan Real Estate Association (Corporation) metropolitan area real estate Fair Trade Council member (Ltd.) Interikkusu home sales 150-0002 Shibuya, Shibuya-ku, Tokyo 2-12-19 Token International building 11 floors <仲介>国土交通大臣(3)第006493号(公社)全日本不動産協会会員 (公社)首都圏不動産公正取引協議会加盟(株)インテリックス住宅販売〒150-0002 東京都渋谷区渋谷2-12-19 東建インターナショナルビル11階 | Construction 施工 | | Odakyu Construction Co., Ltd. (stock) 小田急建設(株) |
Livingリビング  It is calm joinery and flooring. very beautiful.
落ち着いた建具とフローリングです。とても綺麗です。
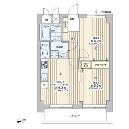
Floor plan間取り図  2LDK, Price 26,800,000 yen, Footprint 45 sq m , Can also be used as a balcony area 6.58 sq m large 1LDK, Spacious floor plan. Corridor also widely, Entrance will feel spacious.
2LDK、価格2680万円、専有面積45m2、バルコニー面積6.58m2 大型1LDKとしても使える、ゆったりな間取り。廊下も広く、玄関は広々感じます。
Local appearance photo現地外観写真  Heavy appearance! ! Flow Meguro River is near, It is a good atmosphere
重厚な外観!!近くには目黒川が流れ、雰囲気いいですよ
Livingリビング  It is so bright sunshine! !
こんなに明るい日差しが!!
Bathroom浴室  It is with the bathroom dryer! Peace of mind even on rainy days!
浴室乾燥機付きです!雨の日でも安心!
 Kitchen
キッチン
Non-living roomリビング以外の居室  But so close to the station also went to, It is very bright rooms.
こんなに駅近いのに、日も入って、とても明るいお部屋です。
Entrance玄関  Also been renovated entrance door is a shared part! !
共用部である玄関扉も改修済み!!
Wash basin, toilet洗面台・洗面所  It is spacious toilets!
ゆったりな洗面所です!
Toiletトイレ  Clean restroom guess women are also happy.
綺麗なお手洗いは女性もうれしいですね。
Entranceエントランス  Neatly cleaned the entrance! ! You will see the goodness of management.
綺麗に清掃されたエントランス!!管理の良さがわかります。
Other common areasその他共用部  Elevator is the renovation already. Moreover, there are two aircraft!
エレベーター改修済みです。しかも2機あります!
View photos from the dwelling unit住戸からの眺望写真  Meguro River views are flowing through the nearby. Near from the station, Nor does it trouble in the shop.
近くを流れる目黒川が望めます。駅から近く、お店に困ることもありません。
Otherその他  Can you walk in along the Meguro River.
目黒川沿いで散歩もいいですよ。
Livingリビング  Also closed partition, The room is easy to spend bright!
間仕切り閉めても、お部屋明るく過ごしやすいです!
Entrance玄関  When the entrance around is this just wide, There is no at all a feeling of pressure.
玄関周りがこれだけ広いと、圧迫感が全然ありません。
Wash basin, toilet洗面台・洗面所  There is also shampoo dresser, It is also a breeze in the morning.
シャンプードレッサーもあって、朝も楽々です。
Entrance玄関  There is also a space to put small items.
ちょっとした小物を置けるスペースもあります。
Location
|