|
|
Suginami-ku, Tokyo
東京都杉並区
|
|
Tokyo Metro Marunouchi Line "Shin Koenji" walk 5 minutes
東京メトロ丸ノ内線「新高円寺」歩5分
|
|
If Interikkusu of property, Please leave our Interikkusu home sales! ◆ "Shin Koenji" station walk 5 minutes! Super "Inageya" to the 4-minute walk! ◆ Pet breeding Allowed (with breeding bylaws)
インテリックスの物件なら、弊社インテリックス住宅販売にお任せ下さい!◆「新高円寺」駅徒歩5分!スーパー「いなげや」にも徒歩4分!◆ペット飼育可(飼育細則あり)
|
|
・ You can also use the bus of "Koenji" to go in a 1-minute walk from the "pine tree" bus stop! ・ Bathing is so "warm bath", Followed by the warmth! ・ Renovation and construction: Interikkusu space design our HP → http / / www.intellex.jp / bukken-detail / F0850 / we, Interikkusu Group, To the axis of the condominium and Renovation, From renovation Property, Purchase of condominium + until the proposal of renovation, Please let me explain a new way of condominium! If it is a thing of the condominium and Renovation, Please feel free to contact us.
・「松の木」バス停まで徒歩1分で「高円寺」行きのバスも利用できます!・お風呂は“保温浴槽”なので、温かさが続きます!・リノベーション施工:インテリックス空間設計弊社HP→http://www.intellex.jp/bukken-detail/F0850/私達、インテリックスグループは、中古マンションとリノベーションを軸に、リノベーション物件から、中古マンションの購入+リノベーションの提案まで、中古マンションの新しい在り方をご説明させて頂きます! 中古マンションとリノベーションの事なら、お気軽にお問い合わせください。
|
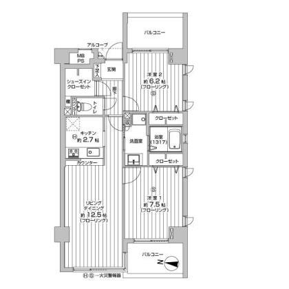
Features pickup 特徴ピックアップ | | Fit renovation / 2 along the line more accessible / Super close / System kitchen / Bathroom Dryer / Corner dwelling unit / All room storage / Washbasin with shower / Face-to-face kitchen / 2 or more sides balcony / Bicycle-parking space / Elevator / High speed Internet correspondence / Warm water washing toilet seat / The window in the bathroom / All living room flooring / water filter / Pets Negotiable / BS ・ CS ・ CATV / Flat terrain 適合リノベーション /2沿線以上利用可 /スーパーが近い /システムキッチン /浴室乾燥機 /角住戸 /全居室収納 /シャワー付洗面台 /対面式キッチン /2面以上バルコニー /駐輪場 /エレベーター /高速ネット対応 /温水洗浄便座 /浴室に窓 /全居室フローリング /浄水器 /ペット相談 /BS・CS・CATV /平坦地 |
Property name 物件名 | | Grand Maison Koenjiminami グランドメゾン高円寺南 |
Price 価格 | | 41,800,000 yen 4180万円 |
Floor plan 間取り | | 2LDK 2LDK |
Units sold 販売戸数 | | 1 units 1戸 |
Occupied area 専有面積 | | 66.27 sq m (20.04 tsubo) (center line of wall) 66.27m2(20.04坪)(壁芯) |
Other area その他面積 | | Balcony area: 11.16 sq m バルコニー面積:11.16m2 |
Whereabouts floor / structures and stories 所在階/構造・階建 | | 1st floor / RC7 story 1階/RC7階建 |
Completion date 完成時期(築年月) | | January 1995 1995年1月 |
Address 住所 | | Suginami-ku, Tokyo pine trees 3 東京都杉並区松ノ木3 |
Traffic 交通 | | Tokyo Metro Marunouchi Line "Shin Koenji" walk 5 minutes Tokyo Metro Marunouchi Line "Minami Asagaya" walk 15 minutes JR Chuo Line "Koenji" walk 16 minutes 東京メトロ丸ノ内線「新高円寺」歩5分 東京メトロ丸ノ内線「南阿佐ヶ谷」歩15分 JR中央線「高円寺」歩16分
|
Related links 関連リンク | | [Related Sites of this company] 【この会社の関連サイト】 |
Person in charge 担当者より | | Person in charge of real-estate and building Enomoto Ryota Age: 30 Daigyokai experience: not only to introduce the six years just listing, "How risk that few if" "If Re How, Whether we are living the ideal ", etc., We need to realize the full renovation of knowledge, We offer. 担当者宅建榎本 亮太年齢:30代業界経験:6年ただ物件を紹介するだけではなく、「どのようにすればリスクが少ないのか」「どうれば、理想の暮らしができるのか」など、リノベーションの知識を最大限活用して、ご提案させて頂きます。 |
Contact お問い合せ先 | | TEL: 0800-603-1782 [Toll free] mobile phone ・ Also available from PHS Caller ID is not notified Please contact the "saw SUUMO (Sumo)" If it does not lead, If the real estate company TEL:0800-603-1782【通話料無料】携帯電話・PHSからもご利用いただけます 発信者番号は通知されません 「SUUMO(スーモ)を見た」と問い合わせください つながらない方、不動産会社の方は
|
Administrative expense 管理費 | | 21,700 yen / Month (consignment (commuting)) 2万1700円/月(委託(通勤)) |
Repair reserve 修繕積立金 | | 5220 yen / Month 5220円/月 |
Time residents 入居時期 | | Consultation 相談 |
Whereabouts floor 所在階 | | 1st floor 1階 |
Direction 向き | | West 西 |
Renovation リフォーム | | January 2014 interior renovation will be completed (kitchen ・ bathroom ・ toilet ・ wall ・ floor ・ all rooms) 2014年1月内装リフォーム完了予定(キッチン・浴室・トイレ・壁・床・全室) |
Overview and notices その他概要・特記事項 | | Contact: Enomoto Ryota 担当者:榎本 亮太 |
Structure-storey 構造・階建て | | RC7 story RC7階建 |
Site of the right form 敷地の権利形態 | | Ownership 所有権 |
Use district 用途地域 | | One low-rise, One middle and high 1種低層、1種中高 |
Parking lot 駐車場 | | Nothing 無 |
Company profile 会社概要 | | <Mediation> Minister of Land, Infrastructure and Transport (3) No. 006493 (Corporation) All Japan Real Estate Association (Corporation) metropolitan area real estate Fair Trade Council member (Ltd.) Interikkusu home sales 150-0002 Shibuya, Shibuya-ku, Tokyo 2-12-19 Token International building 11 floors <仲介>国土交通大臣(3)第006493号(公社)全日本不動産協会会員 (公社)首都圏不動産公正取引協議会加盟(株)インテリックス住宅販売〒150-0002 東京都渋谷区渋谷2-12-19 東建インターナショナルビル11階 |