2000September
37,800,000 yen, 3LDK, 83.4 sq m
Used Apartments » Kanto » Tokyo » Sumida
 
| | Sumida-ku, Tokyo 東京都墨田区 |
| JR Sobu Line "Kameido" walk 13 minutes JR総武線「亀戸」歩13分 |
| 80 square meters more than 3LDK ・ top floor 80平方メートル超の3LDK・最上階 |
| Preview Allowed 内覧可 |
Features pickup 特徴ピックアップ | | System kitchen / Bathroom Dryer / All room storage / Flat to the station / LDK15 tatami mats or more / top floor ・ No upper floor / Face-to-face kitchen / Bathroom 1 tsubo or more / Bicycle-parking space / Elevator / High speed Internet correspondence / TV monitor interphone / Ventilation good / All living room flooring / Good view / Walk-in closet / BS ・ CS ・ CATV / roof balcony / Delivery Box / Bike shelter システムキッチン /浴室乾燥機 /全居室収納 /駅まで平坦 /LDK15畳以上 /最上階・上階なし /対面式キッチン /浴室1坪以上 /駐輪場 /エレベーター /高速ネット対応 /TVモニタ付インターホン /通風良好 /全居室フローリング /眺望良好 /ウォークインクロゼット /BS・CS・CATV /ルーフバルコニー /宅配ボックス /バイク置場 | Property name 物件名 | | Jay Park Kameido ジェイパーク亀戸 | Price 価格 | | 37,800,000 yen 3780万円 | Floor plan 間取り | | 3LDK 3LDK | Units sold 販売戸数 | | 1 units 1戸 | Total units 総戸数 | | 46 units 46戸 | Occupied area 専有面積 | | 83.4 sq m (center line of wall) 83.4m2(壁芯) | Other area その他面積 | | Roof balcony: 10.57 sq m (use fee 200 yen / Month) ルーフバルコニー:10.57m2(使用料200円/月) | Whereabouts floor / structures and stories 所在階/構造・階建 | | 7th floor / RC7 story 7階/RC7階建 | Completion date 完成時期(築年月) | | September 2000 2000年9月 | Address 住所 | | Sumida-ku, Tokyo Tachibana 1 東京都墨田区立花1 | Traffic 交通 | | JR Sobu Line "Kameido" walk 13 minutes JR総武線「亀戸」歩13分 | Related links 関連リンク | | [Related Sites of this company] 【この会社の関連サイト】 | Person in charge 担当者より | | Rep Fukuda We will continue to the business that is trusted by our customers to the motto Hirokazu honesty. 担当者福田 博和誠実さをモットーにお客様に信頼される営業をしていきます。 | Contact お問い合せ先 | | TEL: 0800-603-0565 [Toll free] mobile phone ・ Also available from PHS Caller ID is not notified Please contact the "saw SUUMO (Sumo)" If it does not lead, If the real estate company TEL:0800-603-0565【通話料無料】携帯電話・PHSからもご利用いただけます 発信者番号は通知されません 「SUUMO(スーモ)を見た」と問い合わせください つながらない方、不動産会社の方は
| Administrative expense 管理費 | | 5670 yen / Month (consignment (commuting)) 5670円/月(委託(通勤)) | Repair reserve 修繕積立金 | | 16,980 yen / Month 1万6980円/月 | Time residents 入居時期 | | Consultation 相談 | Whereabouts floor 所在階 | | 7th floor 7階 | Direction 向き | | Northwest 北西 | Overview and notices その他概要・特記事項 | | Contact: Fukuda Hirokazu 担当者:福田 博和 | Structure-storey 構造・階建て | | RC7 story RC7階建 | Site of the right form 敷地の権利形態 | | Ownership 所有権 | Use district 用途地域 | | Semi-industrial 準工業 | Parking lot 駐車場 | | Sky Mu 空無 | Company profile 会社概要 | | <Mediation> Minister of Land, Infrastructure and Transport (3) No. 006,185 (one company) National Housing Industry Association (Corporation) metropolitan area real estate Fair Trade Council member Asahi housing (stock) Ueno shop Yubinbango110-0005, Taito-ku, Tokyo Ueno 2-13-10 Asahi Seimei Building 6th floor <仲介>国土交通大臣(3)第006185号(一社)全国住宅産業協会会員 (公社)首都圏不動産公正取引協議会加盟朝日住宅(株)上野店〒110-0005 東京都台東区上野2-13-10 朝日生命ビル6階 |
 Local appearance photo
現地外観写真
 Local appearance photo
現地外観写真
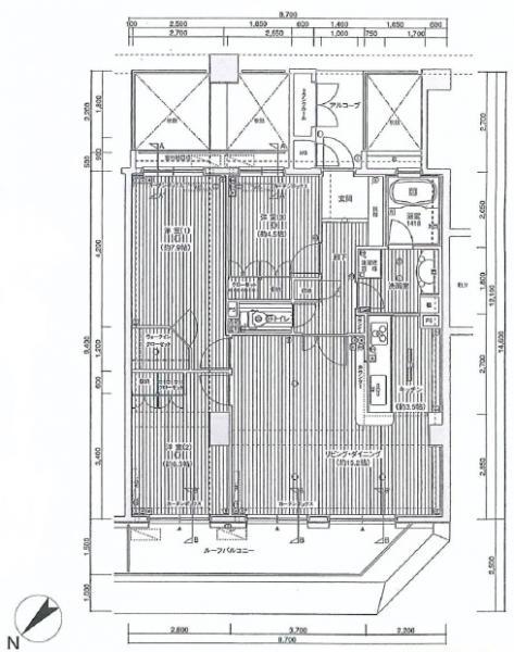
Floor plan間取り図  3LDK, Price 37,800,000 yen, Footprint 83.4 sq m
3LDK、価格3780万円、専有面積83.4m2
Location
|