|
|
Sumida-ku, Tokyo
東京都墨田区
|
|
Toei Shinjuku Line "Kikugawa" walk 5 minutes
都営新宿線「菊川」歩5分
|
|
If Interikkusu of property, Please leave our Interikkusu home sales! ◆ Full renovation property from the skeleton! ◆ Rare in the apartment, There is a window in the bathroom!
インテリックスの物件なら、弊社インテリックス住宅販売にお任せ下さい!◆スケルトンからのフルリノベーション物件!◆マンションでは希少な、浴室に窓あり!
|
|
・ 3 is conveniently located to line 2 station is available. ・ Per corner room, Very well-ventilated is good! ・ Renovation and construction: Interikkusu space design our HP → http / / www.intellex.jp / bukken-detail / F0737 / we, Interikkusu Group, To the axis of the condominium and Renovation, From renovation Property, Purchase of condominium + until the proposal of renovation, Please let me explain a new way of condominium! If it is a thing of the condominium and Renovation, Please feel free to contact us.
・3路線2駅が利用できる便利な立地です。・角部屋につき、とても風通しが良いです!・リノベーション施工:インテリックス空間設計弊社HP→http://www.intellex.jp/bukken-detail/F0737/私達、インテリックスグループは、中古マンションとリノベーションを軸に、リノベーション物件から、中古マンションの購入+リノベーションの提案まで、中古マンションの新しい在り方をご説明させて頂きます! 中古マンションとリノベーションの事なら、お気軽にお問い合わせください。
|
Features pickup 特徴ピックアップ | | Fit renovation / Immediate Available / 2 along the line more accessible / Super close / System kitchen / Bathroom Dryer / Corner dwelling unit / Washbasin with shower / Flooring Chokawa / Bicycle-parking space / High speed Internet correspondence / Warm water washing toilet seat / The window in the bathroom / Ventilation good / All living room flooring / Walk-in closet / water filter 適合リノベーション /即入居可 /2沿線以上利用可 /スーパーが近い /システムキッチン /浴室乾燥機 /角住戸 /シャワー付洗面台 /フローリング張替 /駐輪場 /高速ネット対応 /温水洗浄便座 /浴室に窓 /通風良好 /全居室フローリング /ウォークインクロゼット /浄水器 |
Property name 物件名 | | Kinshicho seventh Vienna Heights 錦糸町第7ウィーンハイツ |
Price 価格 | | 16.8 million yen 1680万円 |
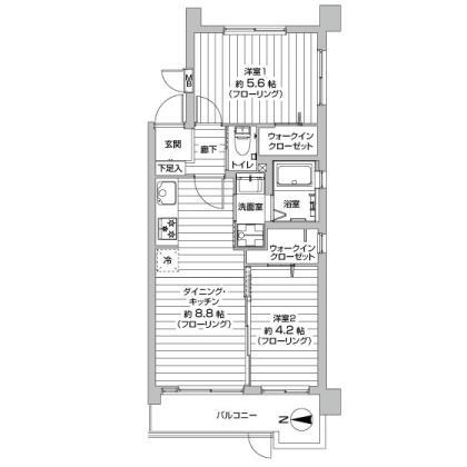
Floor plan 間取り | | 2DK 2DK |
Units sold 販売戸数 | | 1 units 1戸 |
Total units 総戸数 | | 44 units 44戸 |
Occupied area 専有面積 | | 42.48 sq m (12.85 tsubo) (center line of wall) 42.48m2(12.85坪)(壁芯) |
Other area その他面積 | | Balcony area: 5.88 sq m バルコニー面積:5.88m2 |
Whereabouts floor / structures and stories 所在階/構造・階建 | | 1st floor / RC6 story 1階/RC6階建 |
Completion date 完成時期(築年月) | | July 1978 1978年7月 |
Address 住所 | | Sumida-ku, Tokyo Tachikawa 4 東京都墨田区立川4 |
Traffic 交通 | | Toei Shinjuku Line "Kikugawa" walk 5 minutes JR Sobu Line "Kinshicho" walk 10 minutes Toei Shinjuku Line "Sumiyoshi" walk 15 minutes 都営新宿線「菊川」歩5分 JR総武線「錦糸町」歩10分都営新宿線「住吉」歩15分
|
Related links 関連リンク | | [Related Sites of this company] 【この会社の関連サイト】 |
Person in charge 担当者より | | Rep Yumoto Yasushi Age: 40 Daigyokai Experience: one year "I want to renovation to buy a condominium," said the person who thought, Also If you are interested in renovation apartment, Come please consult. By taking advantage of the renovation design of experience and support from looking for property! 担当者湯本 泰史年齢:40代業界経験:1年「中古マンションを買ってリノベーションしたい」とお考えの方も、リノベーションマンションにご興味をお持ちの方も、是非ご相談ください。リノベーション設計の経験を生かして物件探しからサポートします! |
Contact お問い合せ先 | | TEL: 0800-603-1782 [Toll free] mobile phone ・ Also available from PHS Caller ID is not notified Please contact the "saw SUUMO (Sumo)" If it does not lead, If the real estate company TEL:0800-603-1782【通話料無料】携帯電話・PHSからもご利用いただけます 発信者番号は通知されません 「SUUMO(スーモ)を見た」と問い合わせください つながらない方、不動産会社の方は
|
Administrative expense 管理費 | | 1000 yen / Month (self-management) 1000円/月(自主管理) |
Repair reserve 修繕積立金 | | 16,900 yen / Month 1万6900円/月 |
Expenses 諸費用 | | Owner absence deposit: 1000 yen / Month 所有者不在金:1000円/月 |
Time residents 入居時期 | | Immediate available 即入居可 |
Whereabouts floor 所在階 | | 1st floor 1階 |
Direction 向き | | West 西 |
Renovation リフォーム | | 2013 November interior renovation completed (kitchen ・ bathroom ・ toilet ・ wall ・ floor ・ all rooms ・ Water supply and drainage ・ Gas pipe) 2013年11月内装リフォーム済(キッチン・浴室・トイレ・壁・床・全室・給排水・ガス管) |
Overview and notices その他概要・特記事項 | | Contact: Yumoto Yasushi 担当者:湯本 泰史 |
Structure-storey 構造・階建て | | RC6 story RC6階建 |
Site of the right form 敷地の権利形態 | | Ownership 所有権 |
Use district 用途地域 | | Semi-industrial 準工業 |
Parking lot 駐車場 | | Nothing 無 |
Company profile 会社概要 | | <Mediation> Minister of Land, Infrastructure and Transport (3) No. 006493 (Corporation) All Japan Real Estate Association (Corporation) metropolitan area real estate Fair Trade Council member (Ltd.) Interikkusu home sales 150-0002 Shibuya, Shibuya-ku, Tokyo 2-12-19 Token International building 11 floors <仲介>国土交通大臣(3)第006493号(公社)全日本不動産協会会員 (公社)首都圏不動産公正取引協議会加盟(株)インテリックス住宅販売〒150-0002 東京都渋谷区渋谷2-12-19 東建インターナショナルビル11階 |