2007February
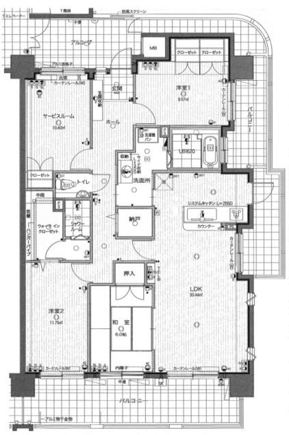
23,900,000 yen, 3LDK + S (storeroom), 107.38 sq m
Used Apartments » Chugoku » Yamaguchi Prefecture » Shimonoseki
 
| | Shimonoseki, Yamaguchi Prefecture 山口県下関市 |
| JR Sanyo Line "Hatabu" walk 6 minutes JR山陽本線「幡生」歩6分 |
| 3-01926 is southeast angle room Parking two onwards lottery Other trader handling disabled 3-01926 東南角部屋です 駐車2台目以降は抽選 他業者取扱い不可 |
Features pickup 特徴ピックアップ | | LDK18 tatami mats or more / Corner dwelling unit / Japanese-style room / Security enhancement / 2 or more sides balcony / Elevator LDK18畳以上 /角住戸 /和室 /セキュリティ充実 /2面以上バルコニー /エレベーター | Property name 物件名 | | Ardent Hatabu Nibankan アーデント幡生弐番館 | Price 価格 | | 23,900,000 yen 2390万円 | Floor plan 間取り | | 3LDK + S (storeroom) 3LDK+S(納戸) | Units sold 販売戸数 | | 1 units 1戸 | Total units 総戸数 | | 18 units 18戸 | Occupied area 専有面積 | | 107.38 sq m (center line of wall) 107.38m2(壁芯) | Other area その他面積 | | Balcony area: 35.18 sq m バルコニー面積:35.18m2 | Whereabouts floor / structures and stories 所在階/構造・階建 | | Second floor / RC10 story 2階/RC10階建 | Completion date 完成時期(築年月) | | February 2007 2007年2月 | Address 住所 | | Shimonoseki, Yamaguchi Prefecture Hatabu cho 2 山口県下関市幡生町2 | Traffic 交通 | | JR Sanyo Line "Hatabu" walk 6 minutes JR山陽本線「幡生」歩6分
| Contact お問い合せ先 | | TEL: 0800-808-5729 [Toll free] mobile phone ・ Also available from PHS Caller ID is not notified Please contact the "saw SUUMO (Sumo)" If it does not lead, If the real estate company TEL:0800-808-5729【通話料無料】携帯電話・PHSからもご利用いただけます 発信者番号は通知されません 「SUUMO(スーモ)を見た」と問い合わせください つながらない方、不動産会社の方は
| Administrative expense 管理費 | | 7510 yen / Month (consignment (cyclic)) 7510円/月(委託(巡回)) | Repair reserve 修繕積立金 | | 8050 yen / Month 8050円/月 | Time residents 入居時期 | | Consultation 相談 | Whereabouts floor 所在階 | | Second floor 2階 | Direction 向き | | Southwest 南西 | Structure-storey 構造・階建て | | RC10 story RC10階建 | Site of the right form 敷地の権利形態 | | Ownership 所有権 | Company profile 会社概要 | | <Mediation> Yamaguchi Governor (7) No. 002128 No. green Metropolitan Development Co., Ltd. Yubinbango751-0806 Shimonoseki, Yamaguchi Prefecture Ichinomiya-machi 2-17-2 <仲介>山口県知事(7)第002128号緑都開発(株)〒751-0806 山口県下関市一の宮町2-17-2 |
 Local appearance photo
現地外観写真
 Local appearance photo
現地外観写真
 Living
リビング
Floor plan間取り図  3LDK+S, Price 23,900,000 yen, Footprint 107.38 sq m , Balcony area 35.18 sq m
3LDK+S、価格2390万円、専有面積107.38m2、バルコニー面積35.18m2
 Kitchen
キッチン
 Non-living room
リビング以外の居室
 Kitchen
キッチン
 Non-living room
リビング以外の居室
 Non-living room
リビング以外の居室
 Non-living room
リビング以外の居室
Location
|