2002April
22,900,000 yen, 4LDK, 91.65 sq m
Used Apartments » Chugoku » Yamaguchi Prefecture » Shimonoseki
 
| | Shimonoseki, Yamaguchi Prefecture 山口県下関市 |
| JR Sanyo Line "Shin-Shimonoseki" walk 6 minutes JR山陽本線「新下関」歩6分 |
| 3-02021 whole room is generous feeling of freedom other suppliers handling not detached sense of facing the three balcony 3-02021 全居室が3つのバルコニーに面した戸建感覚のおおらかな解放感 他業者取扱い不可 |
Features pickup 特徴ピックアップ | | Japanese-style room / Security enhancement / Elevator 和室 /セキュリティ充実 /エレベーター | Property name 物件名 | | Grand Palace Shin-Shimonoseki arc Tower グランドパレス新下関アークタワー | Price 価格 | | 22,900,000 yen 2290万円 | Floor plan 間取り | | 4LDK 4LDK | Units sold 販売戸数 | | 1 units 1戸 | Total units 総戸数 | | 39 units 39戸 | Occupied area 専有面積 | | 91.65 sq m (center line of wall) 91.65m2(壁芯) | Other area その他面積 | | Balcony area: 33.44 sq m バルコニー面積:33.44m2 | Whereabouts floor / structures and stories 所在階/構造・階建 | | 8th floor / SRC14 story 8階/SRC14階建 | Completion date 完成時期(築年月) | | April 2002 2002年4月 | Address 住所 | | Shimonoseki, Yamaguchi Prefecture Ikurahigashi cho 山口県下関市伊倉東町 | Traffic 交通 | | JR Sanyo Line "Shin-Shimonoseki" walk 6 minutes JR山陽本線「新下関」歩6分
| Contact お問い合せ先 | | TEL: 0800-808-5729 [Toll free] mobile phone ・ Also available from PHS Caller ID is not notified Please contact the "saw SUUMO (Sumo)" If it does not lead, If the real estate company TEL:0800-808-5729【通話料無料】携帯電話・PHSからもご利用いただけます 発信者番号は通知されません 「SUUMO(スーモ)を見た」と問い合わせください つながらない方、不動産会社の方は
| Administrative expense 管理費 | | 6140 yen / Month (consignment (commuting)) 6140円/月(委託(通勤)) | Repair reserve 修繕積立金 | | 4950 yen / Month 4950円/月 | Time residents 入居時期 | | Consultation 相談 | Whereabouts floor 所在階 | | 8th floor 8階 | Direction 向き | | South 南 | Structure-storey 構造・階建て | | SRC14 story SRC14階建 | Site of the right form 敷地の権利形態 | | Ownership 所有権 | Company profile 会社概要 | | <Mediation> Yamaguchi Governor (7) No. 002128 No. green Metropolitan Development Co., Ltd. Yubinbango751-0806 Shimonoseki, Yamaguchi Prefecture Ichinomiya-machi 2-17-2 <仲介>山口県知事(7)第002128号緑都開発(株)〒751-0806 山口県下関市一の宮町2-17-2 |
 Local appearance photo
現地外観写真
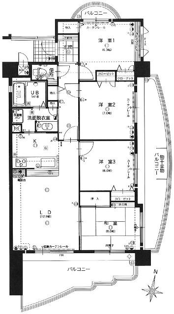
Floor plan間取り図  4LDK, Price 22,900,000 yen, Occupied area 91.65 sq m , Balcony area 33.44 sq m
4LDK、価格2290万円、専有面積91.65m2、バルコニー面積33.44m2
Location
|