2004August
27,800,000 yen, 4LDK, 102.68 sq m
Used Homes » Tokai » Aichi Prefecture » Anjo
 
| | Anjo, Aichi Prefecture 愛知県安城市 |
| Uncle bus "Hongo" walk 1 minute あんくるバス「本郷」歩1分 |
Features pickup 特徴ピックアップ | | Yang per good / Japanese-style room / 2-story 陽当り良好 /和室 /2階建 | Price 価格 | | 27,800,000 yen 2780万円 | Floor plan 間取り | | 4LDK 4LDK | Units sold 販売戸数 | | 1 units 1戸 | Land area 土地面積 | | 201.11 sq m 201.11m2 | Building area 建物面積 | | 102.68 sq m 102.68m2 | Driveway burden-road 私道負担・道路 | | Nothing, Northwest 5.6m width 無、北西5.6m幅 | Completion date 完成時期(築年月) | | August 2004 2004年8月 | Address 住所 | | Anjo, Aichi Prefecture Jogairi cho Inaba 愛知県安城市城ケ入町稲場 | Traffic 交通 | | Uncle bus "Hongo" walk 1 minute あんくるバス「本郷」歩1分 | Contact お問い合せ先 | | AH Corporation (Corporation) TEL: 0120-726680 [Toll free] Please contact the "saw SUUMO (Sumo)" AHコーポレーション(株)TEL:0120-726680【通話料無料】「SUUMO(スーモ)を見た」と問い合わせください | Building coverage, floor area ratio 建ぺい率・容積率 | | 60% ・ 200% 60%・200% | Time residents 入居時期 | | Consultation 相談 | Land of the right form 土地の権利形態 | | Ownership 所有権 | Structure and method of construction 構造・工法 | | Wooden 2-story 木造2階建 | Renovation リフォーム | | March 2013 interior renovation completed 2013年3月内装リフォーム済 | Company profile 会社概要 | | <Mediation> Governor of Aichi Prefecture (3) No. 019461 (Corporation) Aichi Prefecture Building Lots and Buildings Transaction Business Association Tokai Real Estate Fair Trade Council member AH Corporation (Corporation) Yubinbango471-0837 Toyota City, Aichi Prefecture Shinsei-cho 1-18-1 <仲介>愛知県知事(3)第019461号(公社)愛知県宅地建物取引業協会会員 東海不動産公正取引協議会加盟AHコーポレーション(株)〒471-0837 愛知県豊田市新生町1-18-1 |
Local appearance photo現地外観写真  Local (09 May 2013) Shooting
現地(2013年09月)撮影
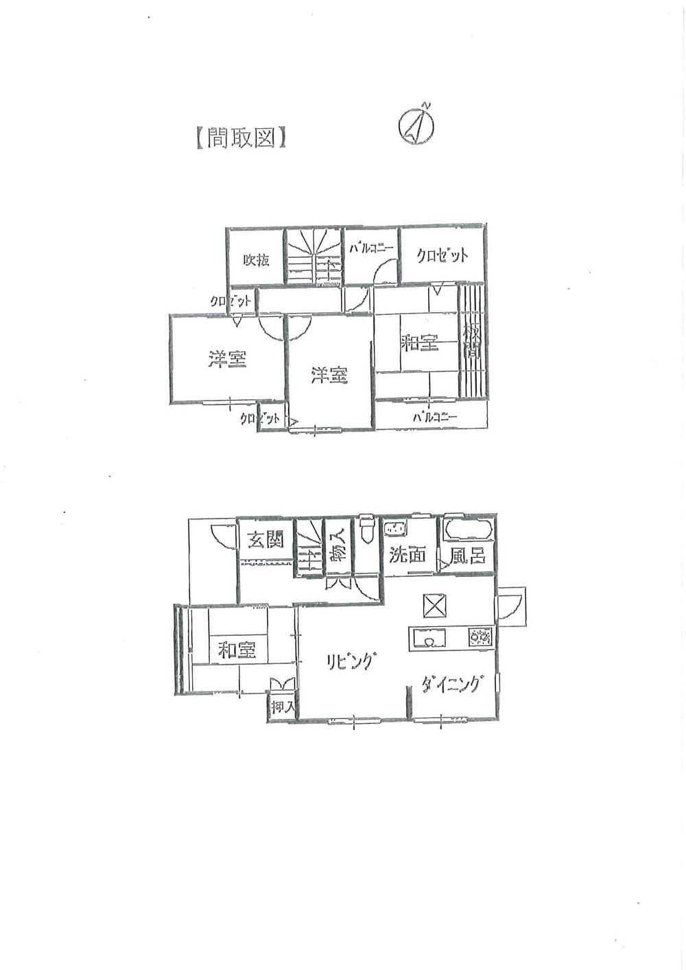
Floor plan間取り図  27,800,000 yen, 4LDK, Land area 201.11 sq m , Building area 102.68 sq m
2780万円、4LDK、土地面積201.11m2、建物面積102.68m2
Non-living roomリビング以外の居室  Indoor (09 May 2013) Shooting
室内(2013年09月)撮影
Kitchenキッチン  Indoor (September 2013) Shooting
室内(2013年9月)撮影
 Other
その他
Location
|