|
|
Aichi Prefecture Chita-gun Agui-cho
愛知県知多郡阿久比町
|
|
Kowasen Meitetsu "Uedai" walk 11 minutes
名鉄河和線「植大」歩11分
|
|
Parking two Allowed, Super close, Or more before road 6mese-style room, Face-to-face kitchen, 2-story, South balcony, The window in the bathroom, All-electric, City gas
駐車2台可、スーパーが近い、前道6m以上、和室、対面式キッチン、2階建、南面バルコニー、浴室に窓、オール電化、都市ガス
|
|
Parking two Allowed, Super close, Or more before road 6mese-style room, Face-to-face kitchen, 2-story, South balcony, The window in the bathroom, All-electric, City gas
駐車2台可、スーパーが近い、前道6m以上、和室、対面式キッチン、2階建、南面バルコニー、浴室に窓、オール電化、都市ガス
|
Features pickup 特徴ピックアップ | | Parking two Allowed / Super close / Or more before road 6m / Japanese-style room / Face-to-face kitchen / 2-story / South balcony / The window in the bathroom / All-electric / City gas 駐車2台可 /スーパーが近い /前道6m以上 /和室 /対面式キッチン /2階建 /南面バルコニー /浴室に窓 /オール電化 /都市ガス |
Price 価格 | | 25 million yen 2500万円 |
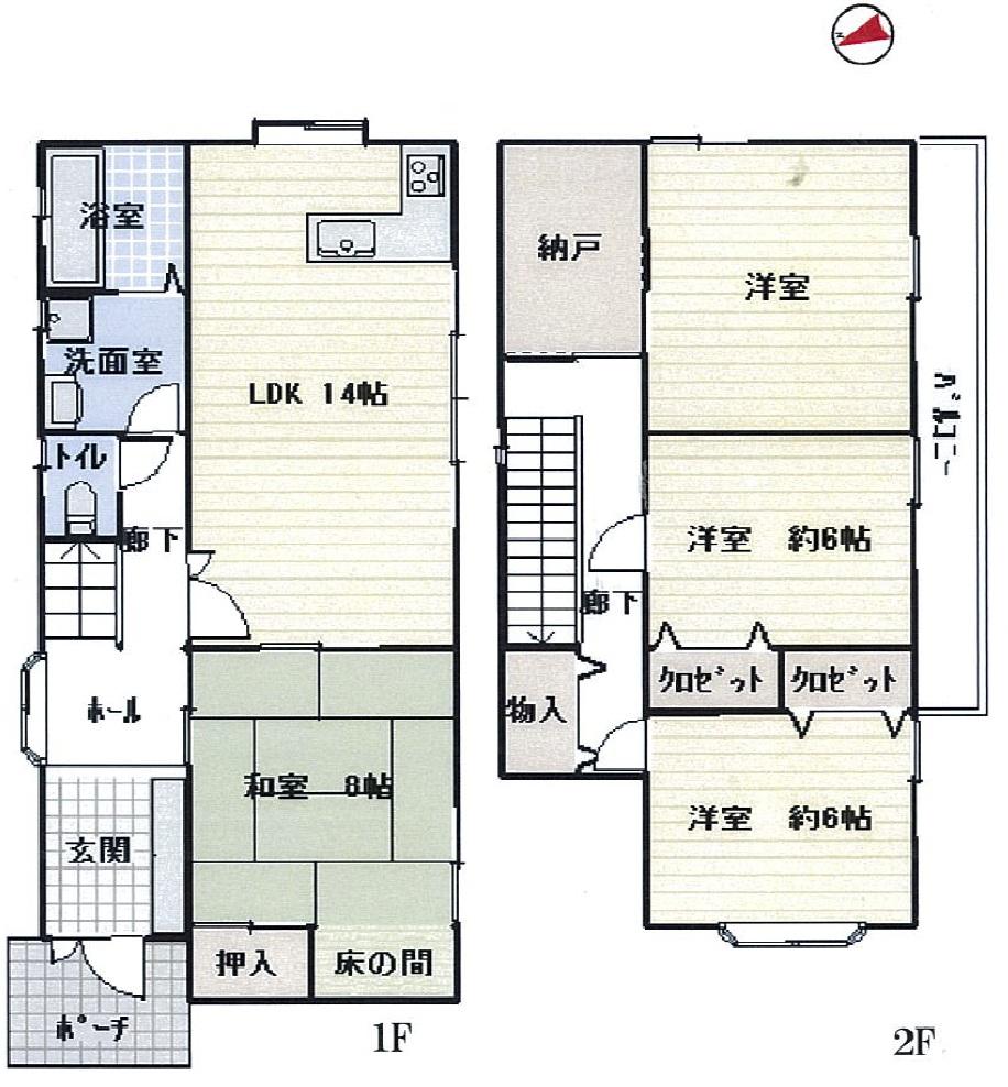
Floor plan 間取り | | 4LDK 4LDK |
Units sold 販売戸数 | | 1 units 1戸 |
Land area 土地面積 | | 211.22 sq m 211.22m2 |
Building area 建物面積 | | 109.3 sq m 109.3m2 |
Driveway burden-road 私道負担・道路 | | Nothing, North 6m width 無、北6m幅 |
Completion date 完成時期(築年月) | | November 1997 1997年11月 |
Address 住所 | | Aichi Prefecture Chita-gun Agui-cho, Oaza planted Oaza Omiya before 愛知県知多郡阿久比町大字植大字大宮前 |
Traffic 交通 | | Kowasen Meitetsu "Uedai" walk 11 minutes 名鉄河和線「植大」歩11分
|
Related links 関連リンク | | [Related Sites of this company] 【この会社の関連サイト】 |
Person in charge 担当者より | | Person in charge of real-estate and building Yagi Tomoyuki Age: 30 Daigyokai Experience: 8 years real estate SHOP Nakajitsu Kariya shop "Yagi Tomoyuki " is! ! Trouble together in the buying and selling of real estate, Consultation and, Resolved, Let a successful major event of life! ! 担当者宅建八木 友之年齢:30代業界経験:8年不動産SHOPナカジツ刈谷店 『八木 友之』 です!!不動産の売買で一緒に悩み、相談し、解決し、人生の一大イベントを成功させましょう!! |
Contact お問い合せ先 | | TEL: 0800-603-7339 [Toll free] mobile phone ・ Also available from PHS Caller ID is not notified Please contact the "saw SUUMO (Sumo)" If it does not lead, If the real estate company TEL:0800-603-7339【通話料無料】携帯電話・PHSからもご利用いただけます 発信者番号は通知されません 「SUUMO(スーモ)を見た」と問い合わせください つながらない方、不動産会社の方は
|
Building coverage, floor area ratio 建ぺい率・容積率 | | 60% ・ 200% 60%・200% |
Time residents 入居時期 | | Consultation 相談 |
Land of the right form 土地の権利形態 | | Ownership 所有権 |
Structure and method of construction 構造・工法 | | Wooden 2-story 木造2階建 |
Use district 用途地域 | | One dwelling 1種住居 |
Other limitations その他制限事項 | | Building Standards Law Article 22 section 建築基準法第22条区域 |
Overview and notices その他概要・特記事項 | | Contact: Yagi Tomoyuki, Facilities: Public Water Supply, This sewage, City gas, Parking: car space 担当者:八木 友之、設備:公営水道、本下水、都市ガス、駐車場:カースペース |
Company profile 会社概要 | | <Mediation> Governor of Aichi Prefecture (2) No. 020601 (Corporation) Aichi Prefecture Building Lots and Buildings Transaction Business Association Tokai Real Estate Fair Trade Council member (Ltd.) Property SHOP Nakajitsu Kariya shop Yubinbango448-0049 Kariya City, Aichi Prefecture metacarpal-cho, 6-812 <仲介>愛知県知事(2)第020601号(公社)愛知県宅地建物取引業協会会員 東海不動産公正取引協議会加盟(株)不動産SHOPナカジツ刈谷店〒448-0049 愛知県刈谷市中手町6-812 |