1990July
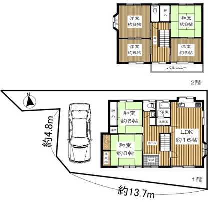
17.8 million yen, 6LDK, 138.1 sq m
Used Homes » Tokai » Aichi Prefecture » Ichinomiya
 
| | Aichi Prefecture Ichinomiya 愛知県一宮市 |
| Inuyamasen Meitetsu "Stone Buddha" walk 22 minutes 名鉄犬山線「石仏」歩22分 |
Price 価格 | | 17.8 million yen 1780万円 | Floor plan 間取り | | 6LDK 6LDK | Units sold 販売戸数 | | 1 units 1戸 | Land area 土地面積 | | 154.97 sq m (registration) 154.97m2(登記) | Building area 建物面積 | | 138.1 sq m (registration) 138.1m2(登記) | Driveway burden-road 私道負担・道路 | | Nothing, South 4.5m width (contact the road width 13.7m), West 4.6m width 無、南4.5m幅(接道幅13.7m)、西4.6m幅 | Completion date 完成時期(築年月) | | July 1990 1990年7月 | Address 住所 | | Aichi Prefecture Ichinomiya Chiakichosano Jikita Takasu 愛知県一宮市千秋町佐野字北高須 | Traffic 交通 | | Inuyamasen Meitetsu "Stone Buddha" walk 22 minutes 名鉄犬山線「石仏」歩22分
| Person in charge 担当者より | | Rep Shiratani Shuichi 担当者白谷 修一 | Contact お問い合せ先 | | Sumitomo Real Estate Sales Co., Ltd. Nagoya Sales Center TEL: 0800-603-0055 [Toll free] mobile phone ・ Also available from PHS Caller ID is not notified Please contact the "saw SUUMO (Sumo)" If it does not lead, If the real estate company 住友不動産販売(株)名古屋営業センターTEL:0800-603-0055【通話料無料】携帯電話・PHSからもご利用いただけます 発信者番号は通知されません 「SUUMO(スーモ)を見た」と問い合わせください つながらない方、不動産会社の方は
| Building coverage, floor area ratio 建ぺい率・容積率 | | 60% ・ 184 percent 60%・184% | Time residents 入居時期 | | Consultation 相談 | Land of the right form 土地の権利形態 | | Ownership 所有権 | Structure and method of construction 構造・工法 | | Wooden 2-story 木造2階建 | Use district 用途地域 | | Urbanization control area 市街化調整区域 | Other limitations その他制限事項 | | / Terrain: flat /地勢:平坦 | Overview and notices その他概要・特記事項 | | Contact: Shiratani Shuichi, Parking: car space 担当者:白谷 修一、駐車場:カースペース | Company profile 会社概要 | | <Mediation> Minister of Land, Infrastructure and Transport (11) No. 002077 (one company) Property distribution management Association (Corporation) metropolitan area real estate Fair Trade Council member Sumitomo Real Estate Sales Co., Ltd., Nagoya business center Yubinbango460-0002 Nagoya, Aichi Prefecture, Naka-ku Marunouchi 3-17-13 strawberry Marunouchi Building 7th floor <仲介>国土交通大臣(11)第002077号(一社)不動産流通経営協会会員 (公社)首都圏不動産公正取引協議会加盟住友不動産販売(株)名古屋営業センター〒460-0002 愛知県名古屋市中区丸の内3-17-13 いちご丸の内ビル7階 |
Local appearance photo現地外観写真  appearance
外観
 Floor plan
間取り図
Location
|