|
|
Aichi Prefecture Iwakura
愛知県岩倉市
|
|
Inuyamasen Meitetsu "Iwakura" walk 20 minutes
名鉄犬山線「岩倉」歩20分
|
|
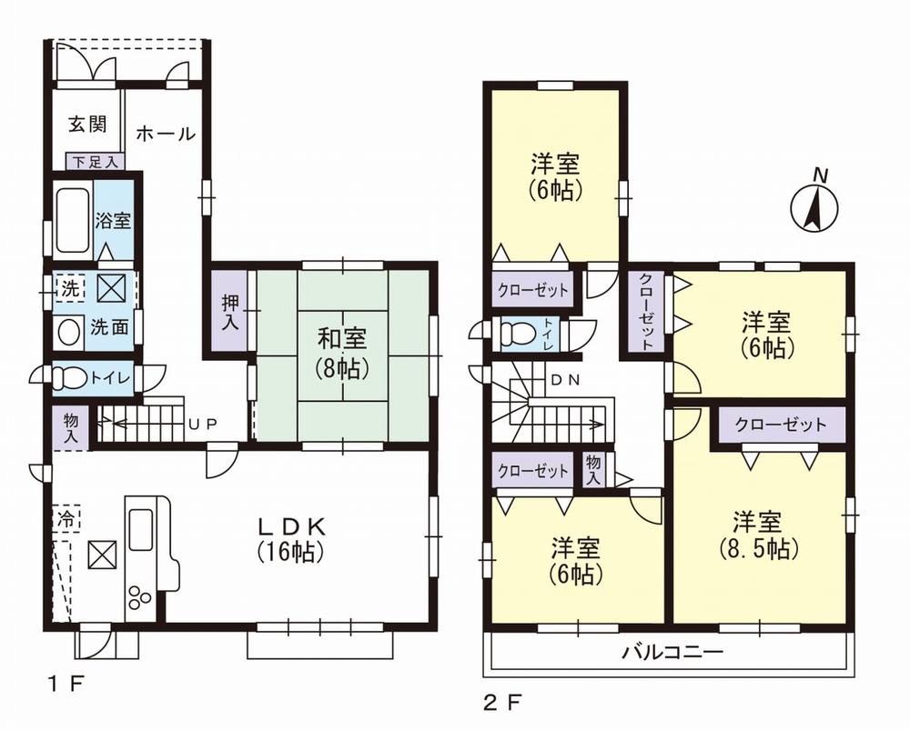
■ January 2004 new construction! 5LDK of room! ■ There south garden space! ■ With car port parking two Allowed! ■ First floor LDK16 Pledge + Japanese-style room 8 quires!
■平成16年1月新築!ゆとりの5LDK!■南側庭スペース有り!■カーポート付駐車場2台可!■1階LDK16帖+和室8帖!
|
Features pickup 特徴ピックアップ | | Parking two Allowed / System kitchen / All room storage / A quiet residential area / LDK15 tatami mats or more / Japanese-style room / Face-to-face kitchen / Barrier-free / Toilet 2 places / 2-story / Double-glazing / Otobasu / Warm water washing toilet seat / Nantei / Underfloor Storage / The window in the bathroom / TV monitor interphone / Ventilation good / Dish washing dryer / All room 6 tatami mats or more / City gas 駐車2台可 /システムキッチン /全居室収納 /閑静な住宅地 /LDK15畳以上 /和室 /対面式キッチン /バリアフリー /トイレ2ヶ所 /2階建 /複層ガラス /オートバス /温水洗浄便座 /南庭 /床下収納 /浴室に窓 /TVモニタ付インターホン /通風良好 /食器洗乾燥機 /全居室6畳以上 /都市ガス |
Price 価格 | | 30,800,000 yen 3080万円 |
Floor plan 間取り | | 5LDK 5LDK |
Units sold 販売戸数 | | 1 units 1戸 |
Land area 土地面積 | | 160.71 sq m (registration) 160.71m2(登記) |
Building area 建物面積 | | 125.86 sq m (registration) 125.86m2(登記) |
Driveway burden-road 私道負担・道路 | | Nothing, North 7.5m width (contact the road width 8.9m) 無、北7.5m幅(接道幅8.9m) |
Completion date 完成時期(築年月) | | January 2004 2004年1月 |
Address 住所 | | Aichi Prefecture Iwakura Noyori cho Teraura 愛知県岩倉市野寄町寺浦 |
Traffic 交通 | | Inuyamasen Meitetsu "Iwakura" walk 20 minutes 名鉄犬山線「岩倉」歩20分
|
Person in charge 担当者より | | Person in charge of real-estate and building Mizuno Large Age: 30 Daigyokai experience: Even five years First what Please feel free to contact us. Cherish the encounter with our customers, Satisfaction can you let me help you with real estate buying and selling. 担当者宅建水野 大年齢:30代業界経験:5年まずは何でもお気軽にご相談下さい。お客様との出会いを大切に、満足出来る不動産売買のお手伝いをさせて頂きます。 |
Contact お問い合せ先 | | TEL: 0800-603-1480 [Toll free] mobile phone ・ Also available from PHS Caller ID is not notified Please contact the "saw SUUMO (Sumo)" If it does not lead, If the real estate company TEL:0800-603-1480【通話料無料】携帯電話・PHSからもご利用いただけます 発信者番号は通知されません 「SUUMO(スーモ)を見た」と問い合わせください つながらない方、不動産会社の方は
|
Building coverage, floor area ratio 建ぺい率・容積率 | | 60% ・ 200% 60%・200% |
Time residents 入居時期 | | Consultation 相談 |
Land of the right form 土地の権利形態 | | Ownership 所有権 |
Structure and method of construction 構造・工法 | | Wooden 2-story 木造2階建 |
Use district 用途地域 | | Unspecified 無指定 |
Overview and notices その他概要・特記事項 | | Contact: Mizuno Big, Facilities: Public Water Supply, This sewage, City gas, Parking: Car Port 担当者:水野 大、設備:公営水道、本下水、都市ガス、駐車場:カーポート |
Company profile 会社概要 | | <Mediation> Minister of Land, Infrastructure and Transport (9) No. 002,961 (one company) Property distribution management Association (Corporation) metropolitan area real estate Fair Trade Council member Sekiwa Real Estate Chubu Co., Ltd. Meieki distribution office Yubinbango450-0002 Aichi Prefecture, Nakamura-ku, Nagoya, Meieki 4-24-16 Hirokoji Garden Avenue 7th Floor <仲介>国土交通大臣(9)第002961号(一社)不動産流通経営協会会員 (公社)首都圏不動産公正取引協議会加盟積和不動産中部(株)名駅流通営業所〒450-0002 愛知県名古屋市中村区名駅4-24-16 広小路ガーデンアベニュー7階 |