|
|
Kasugai City, Aichi Prefecture
愛知県春日井市
|
|
Komaki Meitetsu "Kasugai" walk 15 minutes
名鉄小牧線「春日井」歩15分
|
|
2013 July renovated kitchen (dishwasher) exchange ・ Unit bus (Yokudanzuke) exchange ・ Gas water heater (follow fueled) exchange ・ Toilet bowl, Washlet exchange ・ Vanity exchange
平成25年7月改装済システムキッチン(食洗機付)交換・ユニットバス(浴暖付)交換・ガス給湯器(追い焚付)交換・便器、ウォシュレット交換・洗面化粧台交換
|
|
LDK, Western style room, Floor flooring Hakawa ・ LDK, toilet, Washroom, Between Japanese-style room 2, Western style room, wall, Ceiling cross Chokawa ・ Exchange tatami mat, Sliding door, Exchange Shoji Zhang ・ TV interphone, House cleaning other
LDK、洋室、床フローリング貼替・LDK、トイレ、洗面所、和室2間、洋室、壁、天井クロス張替・畳表替、襖、障子張替・TVインターホン、ハウスクリーニング他
|
Features pickup 特徴ピックアップ | | System kitchen / All room storage / Japanese-style room / 2-story / Warm water washing toilet seat / TV monitor interphone / Dish washing dryer / All room 6 tatami mats or more システムキッチン /全居室収納 /和室 /2階建 /温水洗浄便座 /TVモニタ付インターホン /食器洗乾燥機 /全居室6畳以上 |
Price 価格 | | 18,800,000 yen 1880万円 |
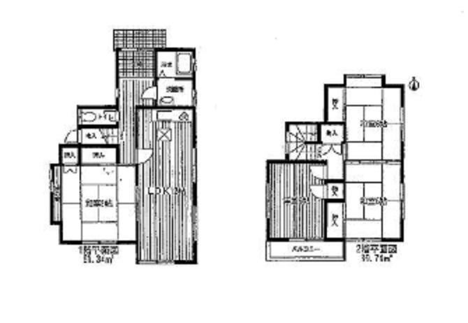
Floor plan 間取り | | 4LDK 4LDK |
Units sold 販売戸数 | | 1 units 1戸 |
Land area 土地面積 | | 127.84 sq m (registration) 127.84m2(登記) |
Building area 建物面積 | | 91.08 sq m (registration) 91.08m2(登記) |
Driveway burden-road 私道負担・道路 | | Nothing, North 9m width (contact the road width 7.6m) 無、北9m幅(接道幅7.6m) |
Completion date 完成時期(築年月) | | December 1983 1983年12月 |
Address 住所 | | Kasugai City, Aichi Prefecture Inaguchi cho 3 愛知県春日井市稲口町3 |
Traffic 交通 | | Komaki Meitetsu "Kasugai" walk 15 minutes 名鉄小牧線「春日井」歩15分
|
Person in charge 担当者より | | [Regarding this property.] Please feel free to contact us at 0800-603-2530 【この物件について】0800-603-2530までお気軽にお問い合わせ下さい |
Contact お問い合せ先 | | TEL: 0800-603-2530 [Toll free] mobile phone ・ Also available from PHS Caller ID is not notified Please contact the "saw SUUMO (Sumo)" If it does not lead, If the real estate company TEL:0800-603-2530【通話料無料】携帯電話・PHSからもご利用いただけます 発信者番号は通知されません 「SUUMO(スーモ)を見た」と問い合わせください つながらない方、不動産会社の方は
|
Building coverage, floor area ratio 建ぺい率・容積率 | | 60% ・ 200% 60%・200% |
Time residents 入居時期 | | Immediate available 即入居可 |
Land of the right form 土地の権利形態 | | Ownership 所有権 |
Structure and method of construction 構造・工法 | | Wooden 2-story 木造2階建 |
Use district 用途地域 | | Semi-industrial 準工業 |
Overview and notices その他概要・特記事項 | | Facilities: Public Water Supply, This sewage, City gas 設備:公営水道、本下水、都市ガス |
Company profile 会社概要 | | <Mediation> Governor of Aichi Prefecture (4) No. 018502 Century 21 (Ltd.) Urban Create Yubinbango486-0833 Kasugai City, Aichi Prefecture Kamijo-cho 1-60 <仲介>愛知県知事(4)第018502号センチュリー21(株)アーバンクリエイト〒486-0833 愛知県春日井市上条町1-60 |