Used Homes » Tokai » Aichi Prefecture » Kasugai
 
| | Kasugai City, Aichi Prefecture 愛知県春日井市 |
| Meitetsu bus "Takamoridai west" walk 3 minutes 名鉄バス「高森台西」歩3分 |
| Spacious land area of about 102 square meters, The building is of Sekisui House lightweight steel frame, 1971 is built, but it is beautiful to your. H21_nenkoronigaiheki, Pre-roof renovation. Year Available, 2 along the line more accessible, Land 1 広々土地面積約102坪、建物はセキスイハウスの軽量鉄骨造、昭和46年築ですが綺麗にお使いです。H21年頃に外壁、屋根リフォーム済。年内入居可、2沿線以上利用可、土地1 |
| Year Available, 2 along the line more accessible, Land more than 100 square meters, It is close to golf course, Super close, Interior and exterior renovation, Facing south, System kitchen, Yang per good, A quiet residential area, Or more before road 6mese-style room, Shaping land, Garden more than 10 square meters, garden, Washbasin with shower, 3 face lighting, Barrier-free, 2-story, South balcony, Nantei, The window in the bathroom, Leafy residential area, Ventilation good, Storeroom, Located on a hill, In a large town, Development subdivision in 年内入居可、2沿線以上利用可、土地100坪以上、ゴルフ場が近い、スーパーが近い、内外装リフォーム、南向き、システムキッチン、陽当り良好、閑静な住宅地、前道6m以上、和室、整形地、庭10坪以上、庭、シャワー付洗面台、3面採光、バリアフリー、2階建、南面バルコニー、南庭、浴室に窓、緑豊かな住宅地、通風良好、納戸、高台に立地、大型タウン内、開発分譲地内 |
Features pickup 特徴ピックアップ | | Year Available / 2 along the line more accessible / Land more than 100 square meters / It is close to golf course / Super close / Interior and exterior renovation / Facing south / System kitchen / Yang per good / A quiet residential area / Or more before road 6m / Japanese-style room / Shaping land / Garden more than 10 square meters / garden / Washbasin with shower / 3 face lighting / Barrier-free / 2-story / South balcony / Nantei / The window in the bathroom / Leafy residential area / Ventilation good / Located on a hill / In a large town / Development subdivision in 年内入居可 /2沿線以上利用可 /土地100坪以上 /ゴルフ場が近い /スーパーが近い /内外装リフォーム /南向き /システムキッチン /陽当り良好 /閑静な住宅地 /前道6m以上 /和室 /整形地 /庭10坪以上 /庭 /シャワー付洗面台 /3面採光 /バリアフリー /2階建 /南面バルコニー /南庭 /浴室に窓 /緑豊かな住宅地 /通風良好 /高台に立地 /大型タウン内 /開発分譲地内 | Property name 物件名 | | Takamoridai 2-chome Furudoken 高森台2丁目中古戸建 | Price 価格 | | 23.8 million yen 2380万円 | Floor plan 間取り | | 4LDK 4LDK | Units sold 販売戸数 | | 1 units 1戸 | Land area 土地面積 | | 334.5 sq m (101.18 tsubo) (Registration) 334.5m2(101.18坪)(登記) | Building area 建物面積 | | 111.8 sq m (33.81 tsubo) (Registration) 111.8m2(33.81坪)(登記) | Driveway burden-road 私道負担・道路 | | Nothing, North 6m width (contact the road width 15m) 無、北6m幅(接道幅15m) | Completion date 完成時期(築年月) | | November 1971 1971年11月 | Address 住所 | | Kasugai City, Aichi Prefecture Takamoridai 2 愛知県春日井市高森台2 | Traffic 交通 | | Meitetsu bus "Takamoridai west" walk 3 minutes JR Chuo Main Line "Kozoji" walk 44 minutes JR Chuo Line "Jokoji" walk 68 minutes 名鉄バス「高森台西」歩3分JR中央本線「高蔵寺」歩44分 JR中央本線「定光寺」歩68分
| Person in charge 担当者より | | Person in charge of real-estate and building Shoshiba Makoto Age: 30 Daigyokai experience: stay 3 years ・ Eclipse ・ Is a big part of life much is said to be living. Thinking well together, Let's send a nice life. 担当者宅建小芝 誠年齢:30代業界経験:3年居・食・住といわれるくらい人生の大きな部分です。一緒によく考え、素敵な人生を送りましょう。 | Contact お問い合せ先 | | TEL: 0800-603-3252 [Toll free] mobile phone ・ Also available from PHS Caller ID is not notified Please contact the "saw SUUMO (Sumo)" If it does not lead, If the real estate company TEL:0800-603-3252【通話料無料】携帯電話・PHSからもご利用いただけます 発信者番号は通知されません 「SUUMO(スーモ)を見た」と問い合わせください つながらない方、不動産会社の方は
| Building coverage, floor area ratio 建ぺい率・容積率 | | Fifty percent ・ Hundred percent 50%・100% | Time residents 入居時期 | | Immediate available 即入居可 | Land of the right form 土地の権利形態 | | Ownership 所有権 | Structure and method of construction 構造・工法 | | Light-gauge steel 2-story 軽量鉄骨2階建 | Construction 施工 | | Co., Ltd. Sekisui House (株)セキスイハウス | Renovation リフォーム | | October 1993 interior renovation completed (bathroom ・ toilet ・ Washbasin exchange), April 2009 exterior renovation completed (outer wall ・ roof) 1993年10月内装リフォーム済(浴室・トイレ・洗面台交換)、2009年4月外装リフォーム済(外壁・屋根) | Use district 用途地域 | | One low-rise 1種低層 | Other limitations その他制限事項 | | Residential land development construction regulation area 宅地造成工事規制区域 | Overview and notices その他概要・特記事項 | | Contact: small lawn Truth, Facilities: Public Water Supply, This sewage, City gas, Parking: Car Port 担当者:小芝 誠、設備:公営水道、本下水、都市ガス、駐車場:カーポート | Company profile 会社概要 | | <Mediation> Governor of Aichi Prefecture (3) No. 019732 (Ltd.) Home planner business center Yubinbango451-0064 Nagoya, Aichi Prefecture, Nishi-ku, Meisei 2-32-16 <仲介>愛知県知事(3)第019732号(株)ホームプランナー営業センター〒451-0064 愛知県名古屋市西区名西2-32-16 |
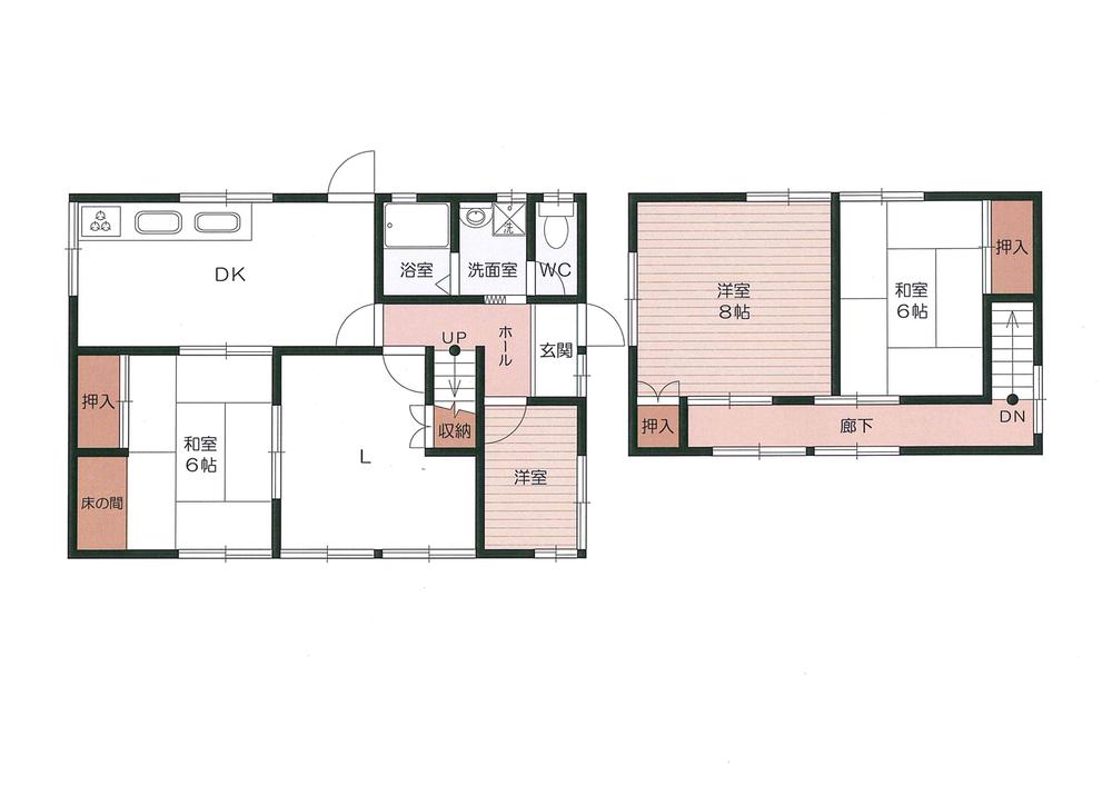
Floor plan間取り図  23.8 million yen, 4LDK, Land area 334.5 sq m , Building area 111.8 sq m
2380万円、4LDK、土地面積334.5m2、建物面積111.8m2
Local appearance photo現地外観写真  Local (11 May 2013) Shooting
現地(2013年11月)撮影
Local photos, including front road前面道路含む現地写真  Local (11 May 2013) Shooting
現地(2013年11月)撮影
Livingリビング  Indoor (11 May 2013) Shooting
室内(2013年11月)撮影
Bathroom浴室  Indoor (11 May 2013) Shooting
室内(2013年11月)撮影
Kitchenキッチン  Indoor (11 May 2013) Shooting
室内(2013年11月)撮影
Non-living roomリビング以外の居室  Indoor (11 May 2013) Shooting
室内(2013年11月)撮影
 Other Equipment
その他設備
View photos from the dwelling unit住戸からの眺望写真  View from the site (November 2013) Shooting
現地からの眺望(2013年11月)撮影
 Other Equipment
その他設備
 Other Equipment
その他設備
 Other Equipment
その他設備
 Other Equipment
その他設備
 Other Equipment
その他設備
Location
|