1994June
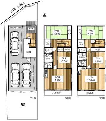
21.5 million yen, 4LDK + S (storeroom), 173.49 sq m
Used Homes » Tokai » Aichi Prefecture » Kiyosu City
 
| | Aichi Prefecture Kiyosu City 愛知県清須市 |
| Nagoyahonsen Meitetsu "Marunouchi" walk 3 minutes 名鉄名古屋本線「丸ノ内」歩3分 |
Price 価格 | | 21.5 million yen 2150万円 | Floor plan 間取り | | 4LDK + S (storeroom) 4LDK+S(納戸) | Units sold 販売戸数 | | 1 units 1戸 | Land area 土地面積 | | 161.8 sq m (registration) 161.8m2(登記) | Building area 建物面積 | | 173.49 sq m (registration) 173.49m2(登記) | Driveway burden-road 私道負担・道路 | | Nothing, North 6.6m width (contact the road width 8.5m) 無、北6.6m幅(接道幅8.5m) | Completion date 完成時期(築年月) | | June 1994 1994年6月 | Address 住所 | | Aichi Prefecture Kiyosu City Nabehen 2 愛知県清須市鍋片2 | Traffic 交通 | | Nagoyahonsen Meitetsu "Marunouchi" walk 3 minutes 名鉄名古屋本線「丸ノ内」歩3分
| Person in charge 担当者より | | Person in charge of Nomura Eiji 担当者野村 英司 | Contact お問い合せ先 | | Sumitomo Real Estate Sales Co., Ltd. Ichinomiya business center TEL: 0586-28-0911 Please inquire as "saw SUUMO (Sumo)" 住友不動産販売(株)一宮営業センターTEL:0586-28-0911「SUUMO(スーモ)を見た」と問い合わせください | Building coverage, floor area ratio 建ぺい率・容積率 | | 80% ・ 200% 80%・200% | Time residents 入居時期 | | Consultation 相談 | Land of the right form 土地の権利形態 | | Ownership 所有権 | Structure and method of construction 構造・工法 | | Steel frame three-story 鉄骨3階建 | Use district 用途地域 | | Residential, One middle and high 近隣商業、1種中高 | Other limitations その他制限事項 | | / Floor plan 4LDK, LDK, 2 closet / Terrain: flat /間取り 4LDK、LDK、2納戸/地勢:平坦 | Overview and notices その他概要・特記事項 | | Contact: Nomura Eiji, Parking: car space 担当者:野村 英司、駐車場:カースペース | Company profile 会社概要 | | <Mediation> Minister of Land, Infrastructure and Transport (11) No. 002077 Sumitomo Real Estate Sales Co., Ltd. Ichinomiya business center Yubinbango491-0858 Aichi Prefecture Ichinomiya Sakae 1-9-20 <仲介>国土交通大臣(11)第002077号住友不動産販売(株)一宮営業センター〒491-0858 愛知県一宮市栄1-9-20 |
Local appearance photo現地外観写真  Local 1
現地1
 Floor plan
間取り図
Location
|