|
|
Aichi Prefecture, Nagakute
愛知県長久手市
|
|
Linimo "dogwood through" walk 16 minutes
リニモ「はなみずき通」歩16分
|
|
Renovation completed ☆ cross ・ Flooring Chokawa, Exchange tatami mat, Sliding door ・ Exchange Shoji Zhang, System kitchen, Outer wall paint etc ...
リフォーム済☆クロス・フローリング張替、畳表替、襖・障子張替、システムキッチン、外壁塗装etc…
|
|
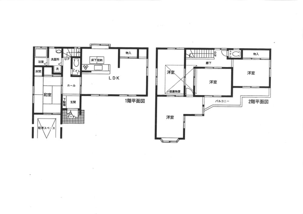
■ LDK16 Pledge ■ 5LDK ■ Hito good ■ Solar power system Available ■ Second floor Japanese-style room → to Western-style ■ Underfloor Storage mounting
■LDK16帖■5LDK■陽当良好■太陽光発電システム有■2階和室→洋室へ■床下収納取付
|
Features pickup 特徴ピックアップ | | Immediate Available / Interior and exterior renovation / System kitchen / Yang per good / A quiet residential area / LDK15 tatami mats or more / Japanese-style room / Toilet 2 places / 2-story / Underfloor Storage / Ventilation good / Southwestward / All room 6 tatami mats or more / City gas 即入居可 /内外装リフォーム /システムキッチン /陽当り良好 /閑静な住宅地 /LDK15畳以上 /和室 /トイレ2ヶ所 /2階建 /床下収納 /通風良好 /南西向き /全居室6畳以上 /都市ガス |
Event information イベント情報 | | (Please coming directly to the site) (直接現地へご来場ください) |
Price 価格 | | 25,800,000 yen 2580万円 |
Floor plan 間取り | | 5LDK 5LDK |
Units sold 販売戸数 | | 1 units 1戸 |
Land area 土地面積 | | 114.94 sq m (registration) 114.94m2(登記) |
Building area 建物面積 | | 115.83 sq m (registration) 115.83m2(登記) |
Driveway burden-road 私道負担・道路 | | Nothing, Southwest 5.4m width (contact the road width 4.5m) 無、南西5.4m幅(接道幅4.5m) |
Completion date 完成時期(築年月) | | March 1994 1994年3月 |
Address 住所 | | Aichi Prefecture, Nagakute Iwasaku flat 愛知県長久手市岩作平地 |
Traffic 交通 | | Linimo "dogwood through" walk 16 minutes リニモ「はなみずき通」歩16分
|
Contact お問い合せ先 | | (Yes) Aktiv House TEL: 052-324-6831 "saw SUUMO (Sumo)" and please contact (有)アクティヴハウスTEL:052-324-6831「SUUMO(スーモ)を見た」と問い合わせください |
Building coverage, floor area ratio 建ぺい率・容積率 | | 60% ・ 200% 60%・200% |
Time residents 入居時期 | | Immediate available 即入居可 |
Land of the right form 土地の権利形態 | | Ownership 所有権 |
Structure and method of construction 構造・工法 | | Wooden 2-story 木造2階建 |
Renovation リフォーム | | 2013 November interior renovation completed (kitchen ・ wall ・ floor ・ all rooms), 2013 November exterior renovation completed (outer wall) 2013年11月内装リフォーム済(キッチン・壁・床・全室)、2013年11月外装リフォーム済(外壁) |
Use district 用途地域 | | One dwelling 1種住居 |
Overview and notices その他概要・特記事項 | | Facilities: Public Water Supply, Individual septic tank, City gas, Parking: car space 設備:公営水道、個別浄化槽、都市ガス、駐車場:カースペース |
Company profile 会社概要 | | <Seller> Governor of Aichi Prefecture (4) No. 017715 (with) Aktiv House Yubinbango460-0021 Aichi Prefecture medium Nagoya District peace 1-20-22 <売主>愛知県知事(4)第017715号(有)アクティヴハウス〒460-0021 愛知県名古屋市中区平和1-20-22 |