|
|
Nagoya-shi, Aichi Atsuta-ku,
愛知県名古屋市熱田区
|
|
Subway Meiko line "Rokuban town" walk 12 minutes
地下鉄名港線「六番町」歩12分
|
|
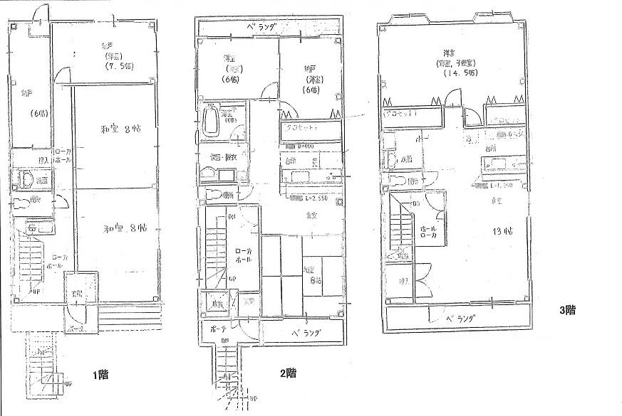
1st floor: Japanese-style room 8.0 × 2 rooms, Western-style 7.5, Storeroom 6.0 Second floor: Western-style 6.0 × 2ese-style room 8.0, DK6.0 Third floor: Western-style 14.5, LDK13 Pledge
1階:和室8.0×2室、洋室7.5、納戸6.0 2階:洋室6.0×2、和室8.0、DK6.0 3階:洋室14.5、LDK13帖
|
|
Funakata is a convenient environment of near the elementary school.
船方小学校のそばの便利な環境です。
|
Features pickup 特徴ピックアップ | | A quiet residential area / Three-story or more / Storeroom 閑静な住宅地 /3階建以上 /納戸 |
Price 価格 | | 22 million yen 2200万円 |
Floor plan 間取り | | 7LDDKK + S (storeroom) 7LDDKK+S(納戸) |
Units sold 販売戸数 | | 1 units 1戸 |
Land area 土地面積 | | 132.23 sq m (registration) 132.23m2(登記) |
Building area 建物面積 | | 232.17 sq m (registration) 232.17m2(登記) |
Driveway burden-road 私道負担・道路 | | Nothing, South 3.6m width (contact the road width 7.4m) 無、南3.6m幅(接道幅7.4m) |
Completion date 完成時期(築年月) | | April 1996 1996年4月 |
Address 住所 | | Nagoya, Aichi Prefecture Atsuta-ku, second 2 愛知県名古屋市熱田区二番2 |
Traffic 交通 | | Subway Meiko line "Rokuban town" walk 12 minutes Subway Meiko line "Tokaitori" walk 21 minutes Subway Meiko line "Hibino" walk 19 minutes 地下鉄名港線「六番町」歩12分 地下鉄名港線「東海通」歩21分 地下鉄名港線「日比野」歩19分
|
Person in charge 担当者より | | Rep Kuno 担当者久野 |
Contact お問い合せ先 | | TEL: 0800-602-6835 [Toll free] mobile phone ・ Also available from PHS Caller ID is not notified Please contact the "saw SUUMO (Sumo)" If it does not lead, If the real estate company TEL:0800-602-6835【通話料無料】携帯電話・PHSからもご利用いただけます 発信者番号は通知されません 「SUUMO(スーモ)を見た」と問い合わせください つながらない方、不動産会社の方は
|
Building coverage, floor area ratio 建ぺい率・容積率 | | 60% ・ 200% 60%・200% |
Time residents 入居時期 | | Consultation 相談 |
Land of the right form 土地の権利形態 | | Ownership 所有権 |
Structure and method of construction 構造・工法 | | Steel frame three-story 鉄骨3階建 |
Use district 用途地域 | | One dwelling 1種住居 |
Other limitations その他制限事項 | | Quasi-fire zones, Coastal areas disaster zones 準防火地域、臨海部防災区域 |
Overview and notices その他概要・特記事項 | | Contact: Kuno, Facilities: Public Water Supply, This sewage, City gas, Parking: No 担当者:久野、設備:公営水道、本下水、都市ガス、駐車場:無 |
Company profile 会社概要 | | <Mediation> Governor of Aichi Prefecture (1) the first 022,406 No. liaison Co. Yubinbango466-0821 Showa-ku Nagoya-shi, Aichi Maeyama cho 1-38 <仲介>愛知県知事(1)第022406号リエゾン(株)〒466-0821 愛知県名古屋市昭和区前山町1-38 |