2012March
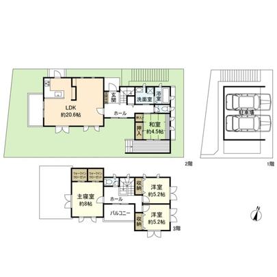
46,800,000 yen, 4LDK, 140.15 sq m
Used Homes » Tokai » Aichi Prefecture » Nagoya Meito-ku
 
| | Nagoya, Aichi Prefecture Meito-ku, 愛知県名古屋市名東区 |
| Subway Higashiyama Line "one company" walk 23 minutes 地下鉄東山線「一社」歩23分 |
Price 価格 | | 46,800,000 yen 4680万円 | Floor plan 間取り | | 4LDK 4LDK | Units sold 販売戸数 | | 1 units 1戸 | Land area 土地面積 | | 182.99 sq m (measured) 182.99m2(実測) | Building area 建物面積 | | 140.15 sq m (measured) 140.15m2(実測) | Driveway burden-road 私道負担・道路 | | Nothing, Northeast 6m width (contact the road width 9.1m) 無、北東6m幅(接道幅9.1m) | Completion date 完成時期(築年月) | | March 2012 2012年3月 | Address 住所 | | Nagoya, Aichi Prefecture Meito-ku Heiwagaoka 1 愛知県名古屋市名東区平和が丘1 | Traffic 交通 | | Subway Higashiyama Line "one company" walk 23 minutes 地下鉄東山線「一社」歩23分
| Person in charge 担当者より | | Person in charge of Tsutomu Yasue 担当者安江勉 | Contact お問い合せ先 | | Mitsui Rehouse Meito shop Mitsui Fudosan Realty (Ltd.) TEL: 0120-370031 [Toll free] Please contact the "saw SUUMO (Sumo)" 三井のリハウス名東店三井不動産リアルティ(株)TEL:0120-370031【通話料無料】「SUUMO(スーモ)を見た」と問い合わせください | Building coverage, floor area ratio 建ぺい率・容積率 | | 60% ・ 200% 60%・200% | Time residents 入居時期 | | Consultation 相談 | Land of the right form 土地の権利形態 | | Ownership 所有権 | Structure and method of construction 構造・工法 | | Wooden three-story 木造3階建 | Use district 用途地域 | | One dwelling 1種住居 | Overview and notices その他概要・特記事項 | | Contact: Tsutomu Yasue, Parking: car space 担当者:安江勉、駐車場:カースペース | Company profile 会社概要 | | <Mediation> Minister of Land, Infrastructure and Transport (13) No. 000777 (one company) Property distribution management Association (Corporation) metropolitan area real estate Fair Trade Council member Mitsui Rehouse Meito shop Mitsui Fudosan Realty Co. Yubinbango465-0095 Nagoya, Aichi Prefecture Meito-ku Takasha 1-252 <仲介>国土交通大臣(13)第000777号(一社)不動産流通経営協会会員 (公社)首都圏不動産公正取引協議会加盟三井のリハウス名東店三井不動産リアルティ(株)〒465-0095 愛知県名古屋市名東区高社1-252 |
 Local appearance photo
現地外観写真
 Floor plan
間取り図
Location
|