|
|
Nagoya, Aichi Prefecture Meito-ku,
愛知県名古屋市名東区
|
|
City Bus "Noda Bridge" walk 4 minutes
市バス「野田橋」歩4分
|
|
Parking two Allowed, Land 50 square meters or more, It is close to the city, Facing south, Yang per good, All room storage, Siemens south road, LDK15 tatami mats or more, Or more before road 6m, Corner lotese-style room, garden, Face-to-face kitchen, Toilet 2 places, bathroom
駐車2台可、土地50坪以上、市街地が近い、南向き、陽当り良好、全居室収納、南側道路面す、LDK15畳以上、前道6m以上、角地、和室、庭、対面式キッチン、トイレ2ヶ所、浴室
|
|
■ Residential garage with 5SLDK ■ There atrium space! Yang per good! ■ Within walking distance Issha Station!
■ガレージ付5SLDKの住宅■吹き抜け空間あり!陽当り良好!■一社駅まで徒歩圏内!
|
Features pickup 特徴ピックアップ | | Parking two Allowed / Land 50 square meters or more / It is close to the city / Facing south / Yang per good / All room storage / Siemens south road / LDK15 tatami mats or more / Or more before road 6m / Corner lot / Japanese-style room / garden / Face-to-face kitchen / Toilet 2 places / The window in the bathroom / Three-story or more / City gas / terrace 駐車2台可 /土地50坪以上 /市街地が近い /南向き /陽当り良好 /全居室収納 /南側道路面す /LDK15畳以上 /前道6m以上 /角地 /和室 /庭 /対面式キッチン /トイレ2ヶ所 /浴室に窓 /3階建以上 /都市ガス /テラス |
Price 価格 | | 90 million yen 9000万円 |
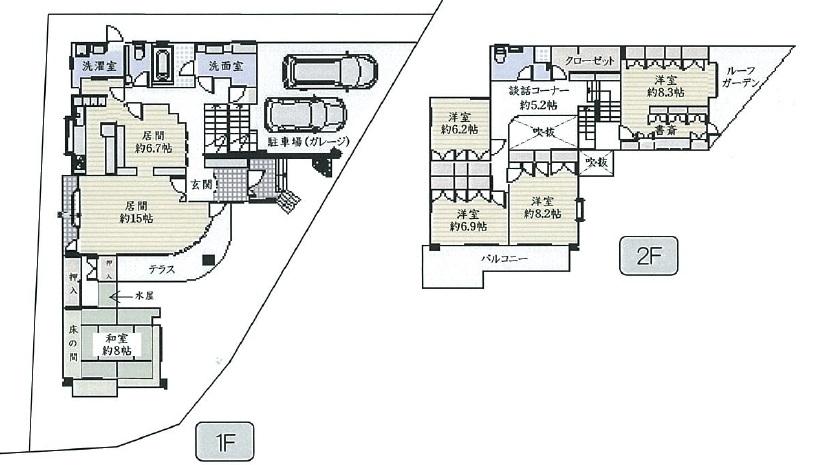
Floor plan 間取り | | 5LDK + S (storeroom) 5LDK+S(納戸) |
Units sold 販売戸数 | | 1 units 1戸 |
Land area 土地面積 | | 252 sq m (76.22 tsubo) (Registration) 252m2(76.22坪)(登記) |
Building area 建物面積 | | 235.12 sq m (71.12 tsubo) (Registration) 235.12m2(71.12坪)(登記) |
Driveway burden-road 私道負担・道路 | | Nothing, East 6.5m width, South 8m width 無、東6.5m幅、南8m幅 |
Completion date 完成時期(築年月) | | 5 May 1991 1991年5月 |
Address 住所 | | Nagoya, Aichi Prefecture Meito-ku, coma-cho 愛知県名古屋市名東区高間町 |
Traffic 交通 | | City Bus "Noda Bridge" walk 4 minutes subway Higashiyama Line "one company" walk 19 minutes 市バス「野田橋」歩4分地下鉄東山線「一社」歩19分
|
Related links 関連リンク | | [Related Sites of this company] 【この会社の関連サイト】 |
Person in charge 担当者より | | Person in charge of real-estate and building Hosoe Yusuke Age: 20 Daigyokai Experience: 5 years fun, Let's take a look convincing real estate together! Purchase of real estate, The first step of the consultation of the sale is by all means to Nakajitsu! ! 担当者宅建細江 祐介年齢:20代業界経験:5年楽しく、納得のいく不動産を一緒に探していきましょう!不動産の購入、売却の相談の第一歩はぜひナカジツへ!! |
Contact お問い合せ先 | | TEL: 0800-808-7877 [Toll free] mobile phone ・ Also available from PHS Caller ID is not notified Please contact the "saw SUUMO (Sumo)" If it does not lead, If the real estate company TEL:0800-808-7877【通話料無料】携帯電話・PHSからもご利用いただけます 発信者番号は通知されません 「SUUMO(スーモ)を見た」と問い合わせください つながらない方、不動産会社の方は
|
Building coverage, floor area ratio 建ぺい率・容積率 | | 60% ・ 150% 60%・150% |
Time residents 入居時期 | | Consultation 相談 |
Land of the right form 土地の権利形態 | | Ownership 所有権 |
Structure and method of construction 構造・工法 | | Wood reinforced concrete three-story 木鉄筋コンクリート造3階建 |
Use district 用途地域 | | One middle and high 1種中高 |
Other limitations その他制限事項 | | Quasi-fire zones, 20m height district, Greening area 準防火地域、20m高度地区、緑化地域 |
Overview and notices その他概要・特記事項 | | Contact: Hosoe Yusuke, Facilities: Public Water Supply, This sewage, City gas, Parking: car space 担当者:細江 祐介、設備:公営水道、本下水、都市ガス、駐車場:カースペース |
Company profile 会社概要 | | <Mediation> Governor of Aichi Prefecture (2) Article 020 601 issue (stock) Property SHOP Nakajitsu Meito shop Yubinbango465-0058 Nagoya, Aichi Prefecture Meito-ku, Kibune 2-702 (Neo Wisutaria 1 ・ Second floor) <仲介>愛知県知事(2)第020601号(株)不動産SHOPナカジツ名東店〒465-0058 愛知県名古屋市名東区貴船2-702(ネオウィスタリア1・2階) |