78,800,000 yen, 5LDK, 235.12 sq m
Used Homes » Tokai » Aichi Prefecture » Nagoya Meito-ku

| | Nagoya, Aichi Prefecture Meito-ku, 愛知県名古屋市名東区 |
| Subway Higashiyama Line "one company" walk 19 minutes 地下鉄東山線「一社」歩19分 |
Price 価格 | | 78,800,000 yen 7880万円 | Floor plan 間取り | | 5LDK 5LDK | Units sold 販売戸数 | | 1 units 1戸 | Land area 土地面積 | | 252 sq m (registration) 252m2(登記) | Building area 建物面積 | | 235.12 sq m (registration) 235.12m2(登記) | Driveway burden-road 私道負担・道路 | | Nothing, East 6.5m width, South 8m width 無、東6.5m幅、南8m幅 | Completion date 完成時期(築年月) | | 5 May 1991 1991年5月 | Address 住所 | | Nagoya, Aichi Prefecture Meito-ku, coma-cho 愛知県名古屋市名東区高間町 | Traffic 交通 | | Subway Higashiyama Line "one company" walk 19 minutes 地下鉄東山線「一社」歩19分
| Person in charge 担当者より | | Person in charge of the South HoshiKei 担当者南 星圭 | Contact お問い合せ先 | | Sekiwa Real Estate Chubu Co., Ltd. green distribution office TEL: 012063-7770 [Toll free] Please contact the "saw SUUMO (Sumo)" 積和不動産中部(株)緑流通営業所TEL:012063-7770【通話料無料】「SUUMO(スーモ)を見た」と問い合わせください | Building coverage, floor area ratio 建ぺい率・容積率 | | 60% ・ 150% 60%・150% | Time residents 入居時期 | | Consultation 相談 | Land of the right form 土地の権利形態 | | Ownership 所有権 | Structure and method of construction 構造・工法 | | RC3 story RC3階建 | Use district 用途地域 | | One middle and high 1種中高 | Other limitations その他制限事項 | | Subway Higashiyama Line May "one company" 19-minute walk station 1991 new construction, 5LDK ・ Occupied area: 197.81 sq m , 1 floor: built-in garage 37. 地下鉄東山線「一社」駅徒歩19分平成3年5月新築、5LDK・専有面積:197.81m2、1階部分:ビルトインガレージ37. | Overview and notices その他概要・特記事項 | | Person in charge: South HoshiKei, Parking: car space 担当者:南 星圭、駐車場:カースペース | Company profile 会社概要 | | <Mediation> Minister of Land, Infrastructure and Transport (9) No. 002961 No. Sekiwa Real Estate Chubu Co., Ltd. green distribution office Yubinbango458-0004 Nagoya, Aichi Prefecture Midori Ward Norikura 1-205 <仲介>国土交通大臣(9)第002961号積和不動産中部(株)緑流通営業所〒458-0004 愛知県名古屋市緑区乗鞍1-205 |
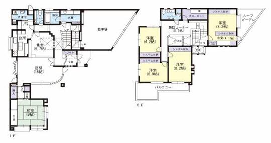
 Floor plan
間取り図
Location
|