Used Homes » Tokai » Aichi Prefecture » Nagoya Meito-ku
 
| | Nagoya, Aichi Prefecture Meito-ku, 愛知県名古屋市名東区 |
| City Bus "Umemorizaka" walk 6 minutes 市バス「梅森坂」歩6分 |
| You can enjoy, such as gardening and home garden in a spacious garden in the site area 69.52 square meters. Heisei becoming Bitei in pre interior renovation in 25 years in June. Parking with a car port is also possible two. 敷地面積69.52坪で広々したお庭でガーデニングや家庭菜園など楽しめます。平成25年6月に内装リフォーム済みで美邸となっております。カーポート付の駐車場も2台可能です。 |
| ■ This house is LDK23 pledge facing the south has become a bright space has been very large and spacious. ■ Living environment until the lush Makinogaike park remain many nature that is also suitable for such a walk of 4 minutes and the dog walk ■ It is on the south side of the site area 69.52 square meters has become a garden there is a hobby of gardening and home garden, such as can enjoy space spacious. ■ Many, such as stairs under storage and walk-in closet, Glad storage space for the wife ■ The room is also bright, Such as a wall of the cross also gives the renovation with a new one because it has become a full clean space. ■ Certainly once please preview because it is built shallow as a used single-family. ■ゆったりとした当住宅は南側に面しているLDK23帖はとても広々していて明るいスペースとなっています。■自然が多く残る緑豊かな牧野ヶ池公園までは徒歩4分と愛犬とのお散歩などにも適している住環境■敷地面積69.52坪の南側にはゆったりしたお庭があって趣味のガーデニングや家庭菜園なども楽しめるスペースとなっています。■階段下収納やウォークインクローゼットなどが多く、奥様にとっては収納スペースが嬉しい■室内も明るく、壁のクロスなども新品にリフォームしてありますので清潔感溢れる空間となっています。■中古一戸建てとしては築浅ですので是非一度ご内覧下さい。 |
Features pickup 特徴ピックアップ | | Parking two Allowed / Immediate Available / LDK20 tatami mats or more / Land 50 square meters or more / Interior renovation / System kitchen / Bathroom Dryer / Yang per good / A quiet residential area / Or more before road 6m / Japanese-style room / Shaping land / Washbasin with shower / Toilet 2 places / 2-story / South balcony / Warm water washing toilet seat / Nantei / Underfloor Storage / The window in the bathroom / Leafy residential area / Ventilation good / All living room flooring / Dish washing dryer / Walk-in closet / City gas 駐車2台可 /即入居可 /LDK20畳以上 /土地50坪以上 /内装リフォーム /システムキッチン /浴室乾燥機 /陽当り良好 /閑静な住宅地 /前道6m以上 /和室 /整形地 /シャワー付洗面台 /トイレ2ヶ所 /2階建 /南面バルコニー /温水洗浄便座 /南庭 /床下収納 /浴室に窓 /緑豊かな住宅地 /通風良好 /全居室フローリング /食器洗乾燥機 /ウォークインクロゼット /都市ガス | Event information イベント情報 | | Local guide Board (please make a reservation beforehand) schedule / Every weekday guidance other than Saturday, Sunday and public holidays on Saturdays, Sundays, and holidays is also available. Since the person who will come will guide you are interested, Please feel free to contact us. 現地案内会(事前に必ず予約してください)日程/毎週土日祝土日祝以外の平日のご案内も可能です。ご興味がある方は是非ご案内いたしますので、お気軽にお問い合わせ下さい。 | Price 価格 | | 42,800,000 yen 4280万円 | Floor plan 間取り | | 3LDK + S (storeroom) 3LDK+S(納戸) | Units sold 販売戸数 | | 1 units 1戸 | Land area 土地面積 | | 229.84 sq m (registration) 229.84m2(登記) | Building area 建物面積 | | 125.03 sq m (registration) 125.03m2(登記) | Driveway burden-road 私道負担・道路 | | Nothing, North 9m width (contact the road width 10m) 無、北9m幅(接道幅10m) | Completion date 完成時期(築年月) | | December 2006 2006年12月 | Address 住所 | | Nagoya, Aichi Prefecture Meito-ku Umemorizaka 3 愛知県名古屋市名東区梅森坂3 | Traffic 交通 | | City Bus "Umemorizaka" walk 6 minutes 市バス「梅森坂」歩6分 | Related links 関連リンク | | [Related Sites of this company] 【この会社の関連サイト】 | Person in charge 担当者より | | [Regarding this property.] The interior is glad renovated property. Realize the life that feel natural in a 4-minute walk from the lush Makinogaike park. You can also consult such as seismic diagnosis and houses of diagnosis by our housing consultant. 【この物件について】内装は嬉しいリフォーム済み物件。緑豊かな牧野ヶ池公園まで徒歩4分で自然を感じる暮らしを実現。弊社住宅診断士による耐震診断や家の診断なども相談可能です。 | Contact お問い合せ先 | | TEL: 052-737-1071 Please inquire as "saw SUUMO (Sumo)" TEL:052-737-1071「SUUMO(スーモ)を見た」と問い合わせください | Building coverage, floor area ratio 建ぺい率・容積率 | | 40% ・ 80% 40%・80% | Time residents 入居時期 | | Immediate available 即入居可 | Land of the right form 土地の権利形態 | | Ownership 所有権 | Structure and method of construction 構造・工法 | | Wooden 2-story 木造2階建 | Renovation リフォーム | | June 2013 interior renovation completed (wall ・ Such as cross Chokawa) 2013年6月内装リフォーム済(壁・クロス張替など) | Use district 用途地域 | | One low-rise 1種低層 | Other limitations その他制限事項 | | Residential land development construction regulation area, Height district, Setback Yes, 2013 June cross Hakawa such as renovated 宅地造成工事規制区域、高度地区、壁面後退有、平成25年6月クロス貼替などリフォーム済み | Overview and notices その他概要・特記事項 | | Facilities: Public Water Supply, This sewage, City gas, Parking: Car Port 設備:公営水道、本下水、都市ガス、駐車場:カーポート | Company profile 会社概要 | | <Mediation> Governor of Aichi Prefecture (2) the first 020,607 No. Blue Holmes Co., Ltd. blue real estate Yubinbango465-0011 Nagoya, Aichi Prefecture Meito-ku, uptown 1-529 <仲介>愛知県知事(2)第020607号ブルーホームズ(株)あおいろ不動産〒465-0011 愛知県名古屋市名東区山の手1-529 |
Local appearance photo現地外観写真  Property as seen from the north side road
北側道路から見た物件
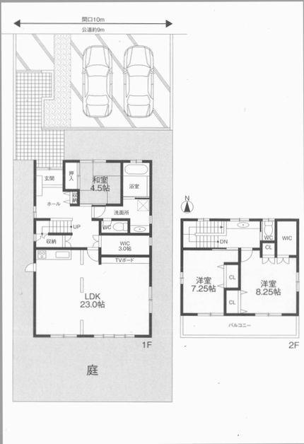
Floor plan間取り図  42,800,000 yen, 3LDK + S (storeroom), Land area 229.84 sq m , 3SLDK of building area 125.03 sq m room
4280万円、3LDK+S(納戸)、土地面積229.84m2、建物面積125.03m2 ゆとりの3SLDK
Same specifications photos (living)同仕様写真(リビング)  Living dining with fixtures furniture
造作家具付リビングダイニング
Kitchenキッチン  Built shallow Residential home in December 2006 built has become a pre-interior renovation. Lush living environment.
平成18年12月築で築浅一戸建ては内装リフォーム済みとなっています。緑豊かな住環境。
Local photos, including front road前面道路含む現地写真  Peripheral front road
前面道路周辺
Garden庭  Gardening in the room some garden
ゆとりあるお庭でガーデニング
Entrance玄関  Heisei becoming Bitei in pre interior renovation in 25 years in June. Nagoya city as has become a space where you can enjoy as well, such as hobbies home garden and gardening in the size of the site area 69.52 square meters and the room.
平成25年6月に内装リフォーム済みで美邸となっております。名古屋市内としては敷地面積69.52坪とゆとりの広さで趣味の自家菜園やガーデニングなども楽しめるスペースとなっています。
Balconyバルコニー  Bright balcony located on the south side
南側にある明るいバルコニー
Entrance玄関  Toilet with cleanliness
清潔感あるトイレ
Wash basin, toilet洗面台・洗面所  Wide wash basin
幅広洗面台
Bathroom浴室  A clean bathroom
清潔感ある浴室
Receipt収納  3 Pledge of walk-ink Rosen Tsu To
3帖のウォークインクローゼンット
Non-living roomリビング以外の居室  2 facing the south Kaikyoshitsu
南に面している2階居室
Location
|