Used Homes » Tokai » Aichi Prefecture » Nagoya Meito-ku


Nagoya, Aichi Prefecture Meito-ku,
City Bus "Shimotsubo" walk 6 minutes
Immediately usable in a room very clean. Order of Daiwa House Residential. 2F Western-style popular flex room. With car port is in parallel two parking. To automatic shutter floor heating equipped
Features pickup
Siemens south road / 2 family house
Price
53,900,000 yen
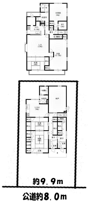
Floor plan
5LDK + S (storeroom)
Units sold
1 units
Land area
208.86 sq m (registration)
Building area
207.99 sq m (registration)
Driveway burden-road
Nothing, South 8m width (contact the road width 9.9m)
Completion date
July 1999
Address
Nagoya, Aichi Prefecture Meito-ku, Canare 1
Traffic
City Bus "Shimotsubo" walk 6 minutes
Contact
Brother Real Estate Co., Ltd. green office TEL: 0800-603-1433 [Toll free] mobile phone ・ Also available from PHS
Caller ID is not notified
Please contact the "saw SUUMO (Sumo)"
If it does not lead, If the real estate company
Building coverage, floor area ratio
60% ・ 200%
Time residents
Consultation
Land of the right form
Ownership
Structure and method of construction
Light-gauge steel 2-story
Use district
Two mid-high
Other limitations
Height district, Quasi-fire zones
Overview and notices
Facilities: Public Water Supply, This sewage, City gas
Company profile
<Mediation> Governor of Aichi Prefecture (14) No. 003 421 (Company) Central Real Estate Association Tokai Real Estate Fair Trade Council member Brother Real Estate Co., Ltd. green office Yubinbango458-0812 Nagoya, Aichi Prefecture Midori Ward Kaminokura 4-198


Floor plan

Floor plan. 53,900,000 yen, 5LDK + S (storeroom), Land area 208.86 sq m , Building area 207.99 sq m
53,900,000 yen, 5LDK + S (storeroom), Land area 208.86 sq m , Building area 207.99 sq m

Living

Living. Indoor (11 May 2013) Shooting
Indoor (11 May 2013) Shooting

Non-living room

Non-living room. Indoor (11 May 2013) Shooting
Indoor (11 May 2013) Shooting

Local appearance photo

Local appearance photo. Indoor (11 May 2013) Shooting
Indoor (11 May 2013) Shooting

Non-living room

Non-living room. Indoor (11 May 2013) Shooting
Indoor (11 May 2013) Shooting

Non-living room. Indoor (11 May 2013) Shooting
Indoor (11 May 2013) Shooting



Location