1991June
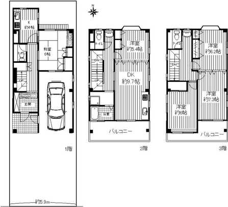
28.5 million yen, 5DK, 143.88 sq m
Used Homes » Tokai » Aichi Prefecture » Nagoya Mizuho-ku
 
| | Nagoya, Aichi Prefecture Mizuho-ku, 愛知県名古屋市瑞穂区 |
| Subway Meijo Line "Hotta" walk 7 minutes 地下鉄名城線「堀田」歩7分 |
Price 価格 | | 28.5 million yen 2850万円 | Floor plan 間取り | | 5DK 5DK | Units sold 販売戸数 | | 1 units 1戸 | Land area 土地面積 | | 112.45 sq m (registration) 112.45m2(登記) | Building area 建物面積 | | 143.88 sq m (registration) 143.88m2(登記) | Driveway burden-road 私道負担・道路 | | Nothing, South 4.5m width (contact the road width 5.9m) 無、南4.5m幅(接道幅5.9m) | Completion date 完成時期(築年月) | | June 1991 1991年6月 | Address 住所 | | Nagoya, Aichi Prefecture, Mizuho-ku, Meizen cho 愛知県名古屋市瑞穂区明前町 | Traffic 交通 | | Subway Meijo Line "Hotta" walk 7 minutes 地下鉄名城線「堀田」歩7分
| Person in charge 担当者より | | Rep Tomikichi Kenta 担当者富吉 健太 | Contact お問い合せ先 | | Sumitomo Real Estate Sales Co., Ltd. Jinshan business center TEL: 0800-603-0056 [Toll free] mobile phone ・ Also available from PHS Caller ID is not notified Please contact the "saw SUUMO (Sumo)" If it does not lead, If the real estate company 住友不動産販売(株)金山営業センターTEL:0800-603-0056【通話料無料】携帯電話・PHSからもご利用いただけます 発信者番号は通知されません 「SUUMO(スーモ)を見た」と問い合わせください つながらない方、不動産会社の方は
| Building coverage, floor area ratio 建ぺい率・容積率 | | 60% ・ 200% 60%・200% | Time residents 入居時期 | | Consultation 相談 | Land of the right form 土地の権利形態 | | Ownership 所有権 | Structure and method of construction 構造・工法 | | Steel frame three-story 鉄骨3階建 | Use district 用途地域 | | Industry 工業 | Other limitations その他制限事項 | | / Single car park (3.1 × 5.4) Parking 2 car (5.9 × 6.0) / Terrain: flat /駐車場1台分(3.1×5.4)駐車場2台分(5.9×6.0)/地勢:平坦 | Overview and notices その他概要・特記事項 | | Contact: Tomikichi Kenta, Parking: car space 担当者:富吉 健太、駐車場:カースペース | Company profile 会社概要 | | <Mediation> Minister of Land, Infrastructure and Transport (11) No. 002077 (one company) Property distribution management Association (Corporation) metropolitan area real estate Fair Trade Council member Sumitomo Real Estate Sales Co., Ltd. Jinshan business center Yubinbango460-0022 Aichi Prefecture medium Nagoya District Jinshan 1-14-16 Tokiwabiru 6th floor <仲介>国土交通大臣(11)第002077号(一社)不動産流通経営協会会員 (公社)首都圏不動産公正取引協議会加盟住友不動産販売(株)金山営業センター〒460-0022 愛知県名古屋市中区金山1-14-16 トキワビル6階 |
Local appearance photo現地外観写真  Appearance (1)
外観(1)
 Floor plan
間取り図
Location
|