|
|
Aichi Prefecture, Nakamura-ku, Nagoya,
愛知県名古屋市中村区
|
|
Subway Sakura-dori Line "Nakamura Ward Office" walk 6 minutes
地下鉄桜通線「中村区役所」歩6分
|
|
● Makino Elementary School 10-minute walk ● Seven-Eleven 2-minute walk ●
●牧野小学校徒歩10分●セブンイレブン徒歩2分●
|
Features pickup 特徴ピックアップ | | Yang per good / Starting station / Toilet 2 places / Three-story or more 陽当り良好 /始発駅 /トイレ2ヶ所 /3階建以上 |
Price 価格 | | 28.8 million yen 2880万円 |
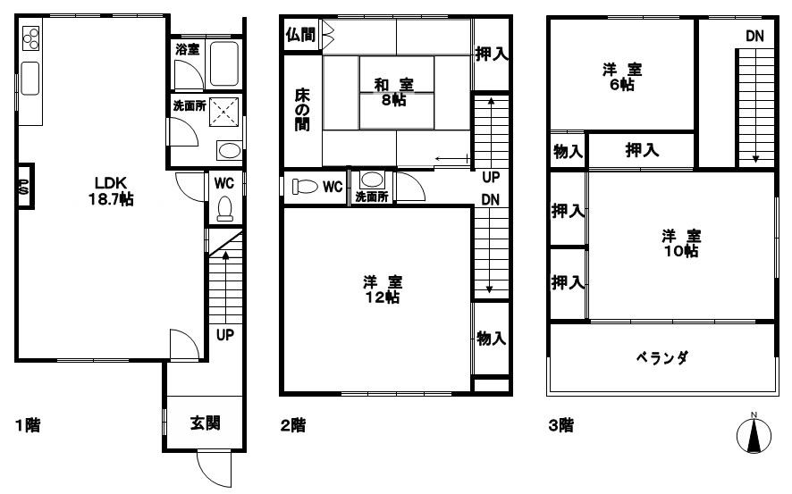
Floor plan 間取り | | 4LDK 4LDK |
Units sold 販売戸数 | | 1 units 1戸 |
Total units 総戸数 | | 1 units 1戸 |
Land area 土地面積 | | 84.61 sq m (25.59 tsubo) (Registration) 84.61m2(25.59坪)(登記) |
Building area 建物面積 | | 131.71 sq m (39.84 tsubo) (Registration) 131.71m2(39.84坪)(登記) |
Driveway burden-road 私道負担・道路 | | Nothing 無 |
Completion date 完成時期(築年月) | | January 1980 1980年1月 |
Address 住所 | | Aichi Prefecture, Nakamura-ku, Nagoya, Wakamiya-cho 3 愛知県名古屋市中村区若宮町3 |
Traffic 交通 | | Subway Sakura-dori Line "Nakamura Ward Office" walk 6 minutes 地下鉄桜通線「中村区役所」歩6分
|
Related links 関連リンク | | [Related Sites of this company] 【この会社の関連サイト】 |
Contact お問い合せ先 | | TEL: 0800-603-2355 [Toll free] mobile phone ・ Also available from PHS Caller ID is not notified Please contact the "saw SUUMO (Sumo)" If it does not lead, If the real estate company TEL:0800-603-2355【通話料無料】携帯電話・PHSからもご利用いただけます 発信者番号は通知されません 「SUUMO(スーモ)を見た」と問い合わせください つながらない方、不動産会社の方は
|
Building coverage, floor area ratio 建ぺい率・容積率 | | 80% ・ 400% 80%・400% |
Time residents 入居時期 | | February 2014 schedule 2014年2月予定 |
Land of the right form 土地の権利形態 | | Ownership 所有権 |
Structure and method of construction 構造・工法 | | Steel frame three-story 鉄骨3階建 |
Use district 用途地域 | | Residential 近隣商業 |
Other limitations その他制限事項 | | Quasi-fire zones 準防火地域 |
Overview and notices その他概要・特記事項 | | Facilities: city gas, Parking: No 設備:都市ガス、駐車場:無 |
Company profile 会社概要 | | <Seller> Governor of Aichi Prefecture (4) The 017,993 No. Trek Group Co., Ltd. Sanyu housing Yubinbango464-0074 Aichi Prefecture, Chikusa-ku, Nagoya Nakata 1-5-16 <売主>愛知県知事(4)第017993号トレックグループ(株)サンユーハウジング〒464-0074 愛知県名古屋市千種区仲田1-5-16 |