1987March
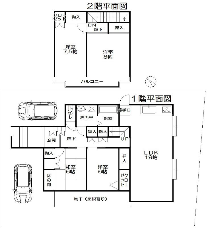
21.5 million yen, 4LDK, 114.27 sq m
Used Homes » Tokai » Aichi Prefecture » Okazaki
 
| | Okazaki, Aichi Prefecture 愛知県岡崎市 |
| Nagoyahonsen Meitetsu "Miai" walk 11 minutes 名鉄名古屋本線「美合」歩11分 |
| Reform the already beautiful house! Parking, Two possible! Within walking distance from Meitetsu "Miai" station! リフォーム済の美邸です!駐車、2台可能!名鉄「美合」駅より徒歩圏内! |
Features pickup 特徴ピックアップ | | Immediate Available / Land 50 square meters or more / LDK18 tatami mats or more / System kitchen / All room storage / Japanese-style room / 2-story / All room 6 tatami mats or more 即入居可 /土地50坪以上 /LDK18畳以上 /システムキッチン /全居室収納 /和室 /2階建 /全居室6畳以上 | Price 価格 | | 21.5 million yen 2150万円 | Floor plan 間取り | | 4LDK 4LDK | Units sold 販売戸数 | | 1 units 1戸 | Land area 土地面積 | | 167.42 sq m (registration) 167.42m2(登記) | Building area 建物面積 | | 114.27 sq m (registration) 114.27m2(登記) | Driveway burden-road 私道負担・道路 | | Nothing 無 | Completion date 完成時期(築年月) | | March 1987 1987年3月 | Address 住所 | | Okazaki City, Aichi Prefecture Miai-cho Yoshi添 愛知県岡崎市美合町字吉添 | Traffic 交通 | | Nagoyahonsen Meitetsu "Miai" walk 11 minutes 名鉄名古屋本線「美合」歩11分
| Contact お問い合せ先 | | TEL: 0800-601-5261 [Toll free] mobile phone ・ Also available from PHS Caller ID is not notified Please contact the "saw SUUMO (Sumo)" If it does not lead, If the real estate company TEL:0800-601-5261【通話料無料】携帯電話・PHSからもご利用いただけます 発信者番号は通知されません 「SUUMO(スーモ)を見た」と問い合わせください つながらない方、不動産会社の方は
| Building coverage, floor area ratio 建ぺい率・容積率 | | 60% ・ 200% 60%・200% | Time residents 入居時期 | | Immediate available 即入居可 | Land of the right form 土地の権利形態 | | Ownership 所有権 | Structure and method of construction 構造・工法 | | Wooden 2-story 木造2階建 | Renovation リフォーム | | 2013 May interior renovation completed (toilet ・ wall) 2013年5月内装リフォーム済(トイレ・壁) | Use district 用途地域 | | One dwelling 1種住居 | Overview and notices その他概要・特記事項 | | Facilities: Public Water Supply, This sewage, Parking: car space 設備:公営水道、本下水、駐車場:カースペース | Company profile 会社概要 | | <Mediation> Minister of Land, Infrastructure and Transport (2) No. 007211 (Ltd.) Soritsuhomu Yubinbango467-0832 Nagoya, Aichi Prefecture Mizuho-ku, Shinto-cho 2-16 <仲介>国土交通大臣(2)第007211号(株)ソーリツホーム〒467-0832 愛知県名古屋市瑞穂区神前町2-16 |
 Local appearance photo
現地外観写真
 Other
その他
 Other
その他
Floor plan間取り図  21.5 million yen, 4LDK, Land area 167.42 sq m , Building area 114.27 sq m
2150万円、4LDK、土地面積167.42m2、建物面積114.27m2
Location
|