|
|
Aichi Prefecture Tokai
愛知県東海市
|
|
Tokonamesen Meitetsu "Shurakuen" walk 15 minutes
名鉄常滑線「聚楽園」歩15分
|
|
Land 50 square meters or more, Yang per good, A quiet residential area, 2 family house, LDK20 tatami mats or more, Parking two Allowed, Super close, Facing south, System kitchen, Siemens south road, Face-to-face kitchen, Toilet 2 places,
土地50坪以上、陽当り良好、閑静な住宅地、2世帯住宅、LDK20畳以上、駐車2台可、スーパーが近い、南向き、システムキッチン、南側道路面す、対面式キッチン、トイレ2ヶ所、
|
|
Land 50 square meters or more, Yang per good, A quiet residential area, 2 family house, LDK20 tatami mats or more, Parking two Allowed, Super close, Facing south, System kitchen, Siemens south road, Face-to-face kitchen, Toilet 2 places, South balcony, Three-story or more
土地50坪以上、陽当り良好、閑静な住宅地、2世帯住宅、LDK20畳以上、駐車2台可、スーパーが近い、南向き、システムキッチン、南側道路面す、対面式キッチン、トイレ2ヶ所、南面バルコニー、3階建以上
|
Features pickup 特徴ピックアップ | | Parking two Allowed / LDK20 tatami mats or more / Land 50 square meters or more / Super close / Facing south / System kitchen / Yang per good / Siemens south road / A quiet residential area / Face-to-face kitchen / Toilet 2 places / South balcony / Three-story or more / 2 family house 駐車2台可 /LDK20畳以上 /土地50坪以上 /スーパーが近い /南向き /システムキッチン /陽当り良好 /南側道路面す /閑静な住宅地 /対面式キッチン /トイレ2ヶ所 /南面バルコニー /3階建以上 /2世帯住宅 |
Price 価格 | | 28.8 million yen 2880万円 |
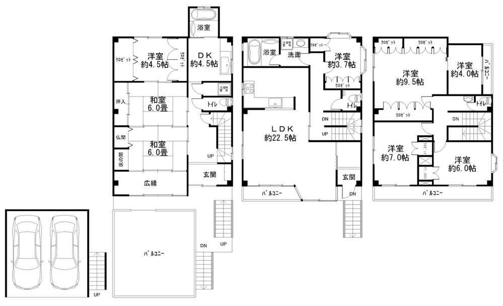
Floor plan 間取り | | 8LDDKK 8LDDKK |
Units sold 販売戸数 | | 1 units 1戸 |
Total units 総戸数 | | 1 units 1戸 |
Land area 土地面積 | | 196.92 sq m (59.56 tsubo) (Registration) 196.92m2(59.56坪)(登記) |
Building area 建物面積 | | 199.56 sq m (60.36 tsubo) (Registration) 199.56m2(60.36坪)(登記) |
Driveway burden-road 私道負担・道路 | | Nothing, South 3.8m width (contact the road width 8.5m) 無、南3.8m幅(接道幅8.5m) |
Completion date 完成時期(築年月) | | March 1995 1995年3月 |
Address 住所 | | Tokane Aichi Prefecture Tokai Arao-cho 愛知県東海市荒尾町遠鐘 |
Traffic 交通 | | Tokonamesen Meitetsu "Shurakuen" walk 15 minutes Tokonamesen Meitetsu "Shin'nittetsumae" walk 25 minutes 名鉄常滑線「聚楽園」歩15分 名鉄常滑線「新日鉄前」歩25分
|
Related links 関連リンク | | [Related Sites of this company] 【この会社の関連サイト】 |
Contact お問い合せ先 | | TEL: 0800-603-8242 [Toll free] mobile phone ・ Also available from PHS Caller ID is not notified Please contact the "saw SUUMO (Sumo)" If it does not lead, If the real estate company TEL:0800-603-8242【通話料無料】携帯電話・PHSからもご利用いただけます 発信者番号は通知されません 「SUUMO(スーモ)を見た」と問い合わせください つながらない方、不動産会社の方は
|
Building coverage, floor area ratio 建ぺい率・容積率 | | 60% ・ 160% 60%・160% |
Time residents 入居時期 | | Consultation 相談 |
Land of the right form 土地の権利形態 | | Ownership 所有権 |
Structure and method of construction 構造・工法 | | Steel frame three-story 鉄骨3階建 |
Use district 用途地域 | | One middle and high 1種中高 |
Other limitations その他制限事項 | | Residential land development construction regulation area, Building Standards Law Article 22 section 宅地造成工事規制区域、建築基準法第22条区域 |
Overview and notices その他概要・特記事項 | | Facilities: Public Water Supply, Individual septic tank, Individual LPG, Parking: car space 設備:公営水道、個別浄化槽、個別LPG、駐車場:カースペース |
Company profile 会社概要 | | <Mediation> Governor of Aichi Prefecture (2) No. 021076 Trek Group Co., Ltd., Mizuho real estate sales Yubinbango467-0836 Nagoya, Aichi Prefecture Mizuho-ku, Tsukudamachi 1-17-1 <仲介>愛知県知事(2)第021076号トレックグループ(株)みずほ不動産販売〒467-0836 愛知県名古屋市瑞穂区佃町1-17-1 |