2006March
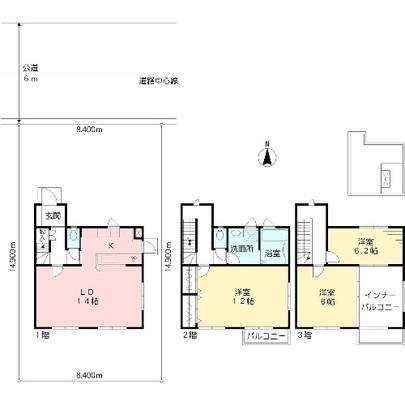
29,900,000 yen, 3LDK, 110.54 sq m
Used Homes » Tokai » Aichi Prefecture » Tsushima City
 
| | Aichi Prefecture Tsushima City 愛知県津島市 |
| Bisaisen Meitetsu "Hibino" walk 29 minutes 名鉄尾西線「日比野」歩29分 |
Price 価格 | | 29,900,000 yen 2990万円 | Floor plan 間取り | | 3LDK 3LDK | Units sold 販売戸数 | | 1 units 1戸 | Land area 土地面積 | | 125.7 sq m (registration) 125.7m2(登記) | Building area 建物面積 | | 110.54 sq m (registration) 110.54m2(登記) | Driveway burden-road 私道負担・道路 | | Nothing, North 6m width (contact the road width 8.4m) 無、北6m幅(接道幅8.4m) | Completion date 完成時期(築年月) | | March 2006 2006年3月 | Address 住所 | | Aichi Prefecture Tsushima City Karausu cho oilfield 愛知県津島市唐臼町油田 | Traffic 交通 | | Bisaisen Meitetsu "Hibino" walk 29 minutes 名鉄尾西線「日比野」歩29分
| Person in charge 担当者より | | Person in charge of the South HoshiKei 担当者南 星圭 | Contact お問い合せ先 | | Sekiwa Real Estate Chubu Co., Ltd. green distribution office TEL: 012063-7770 [Toll free] Please contact the "saw SUUMO (Sumo)" 積和不動産中部(株)緑流通営業所TEL:012063-7770【通話料無料】「SUUMO(スーモ)を見た」と問い合わせください | Building coverage, floor area ratio 建ぺい率・容積率 | | 60% ・ 200% 60%・200% | Time residents 入居時期 | | Consultation 相談 | Land of the right form 土地の権利形態 | | Ownership 所有権 | Structure and method of construction 構造・工法 | | RC3 story RC3階建 | Use district 用途地域 | | One middle and high 1種中高 | Other limitations その他制限事項 | | Taisei Corporation housing construction in March 2006 new construction, Three-story RC structure, Spacious balcony, Parking space two Allowed 大成建設ハウジング株式会社施工平成18年3月新築、3階建RC造、広々バルコニー、駐車スペース2台可 | Overview and notices その他概要・特記事項 | | Person in charge: South HoshiKei, Parking: car space 担当者:南 星圭、駐車場:カースペース | Company profile 会社概要 | | <Mediation> Minister of Land, Infrastructure and Transport (9) No. 002961 No. Sekiwa Real Estate Chubu Co., Ltd. green distribution office Yubinbango458-0004 Nagoya, Aichi Prefecture Midori Ward Norikura 1-205 <仲介>国土交通大臣(9)第002961号積和不動産中部(株)緑流通営業所〒458-0004 愛知県名古屋市緑区乗鞍1-205 |
 Local appearance photo
現地外観写真
 Floor plan
間取り図
Location
|